前言
家,既是與家人共享、互動的所在,也是能感受到彼此陪伴仍保有獨處、互不干擾的空間。隨著一對女兒日漸成長需要更充足、得以自由發展的空間,也希望加強住家的招待與休閒機能,遂使屋主萌生了換屋想法,從三十多坪的舊家搬遷至新建的複層式住宅中,期盼帶給家人更豐富的體驗與舒適的生活品質。
裝修預算規劃與避坑清單
含Excel模板,限時0元領取
設計主軸&規劃重點
本案原始為毛胚屋,因應屋主希望樓上與樓下的公共領域能透過設計打造截然不同的生活氛圍,苑茂設計朱逸民設計師於是以臺灣傳統建築中代表庭院或廣場的「埕」為發想,將空間劃分為三個埕:
1.一樓設定為家人與賓客都能共享的埕,整合迎賓接待、品酒聚餐與辦公機能;
2.到了樓上是第二個埕,結合了電玩娛樂、彈琴、閱讀等喜好,是純屬一家人放鬆休憩的地方;
3.第三個埕則是頂樓獨有的戶外大露臺,賞景、星光、親友共聚的隱密場域,動線營造出家中獨有的休閒氛圍。
透過這三個埕的規劃,體現「家」是互動、凝聚情感之所在,也能把屋主一家夢想中的所有需求恰如其分配置於空間中,並以流暢的動線相互串接。


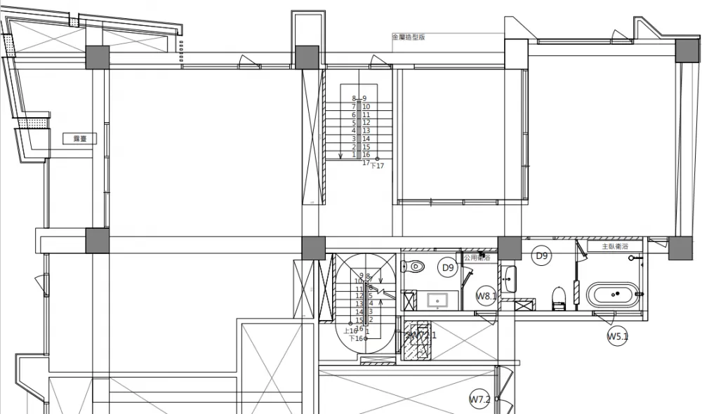
Before平面圖


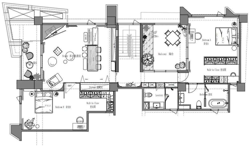
After平面圖
玄關設計
於進門處隔出一隅玄關,除了要能滿足收納鞋靴、外出用品的需求之外,也需營造出迎賓感,並讓返家後的心情能逐漸沉澱下來,因此以石紋與深色木皮鋪陳。同時增設一扇玻璃拉門創造二進式玄關,明確區隔空間。



完整裝修工具包(清單+話術+模板)已為你準備好!
客廳設計
因坐落在具有良好視野的頂樓,為使視覺自然聚焦於落地窗景,寬敞的客廳區刻意藉由兩側牆角的雙弧形設計做為導引,並且使人在空間中產生宛如被包覆的親密感。電視牆運用灰階薄板磁磚打造,帶入如天然石材般的自然紋理與時尚感。



餐廚設計
由於屋主在家料理時多以輕食為主,加上希望能與待在客廳的家人維持互動,因此不做區隔、將餐廚區域完全打開。有鑑於原本建商所附贈的中島尺寸較小、不敷使用,遂將之延伸,便於置放電子酒櫃和其他廚電設備。與中島連接的餐桌特別選配一張較大尺度的款式搭配兩盞moooi Valentine吊燈,在餐敘燈光氣氛用途之餘,也能支應屋主在家辦公或遠距上班的機能需求。



多功能房設計
有別於樓下的沉穩大器,樓上公共區域色彩明顯轉為清爽乾淨的配置,挹注年輕活潑的氣息。此多功能房也是親密家人方能共享、弛放身心的空間,設計師分別將屋主需要的電玩、閱讀、樂音演奏、享受按摩等多種休閒機能一一納入,並按照各區域進行活動時的高度,搭配Xcellent自在飛翔的燈具以提供足夠照度,高低錯落使空間更添動感。



主臥設計
考量睡眠時的隱私與安全感,以及需收納大量衣物之故,從主臥入口進來即規劃為更衣間,且以天花板燈帶導引視覺,降低長方形場域的壓迫感。整體藉由簡約俐落的設計與輕淺色調放大空間感,配搭有著立體線條的造型板電視牆與鍍鈦打造的置物平台,增添高雅微奢的氣韻。



樓梯設計
作為兩個樓層的過渡空間,樓梯無疑也是一個展現居家質感的角落。大片的清透玻璃扶手與純淨色系,佐以Tom Dixon Melt熔岩系列燈飾及Xcellent映象壁燈、畫作點綴,踏階而上彷彿置身美術館般,絲毫沒有傳統樓梯的封閉、壓抑感受,反而讓人想要駐足於此眺望窗外風光呢!


裝修後記
屋主一家四口原本居住於一層約32坪的大樓公寓中,但受限於空間無法全數容納心目中期待的生活機能。如今透過換屋並將生活機能分層處理後,不僅解決了收納不足和全家經常擠在小小書房的困擾,也能因應不同人生階段的轉變,讓家庭成員自在悠遊於各個「埕」之間,締造更豐富的生活體驗與樂趣。







