隨手换装,輕鬆感受装修效果
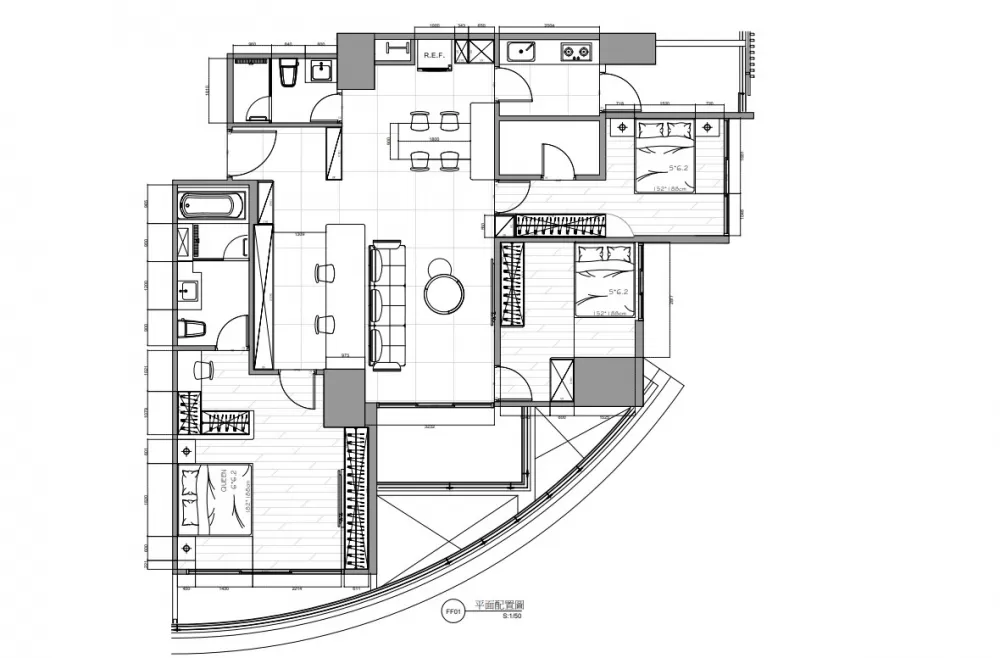
平面規劃
設計師將原先兩臥房的出入口封起,出入口則更改在電視牆的兩側,把多餘的空間留給主臥,並在主臥內規劃一間更衣室,而原本的封閉廚房,也改成開放式設計,放大公領域和提升整體明亮度。

▲設計後平面圖

完整裝修工具包(清單+話術+模板)已為你準備好!
玄關設計
玄關以磁磚建立出落塵區,讓進門更加有儀式感,同時提升清潔方便度,懸空式鞋櫃下方,不僅可以放置常用的鞋子,視覺上也較為輕盈。

▲鞋櫃上的斜線把手,為玄關增添不少趣味性和設計感。
餐廚設計


▲小中島和吊架設計,多了備餐平台和收納機能。
客廳設計
電視牆到輕食區牆面運用不同材質,鋪陳出豐富的美感變化,主牆中段以黑色玻璃櫃體點綴镀鈦金屬邊框,畫龍點睛般地注入精奢質感,通往臥室的隱藏門亦隱於其旁。

▲波浪板造型牆與溫潤木頭地板,更添和諧韻味與溫潤氛圍。


書房設計
設計師在沙發後方擺放書桌,讓屋主在辦公的同時,也能看著孩子與家人的互動。收納櫃則以不規則的切割線條呈現,帶點造型感的幾何圖形變化,不僅注入活潑氣息,也減弱了整面櫃體的厚重感。

▲特殊造型的燈具,以寫意遊走的線條,勾勒出疏狂不羈的意象。


主臥設計
床頭背牆的奶茶色調,配上格柵和鍍鈦的線條設計,打造出溫柔又設計感十足的空間端景,因應屋主需求,設計師增設了半開放式的L型更衣室與梳妝台,內部的櫃體則選用布織紋和帶灰色調的色彩,柔和中帶點沉穩氛圍。

▲主牆選用線型燈具增加線條,簡單俐落中又不失設計感。


次臥設計
櫃體設計將開放式收納,集中在下半部,並以童趣的造型裝飾,讓視覺上更加有趣,而櫃體面板則使用布織紋面板,提升柔軟度。

小編Memo
空間看似簡單,但在各處都可以看到異材質拼接的手法,讓空間的細節度瞬間增加不少。








