還在瞎猜風格?動手點點,秒匹配你的裝修風格
想瞭解服務流程
丈量費用多少
想瞭解收費方式、收費節點
裝修預算怎麼抓
設計方案包含家具規劃嗎
該在什麼時候找設計師
設計師會合理控制預算嗎
找設計師前要做什麼準備
有案例平面圖嗎
設計費怎麼收
想瞭解服務流程
丈量費用多少
想瞭解收費方式、收費節點
裝修預算怎麼抓
設計方案包含家具規劃嗎
該在什麼時候找設計師
設計師會合理控制預算嗎
找設計師前要做什麼準備
有案例平面圖嗎
設計費怎麼收
一、前言
學生時期在台中生活了四年,深深被這城市吸引,總是幻想著能擁有一間台中的房...
2021年,房價依舊在飆漲,政府通過房地合一2.0,許多投資客避免被課重稅紛紛降價賣屋,又遇到新冠肺炎爆發,雖然疫情期間不該亂跑,但為了口袋裡辛苦賺來的錢只好這時間出去看房殺個好價格。
跟著房仲看了好幾間房,因為疫情期間許多社區都禁止看房,房仲還是幫忙處理實在是很感謝,最終也買到心目中喜歡的房子。

二、尋找設計師
買完房後,不斷地穿梭在各種討論串,發現簡單顏色搭配的風格是我想要的,陸續找了5組人馬洽談。
第一組:丈量完後不讀不回,不知是否預算問題,當天老闆過來丈量完說他要去露營,後續就沒有回應了。
第二組:家人介紹的,是兩位年輕男生,丈量完後沒幾天就突然傳一張渲染圖說可以做成這種感覺,但美感實在不是我的菜於是打槍了。
第三組:統包師傅,他說常常幫豪宅做規劃,有帶我去看他以前的作品,跟前客戶的互動也讓我覺得做事應該很不錯,可惜太難約了。
第四組:一對年輕夫妻,對談過程都很舒服,紀錄也很詳細,需求都會幫忙列出來,可惜第三次討論時老闆跑來有點強迫盡快簽約有點不舒服,就想說緩一下。
第五組:朋友介紹的,似乎是大學時期的前輩,第一次來丈量就給我留下很好的印象,去現場討論時連3D圖都弄好了,讓第一次裝潢的我快速瞭解空間是怎麼規劃的,風格也非常符合我所喜歡的,心中就決定要讓此設計師幫我設計。PS.3D圖應該是設計師剛好有空才先弄的,不確定是否每一位都會這樣做XD

三、設計規劃
1.我們的需求
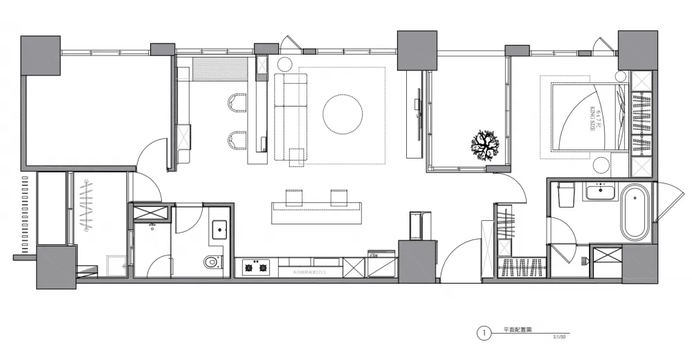
2.設計圖&3D圖


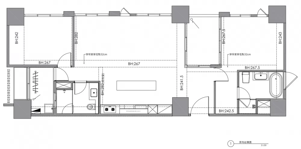
先放上平面配置圖
接著是3D圖。每次的討論都是用3D直接邊討論邊改,不然我根本聽不懂在幹嘛...

玄關

從玄關走入


開放式書房

從廚房往外看

窗外往室內看
3.渲染圖
放上3D渲染後的圖片,雖然後面整體顏色不太一樣,因為我一直擔心會太暖 ;最主要不同的點應該是因為地板,後面鋪上冷色調的木地板。

渲染玄關


渲染客廳

渲染客廳與廚房

完整裝修工具包(清單+話術+模板)已為你準備好!
四、施工過程
施工過程,設計師每一期都會出一個簡報讓我瞭解目前進度,也很常line給我進度照片。

施工前照片分享。買完房後想在新家睡一下,放上大學時期用的床墊XD

開工前的拜拜,設計師幫忙準備好過來。
1.保護、木工、拆除
因為設計師決定自己出來開業,剛好我有朋友在做木工,順勢就讓他們配合看看。其實心裡有點害怕,畢竟不是老師傅年紀又比我小, 但成果還不賴!



室內保護

梯廳保護
工地都保持得很乾淨,設計師說他都會嚴格要求工班下班打掃!



2.油漆、塗料


油漆

塗料

放上兩張巡視工地發現的小可愛。麵包超人&貓咪
3.收尾、木地板
其實一開始因為很喜歡建商原本的地板,但因為實在是太黃了,於是臨時決定鋪木地板。去家具廠商那邊,那位家配師大力推薦一定要鋪,立刻決定直接鋪上去!

準備細清

安裝窗簾

鋪設地板
五、完工美圖
附上完工美照。上午時間,白色的陽光照亮室內,跟攝影圖一樣;下午時間,金色的陽光灑入室內,跟渲染圖相似。










六、心得
設計師在過程中非常細心,因為預算有限也會幫忙比價,每天早上看到客廳的景色就覺得心情很好,祝福大家都能擁有一間自己喜歡的房子。
放上幾張在這裡自己拍的照片。


臥榻

PS.我這間是此設計師自己開始接的第一案,可能要去IG搜尋寄信過去洽談









