風格選到暈?怕裝完不喜歡?30 秒測專屬風格,裝出理想家!
任職於遊戲設計公司的男主人,租屋多年後決定和另一半攜手共組家庭,並購入人生第一間屋房。身為科技工作者,他期待新家能結合遠端控制與智慧聲控,成為現代智能住宅,並且需納入100吋的投影布幕及樂高、公仔等多樣化的收藏品。一起來看看Mike如何創造出複合式的場域機能,同時又能維持開闊舒適的居住感受。
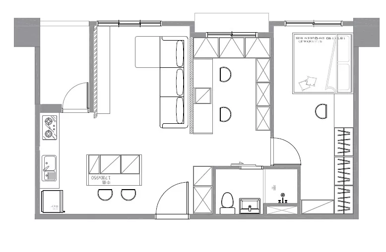
平面配置
室內實際裝修面積為15坪,屋主於預售屋階段,便委託三商美福景美門市規劃顧問郭來哲Mike進行客變。由於建商原本的兩房格局讓空間顯得較為狹小,遂將客廳後方的隔間牆取消,改為開放式書房,與客廳及餐廚相互串連,放大空間感。為達成各區域的儲物機能,將櫃體沿牆面切齊鋪陳,同時利用格柵美曲板遮蔽配電箱,並延續至衛浴和主臥區域化為隱藏門片,形塑出寬敞的動線與視線。

設計主軸&特色
除了空間中需配備100吋升降式投影機及展示個人收藏之外,屋主也希望透過此次設計,把吊隱式冷氣、吊隱式除濕機、VAF音響設備及燈光、窗簾等裝置,結合手機APP和語音聲控功能來操作。有別於一般住家,這間兼具視聽娛樂和智慧家居的小宅,在規劃上更需要專業且細膩的思考,並且需不厭其煩地和水電師傅溝通模組如何安裝、配線與迴路怎麼走、空間如何配合投影布幕的設置、投影機安裝位置等等,以一圓屋主的全智能宅夢想。
在設計風格方面,屋主偏好個性化的展現,因此全室以其喜愛的深色木皮,搭襯奶白與灰色調,塑造沉靜又不失現代感的風貌。由於大樑橫亙及藏有較多設備、繁複管線的關係,天花板運用木皮板做為連貫語彙,並加入導弧形與刻溝等手法,增添視覺變化。
為使屋主能直接經由擬真的環景設計預先看見自宅裝修後的樣貌,規劃顧問在此個案中同樣搭配「720°VR全境擬真實境」的服務,無死角地呈現色彩搭配和材質運用效果。不僅能在規劃初期就每一個細節進行更細緻的討論,施工期間更可藉著「全景工程攝影系統」從手機觀看新家現場裝修進度。
各空間720°VR全境擬真實境

全開放式規劃公共空間

客廳與書房空間

與客廳呵成一氣的中島餐廚區

兼具工作、閱讀、展示收藏的書房區

主臥
帶走上百屋主驗證的《裝修最全指南》,簡訊免費發您
玄關設計
入門處以錯落拼接的六角磚與室內木地板形成區隔,且不規則延伸至各場域,既有引導動線的效果,亦能帶來生動活潑的視覺。懸空高櫃擺放一座日本原裝的旋轉鞋櫃之餘,也搭配置物層板,提供強大的收納力。一旁則結合了穿鞋椅與大片灰鏡,讓出入、整裝的機能更加完善。


客廳設計
電視牆使用富含紋理的灰色特殊漆表現,於轉折處以圓弧造型收邊並內藏燈管,提升觀影時的氣氛。下方透過一列木作低台放置落地式影音設備,且加入線槽設計保持乾淨俐落的空間視覺;右下角一隅以灌沙填充達到吸音作用,降低開啟音響時共鳴低頻音的出現。上方天花安裝100吋電動投影布幕,使客廳搖身一變為極富臨場感的視聽室,無需使用時可全部隱藏於內。



書房設計
客廳後方以一道半高的美曲板弧型沙發背牆,界定出開放式工作書房,並將投影機裝設於上方天花。窗邊利用平掀式收納和軟墊打造出休閒臥榻,貼牆而立的櫃體集玻璃展示和門片式收納於一體,右下角則留出一個75公分高的凹處空間,讓屋主能放置掃地機器人等家電。


餐廚設計
廚房區域沿用建商選配的廚具,但為讓整體風格更協調,遂更換了廚櫃門板顏色,並把背牆原有的烤漆玻璃改為地鐵磚。餐廳區藉由一座嵌有電爐的中島,滿足日常用餐與烹煮火鍋的飲食需求。朝向客廳的這一側規劃電器收納櫃,並根據屋主想要的機種一一規劃好相應的尺寸;側向刻意採斜邊造型設計,降低島台厚重感受;吧檯椅座位區搭配條燈,增添時尚感,佐以數盞金屬吊燈,使人宛如身處餐酒吧一般。



主臥設計
有鑑於屋主挑選的寢床已具備床頭造型片,因此床頭牆簡單以柔美的霧鄉色打底,打造純粹寧靜的舒眠氣氛。臥室另一側則規劃了收納量充足的門片式衣櫃,並由此延伸設計一座精巧的梳妝桌,櫃體對向牆面亦貼覆鏡子,方便檢視穿搭。



裝修後記
在規劃顧問Mike的操刀及三商美福堅實的設計施工團隊戮力之下,原本小坪數空間得以完美活化,不但涵括了實用且多元的生活機能,也導入屋主滿心嚮往的智慧科技,可依隨不同情境或需求更自在地使用,盡情感受宅在家的美好時光。
作品使用的系統櫃、油漆色號、相關產品:
| 系統櫃板材型號 | 地板材質 | 油漆色號 | |
| 玄關 | A322天然灰橡 J560 奶茶米 | PERGO 大地深橡 | 46YY 33/057 |
| 餐廳+廚房 | A322天然灰橡 J560 奶茶米 賽麗石:CS201 | PERGO 大地深橡 | 44YY 65/034 |
| 客廳 | A322天然灰橡 J560 奶茶米 | PERGO 大地深橡 | 斯曼特SCT-305 |
| 主臥 | A322天然灰橡 J560 奶茶米 B255 大理石紋白 | PERGO 大地深橡 | 霧鄉 |
| 書房 | A322天然灰橡 J560 奶茶米 | PERGO 大地深橡 | 46YY 33/057 |








