風格選到暈?怕裝完不喜歡?30 秒測專屬風格,裝出理想家!
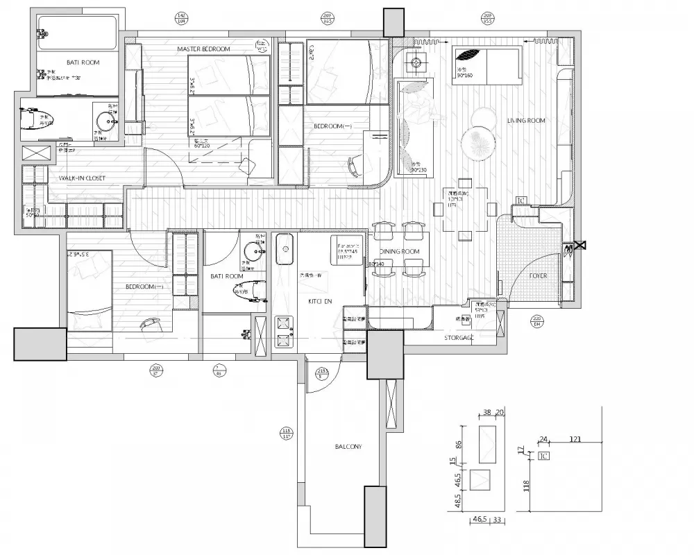
一、需求與改造前/後的平面格局
首次購屋的夫妻倆,購入了位於新竹竹北的中古屋,除了部分需求外,藉由與設計團隊的溝通,討論出符合兩人的習慣需求並安排於各場域。因應娛樂需求,將尺寸較大的電動麻將桌設置了獨立放置的空間隱藏於公領域; 希望能有更好的睡眠品質,屋主選用了兩張單人床以降低干擾,團隊也使用隔熱膜搭配遮光風琴簾減少場域內自然光源的干擾以提升睡眠品質。透過知域設計團隊的改造巧思後,有效的解決屋主的困擾;色彩則以女主人希望的莫蘭迪粉色調為主,能讓人沉澱靜心,也使夫妻倆擁有溫馨的居家時光。

二、施工前before圖



將原本老舊的櫃體設計都徹底翻新,重新挑選屏風材質,不但劃分領域且援引了足夠的自然光;另外將廚房調整為開放式空間,規劃適切動線增加彈性。私領域部分拆除過大的量體,採線條俐落的半矮櫃、弧形木造量體,減低視覺上的壓迫感,讓視覺更顯通透。
三、Room Tour完工照賞析
玄關
入門處採用較深的木色,穩定回家心情,沿著玄關廊道往內走,變身以「莫蘭迪粉」為基底,並以天花弧形造型旋繞於白與木質的空間,線性動線也使自然光貫穿全室。玄關的鞋櫃與汙衣吊掛的結合,以及鐵件屏風置物層架,消除風水上的疑慮。位在玄關與餐桌、電器櫃中間的儲藏室,考量收納電動麻將桌以及其他物品,所以將儲藏室設計為兩扇門,一扇專讓麻將桌進出,要拿取其他物品時,可從另一扇門,也不會擋住吊掛鑰匙的小鐵板。色彩與切割的交相搭配,達成和諧又兼具機能的的貼心設計。



客廳
玄關進門的視線端景,恰好落在沙發背後的銀狐造型牆,流暢的灰白色調從玄關延續電視牆面,也襯托出電視牆所鋪陳的莫蘭迪粉。客廳的電視櫃則採用暖白的實木貼皮,使視覺色彩的冷暖更平衡一些;上方的收納展示櫃透過鐵漸層架崁入牆面,更為堅固,而局部的斜切線條變化,在一片優雅粉色調中注入活潑感。選用的灰色調沙發與金色燈飾軟件,完美點綴空間的優美氛圍。



廚房&餐廳
莫蘭粉與白色系為主的廚房&餐廳空間,營造出柔美的風格感。餐桌是家人互動對話與享受美食的地方,設計團隊調整了廚房的出入口,簡化與餐廳的連貫,讓動線更為流暢,讓餐廳亦成為居家的重心,烹調與用餐成為繁忙夫妻間回到家後的日常情趣。


主臥&次臥
粉色系延伸至私領域的主臥,並且打造弧形拉門的複合式收納櫃,另外也預留牆面可置入電視,下方設計木質的抽屜櫃。為保有屋主良好的睡眠品質,除了主臥窗戶加貼隔熱貼紙,以及遮光風琴簾外,床頭兩側,將原有的螢光開關,皆換成無螢光的迷你開關。
另外在次臥,床頭鋪陳1/3灰色牆呈現清新簡約的效果,而在大面窗邊,設計一體成形的書桌以及層架,結合閱讀、收納及休憩的多元功能,另外淺色的衣櫃有別於粉色調,採比較中性的米色、木紋為主視覺,形塑出有層次的風格韻味。




帶走上百屋主驗證的《裝修最全指南》,簡訊免費發您
四、裝修後記
本案最大的優點是格局條件符合屋主所需,所以不用調整隔間牆,透過團隊設計的翻新與巧思,例如顏色鋪陳和打造符合使用的收納機能,讓中古屋也能翻轉成為充滿浪漫情調的溫馨住所,融合出讓人心生嚮往的美好成果。








