原本和長輩同住的屋主夫妻,在孩子出生後考量日漸成長、需要更大空間,於是決定就近購屋,並委託擅於打造暖心舒適居宅的知域設計團隊著手規劃。然而,男女主人對新家卻分別抱持截然不同的風格想像,該如何完美融合且維持空間的開闊感,遂成為這次的設計主軸。
格局規劃&設計重點
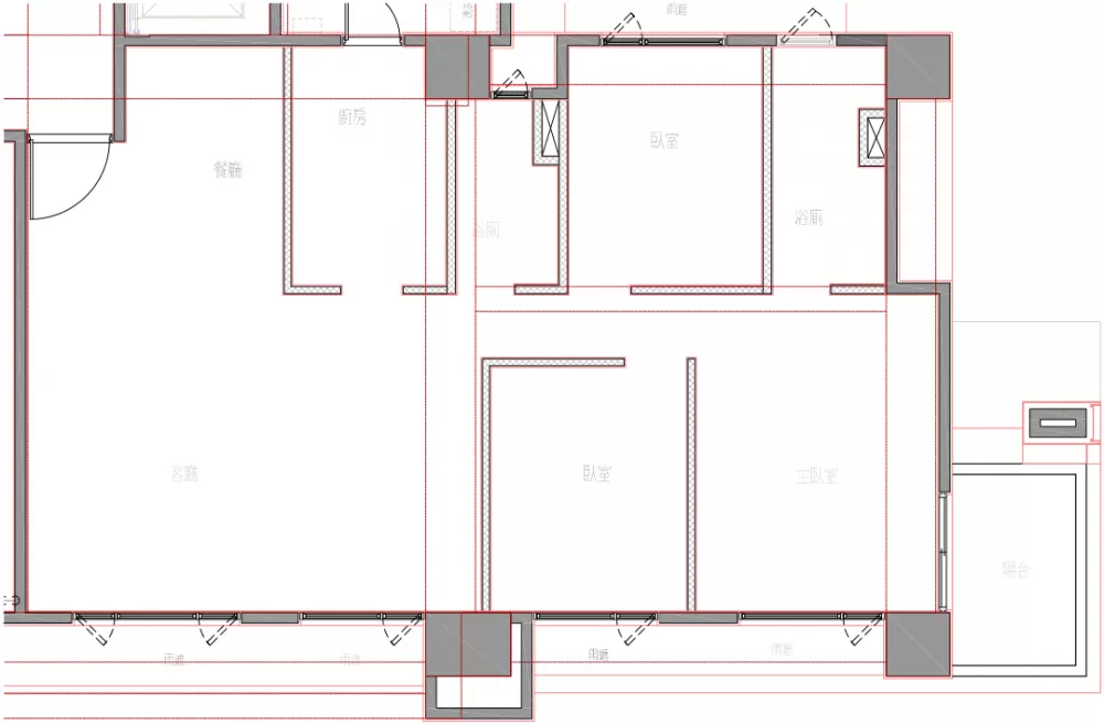
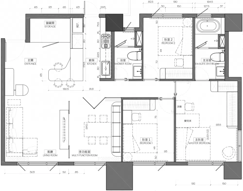
在室內28.5坪的格局裡原本即隔出3房,客餐廳公領域顯得十分寬闊,但是廚房區域卻被隔間牆阻斷,不符合屋主期待的通透空間感及家人可親密互動的需求。於是設計師運用透明材質將封閉廚房打開,另在偌大的客廳中增闢一間多功能房,達到空間放大目的。原本於大門和廚房之間、預設為餐廳的區域,則利用凹處規劃出儲藏室,再透過造型線條將門片隱藏起來。
夫妻兩人都希望空間配色簡單,但又不失活潑感,且融入圓弧設計,確保好動的小孩跑跳玩耍時能更安全。不過,他們喜愛的風格和顏色,卻有著不同的想法,男主人喜歡現代極簡及彩度較低的灰,或藍灰等的冷色系;女主人則是偏好美式鄉村風與溫暖而鮮明的色彩。
為使彼此的嚮往能相互融合,設計師細緻拆解並組合兩人喜愛的元素,比方說將女主人喜歡的線板和窗格加以簡化,以俐落線條呈現於櫃體門片、電視牆和廚房玻璃窗等處。同時也從自然界中汲取靈感,把不同的色彩需求和材質表現轉化為海浪和沙岸景致,為空間開創嶄新的生活視野。

Before平面圖

After平面圖
2025最新最全裝修省錢避坑指南免費領!
玄關設計
從大門進入,一座以曲弧造型打造的玄關櫃和穿鞋椅,不僅提供了實用的機能,也成為入口的優雅端景,宛如波浪的弧線亦能自然而然引導視線與動線。地坪鋪設屋主喜愛的花磚界定出落塵區,並沿著外框滾邊的設計,成為空間亮點。

客廳設計
以海洋大自然為意象的設計主軸中,設計師藉由空間廊道做為交界,客廳這一側隱喻海灘,因此選用樸質的淺色鋪陳。為滿足屋主希望保留寬敞感又能增加使用機能的需求,透過一面局部穿透的造型電視牆,及可完全收納至電視牆後方的玻璃拉門,區隔出客廳和多功能室,平日門片收起後即形成環狀的回字形動線,靈活且通透。




完整裝修工具包(清單+話術+模板)已為你準備好!
餐廚設計
將位於玄關左邊動線上的廚房,改由清透玻璃為介質向外敞開,並延伸設計出精巧的吧檯桌,既是一家三口平日的用餐空間,亦可一起製作輕食。面向吧檯桌的這一側還特別設置了活動軌道玻璃窗連接廚房,便於遞送料理,也能創造出更多互動。
相對於廊道右側客廳的「沙灘」景象,廚房一端則加入或深或淺的藍色系點綴,也運用了豐富的玻璃材質,用以象徵蔚藍海洋,以及在陽光照射下波光粼粼的水面。


多功能室設計
藉由一道電視牆與彈性軌道拉門劃分的多功能室,可全然開放也可安靜獨立,平常是書房用途,當家中有親友來訪聚餐時亦可做為餐廳。能雙面使用的電視牆,讓多功能室也能有充足的收納空間;主牆則以特殊塗料鏝抹出細緻的視覺層次,配搭錯落有致的層架,供屋主擺放家庭照或喜愛的展示品。


主臥設計
在米白色調的基底下融入暖柔沙色,並延續公領域的流線造型,佐以溫馨燈光,營造柔軟放鬆的休憩氛圍。除了沿牆設置能收納大量衣物的衣櫃之外,亦在轉角規劃可多向使用的櫃體。弧線造型的開放式吊衣桿,可隨手吊掛、拿取已穿過還不需要馬上清洗的家居服或圍巾等配件;近主浴入口處改為可由側邊取用的吊櫃,便於放置各式洗浴備品;下方設置上掀式儲物櫃,尺寸適足以納入棉被、枕頭、床單等寢具。


次臥與客房設計
面對年幼且活力充沛的小孩,兒童房牆面運用深淺藍色和白色,拼接出藍天與柔軟雲朵的趣味造型牆;考量幼兒活動的安全性,房內家具與佈置以簡單為原則,如此也能預留空間擴充彈性,可依未來成長需求添購或組合。
另一間臥室除了是親友臨時留宿的客房,因擁有絕佳窗景,亦是屋主夫妻倆共享閱讀或賞景休憩的空間。設計師於是沿窗設置一列長桌,並以呼應全室主題的深藍做跳色。


裝修後記
在開放通透的場域裡,知域設計團隊活用弧形元素架構,並引導視覺流動、延伸,進一步放大了空間感,也營造出柔潤舒適的生活氛圍。








