風格選到暈?怕裝完不喜歡?30 秒測專屬風格,裝出理想家!
屋主需求
1.寬廣的公共空間。
2.喜歡簡單、清淡素雅的風格。
3.廚房改為開放式。
均擔任教職的男女主人,擁有許多相同的喜好,亦十分享受兩人世界。就像許多年輕夫妻一般,兩人用努力攢下的積蓄買了房,並委託關注已久的TACC太工創作主持設計師李冠霖協助裝修,企盼將他倆熱愛的生活情境融入居宅之中。
格局配置
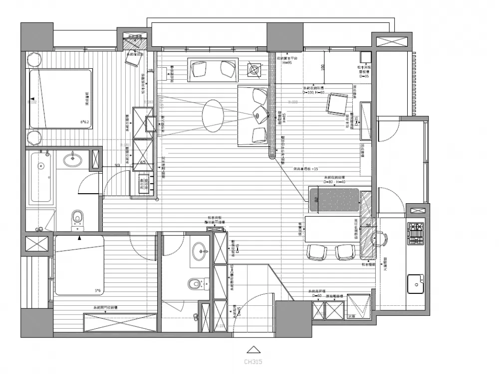
本案室內坪數約35坪,原本為三房格局,因應使用需求僅保留兩間臥室,遂釋放出位於客廳後方的一房,規劃為架高書房區。同時也將廚房一側牆面拆除,和餐廳、書房、客廳等區域相互串連,讓整體住宅機能更臻完整且符合屋主的生活型態,也不致於因空間的多元用途而有區塊分割瑣碎的問題。

Before平面圖

After平面圖
玄關設計
於入口大門左側配置一整排鞋櫃及收納櫃體,為化解大面積櫥櫃帶來沉重與單調感受,設計師透過線條分割手法,並運用多種材質和顏色的門片交錯搭配,營造更豐富有變化的視覺層次。落塵區沿用建商原始地磚,在與木地板銜接之處特意導入斜角設計,放大玄關空間感,並由此牽引至室內各個區域。


完整裝修工具包(清單+話術+模板)已為你準備好!
客廳設計
電視主牆以灰色調的水泥粉光鋪陳,在既有淨白牆面的襯托下,樸質中又顯細膩。並將設備櫃嵌入牆中,使立面保持乾淨平整,更與旁側格櫃形成活潑的方塊視覺。沙發後方以半高牆面為靠,亦劃分出書房的區域屬性,橫亙於上方的巨大樑體,巧用兩根實木條裝飾,消弭結構造成的壓迫感。因裝設全熱交換器的需求,在垂直向天花板上藉由曲弧造型包覆隱藏,也讓空間線條更加圓潤。



書房設計
開放式的休憩書房以架高木地板作為界定,成為男女主人在家時得以一起從事拼圖、畫畫、紙雕等休閒活動的空間。因包覆全熱交換機管線所構成的突兀牆角,設計師利用灰黑色不規則造型修飾、弱化存在感,亦成了入門時的視覺焦點。貼覆於沙發背牆側邊壁面的牆板,除了可吊掛小物和擺飾之外,當屋主偶爾想要一邊使用筆電或閱讀、一邊看電視時,下掀後立刻秒變桌板。



餐廚設計
對外敞開後的廚房,透過一座中島工作台的增設,使備餐和收納機能都更為充裕,滿足小倆口熱愛一同下廚煮飯的生活樂趣。而這座中島也是空間中重要的銜接,由此到餐桌、臥榻座椅再延伸至書房架高地板,形塑出寬闊且流暢的空間尺度。


主臥設計
捨棄多餘的造型和裝飾元素,寢臥空間採用大片的白與木色為基底,少量水泥灰點綴,床頭牆則運用屋主喜愛的水藍色劃出一斜角造型,以呼應公領域氛圍及設計語彙。原始格局本有一隅內凹處,設計師順勢將梳妝桌納入,將畸零視覺轉化為實用的機能場域。



裝修後記
「使用者的日常生活行為是整場設計的起點,為了使屋主夫妻能自在漫遊於空間中,有更多的分享和互動,我們讓各區域保有獨立與完整性,也透過視線和動線的串接,打造一個開放通透、彼此連貫的起居場所。」 李冠霖設計師說道。







