想瞭解服務流程
丈量費用多少
想瞭解收費方式、收費節點
裝修預算怎麼抓
設計方案包含家具規劃嗎
該在什麼時候找設計師
設計師會合理控制預算嗎
找設計師前要做什麼準備
有案例平面圖嗎
設計費怎麼收
想瞭解服務流程
丈量費用多少
想瞭解收費方式、收費節點
裝修預算怎麼抓
設計方案包含家具規劃嗎
該在什麼時候找設計師
設計師會合理控制預算嗎
找設計師前要做什麼準備
有案例平面圖嗎
設計費怎麼收
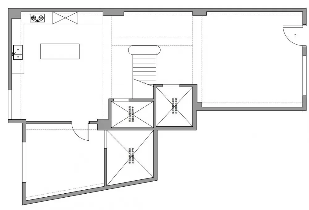
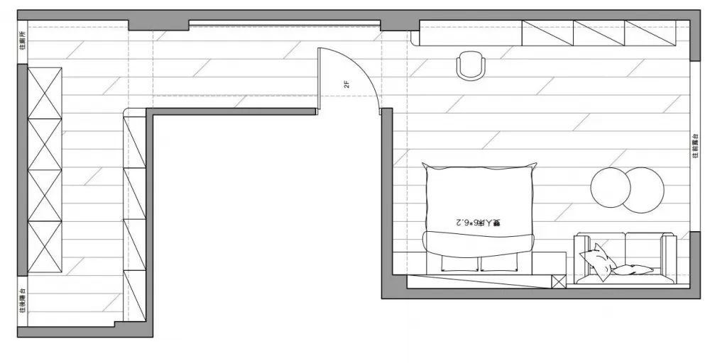
一、需求與改造前/後的平面格局


(一樓)


(二樓)
我們是首次購屋,考量家庭成員多、父母親也已年邁,所以當時購屋的條件希望是電梯房,很幸運的買到一棟四層樓、格局也相當不錯的新宅。我和老公工作都很忙碌,雖然在裝潢前有上網做了很多功課,想找到自己心目中的裝潢風格,只是愈看愈亂,完全沒有頭緒,所以最後決定把目標設定為找設計師,藉由設計師的巧思來打造出屬於我們的新家。詢問幾家後,最後決定委請歐德集團,主要原因在於對品牌的印象很不錯,再則系統櫃強調無毒環保綠建材,對於有小孩的我們,就成了第一首選,再加上家裡主要只做一、二樓,與其他設計師洽詢時都無法GET到我需求的點(報價總超過自己的預算…),而歐德給我的整體感覺就是:CP值真的有夠高!也真的都聽進我要的!讓我繼續緩緩道來〜
令我驚豔的是,金設計師從第一次來家裡丈量到出圖的時間,相當有效率,3D圖所呈現的樣貌完全是自己想要的。在格局本身就不錯的空間下,她做了簡單的畸零修飾,讓原本被梁柱切割的空間重新整合,不僅創造區域完整性,還爭取到很多收納空間。另外還利用特殊型體的門板造型,讓收納櫃體主牆化,每個空間扮演不同角色,明顯劃分各區域,全室用了黑灰白三色搭配,讓新家顯得俐落有型。
二、施工before&after對照


將客廳作為公領域的生活重心,透過格局與動線調整,在同一場域中創造出多元的運用。


餐廳與廚房打造成開放式展示&收納櫃,為避免產生阻礙感,也增設鐵件層板打造通透性視覺。


在臥房中用一道造型衣櫥取代傳統的牆面,另外還能將梳妝檯收納於櫥櫃內。
裝修預算規劃與避坑清單
含Excel模板,限時0元領取
三、Room Tour完工照賞析
玄關&客廳




以客廳來說,特別是入門處,將玄關櫃直接串連電視背牆,顯得更大器,為了讓其不顯呆板且具有設計感,上下離地的懸空設計搭配白色格柵造型,讓龐大櫃體擺脫笨重感更雅致,整面牆除了收納外便是訴求純粹,也不影響居家的視聽經驗。沙發背牆則是用鍍鈦金屬點綴,展現內斂又不失時尚的居家風格。
餐廳



餐廚區是全家人與賓客聊天,交誼最頻繁的處所,因此除了增設拉門規劃為正式餐廳格局,還將中島吧檯與6人用的180公分長桌結合,形成T字形,層次交疊的桌面高度與簡單實用的櫃體機能,讓此區增加不少方便性。尤其賦予充足的餐櫃、電器櫃設計,除了在不同高度因應需求增加門櫃、檯面與抽屜櫃等設計,開放式層板也更顯輕盈感。
主臥




主臥內有一大片落地窗,所以是以自然採光搭配木質調元素來做規劃呈現,設計師以簡約的線板造型加上細緻的軟裝為輔,另外還鋪陳人字型木地板,形塑出空間的溫暖舒心。設計師更發揮巧思,將衣櫃櫃體沿牆作滿,一半為收納衣物,另半邊則作為梳妝檯與電視區,一旦不使用就能用活動門遮蔽,不僅維持立面的俐落乾淨,也讓空間中充滿無限驚奇。
四、入住心得
住進新家後,我實在很滿意充足的收納,印象當時金設計師來丈量時,我從入門玄關處就開始把過往家裡大大小小成員們的生活習慣、收納需求都跟她說,所以無論是看到3D圖或者後續的施工,過程都讓我們夫妻很放心!畢竟實在太忙,有些細節很難留意,但設計師都幫我們顧到好。另外還有一處讓自己驚豔的空間,就是二樓主臥外,每當看著有植栽的洞洞牆和木質櫃體,無論是一天的開始、或是一天的結束,都讓人心情很愉悅呢〜



完整裝修工具包(清單+話術+模板)已為你準備好!







