自行創業的屋主夫妻,儘管平日工作十分忙碌,仍非常珍視與家人相處的分分秒秒。為了讓成長中的兩個寶貝女兒能有更寬敞安全的活動尺度,以及能靜心閱讀和學習的空間,遂換屋購入新宅,並委託知域設計團隊打造符合生活所需的明淨簡約之家。
格局規劃
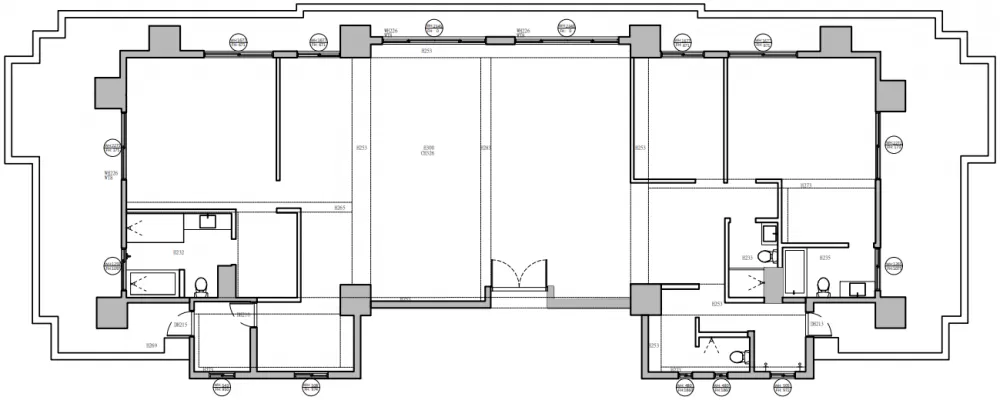
這是一間已有12年屋齡的中古屋,由於先前都未曾有人住過,因此整體屋況還算不錯,也擁有良好的採光及視野。而原始格局的公領域雖然極為敞亮,但兩側房間切割卻稍顯破碎,與屋主希望隔出完整4房和一間大書房的實際使用需求亦不相符。此外,女主人提及過去買房時往往都是前任屋主已裝修好的樣貌,期待藉著這次規劃創造屬於自家風格的生活空間。
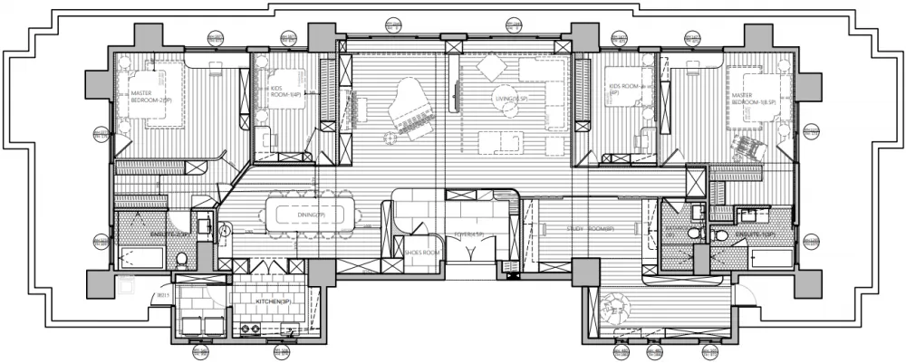
於是設計師將房間重新配置,並在原本一覽無遺的公共領域劃分出獨立玄關,同時保留屋房本身明亮遼闊的優勢。因應兩個女孩兒經常在家跑跳嬉戲,以及屋主偏好簡練俐落的居家質感,全室以曲線、圓弧為設計主軸,且運用低彩度配色圍塑清新雋永的北歐風宅邸。

Before改造前平面圖

After改造後平面圖
2025最新最全裝修省錢避坑指南免費領!
玄關設計
於鄰近大門處規劃一系列白色櫃體與木質穿鞋椅,提供收納及穿換鞋等實用機能,圓弧造型牆局部搭配通透的玻璃質材,讓自然光得以恣意穿梭。門口左側更配置了一間儲藏室,讓行李箱或腳踏車等大型物品可直接進駐,收納更方便省力,曲面牆體設計也自然引領動線,化解方正隔間帶來的生硬感。



客廳與練琴室設計
在能充分將戶外景致映入眼簾的公領域中,讓客廳與練琴區彼此連貫,並透過旋轉電視界定兩個不同機能場域,且維持開闊的空間感。沙發背牆以特殊塗料注入自然質樸氛圍,順著柔潤弧度向上蔓延至天花板,無接縫的一體成形設計,既大器又優雅。兩扇大面積落地窗加入拱門元素,不僅是為了包覆全熱交換器管線所做的修飾,也猶如畫框般溫柔包攬了窗外風景。




完整裝修工具包(清單+話術+模板)已為你準備好!
餐廚設計
屋主一家熱情好客,除了親友聚餐場合之外,女兒們也常邀請同儕至家中作客,因此特別訂製可容納8~10人的大餐桌。餐桌亦搭配了收納功能與插座,旁側牆面規劃一座附有洗槽的精巧吧檯,滿足備製、烹調各種料理的需求。在原本為開放式格局的餐廚之間增設雙開拱形玻璃門,讓廚房保持使用彈性,熱炒時可阻隔油煙,亦不破壞空間的通透感。


書房設計
將數個零散隔間打通後的書房與遊戲室,設置了豐富櫃體便於熱愛閱讀的孩子妥善收納書籍。除了各自的書桌之外,也利用一面結合烤漆玻璃的牆面提供塗鴉功能,亦便於家教老師書寫授課內容,同時將結構既有的柱體予以隱藏。


臥室設計
設計團隊在男女主人各自的臥室空間中,依其生活習慣納入和衛浴相互串連的更衣室,也配置了可梳妝或工作、閱讀的檯面及收納櫃體。並且運用顏色與簡潔造型勾勒出空間專屬的風格,男主臥採淺灰與深藍配色,再帶入筆直俐落的線條分割造型,塑造沉穩調性;女主臥以粉紫為主色調,佐以線板與弧形元素,鋪敘一室的優雅浪漫。
兩間孩房則根據個別的顏色喜好規劃,搭配局部跳色點綴與可展現立體層次的美曲板,增添活潑氣息。考量到女孩們未來長大衍生出獨立使用的需求,亦規劃了充足的櫃體,以及兼具書桌功用的化妝桌。


男主臥


女主臥



孩房
裝修後記
由於住宅初始是完全沒有任何裝潢的空屋狀態,有利於從頭擘劃、量身打造成自己喜愛的面貌,因此最後呈現的風格與機能都令屋主十分滿意。而兩位小女孩在入住新家後,終於有了能一同學習的書房及休憩遊戲的空間,也擁有各自獨立歇息睡眠的房間,更是開心不已!








