設計公司:演繹動線空間設計
工程內容:除了客衛不動,隔間拆除重新設計動線、全室造型天花板(圓弧形)、玄關落塵區磁磚、全室超耐磨木地板、跳色乳膠漆、電視牆特殊塗料、隱形門、長虹玻璃屏風、鐵件層板、全室木作及系統櫃等,還有原始建商主衛拆除衛浴設備重建及廚房廚具拆除打造全新開放式廚房

一、前言
在還沒有屬於自己的家之前,我們夫妻倆喜歡利用假日,到處體驗美麗又舒適的飯店。平常在高壓的工作環境下,對於生活的放鬆與舒壓相當重視,所以在設計新家時,很期待未來的家能享受如飯店般的精緻優雅。
裝修預算規劃與避坑清單
含Excel模板,限時0元領取
二、設計規劃

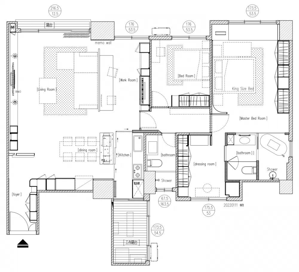
挑選設計師的時候,做了許多功課。參考本案設計師的作品時就很喜歡設計團隊的奶茶輕奢風格,而在聯繫當中,唯一本案設計團隊是由總監直接與我們通話聯繫,甚至在最初丈量時就當面仔細地傾聽我們的想法與需求。平面圖的版本大概提出了ABC三版,再由我們最喜歡的版本去做後續的設計延伸。
三、完工分享


玄關以⻄班牙進口大板磚作為迎接歸家,鞋櫃兩邊的圓弧收邊,以及原牆面整面茶鏡的延伸,打造出落塵區的同時,讓玄關更增添了圓潤溫馨的氣息,同時兼顧收納機能以及美感,賦予人居家的第一印象。電子鎖與感應式吊燈,兼具輕奢美感與方便進門儀式感。
由於風水的考量,在進門處端景做了玻璃屏風,不僅保有光線的穿透性,層板設計還可以放置花藝與展示品。



整體上以簡約明亮的風格,奶茶色烤漆加上相近色木皮營造精緻帶點奢華的質感,空間佈局上,原始廚房為獨立一字型空間,考量到坪數跟空間通透感,把隔間牆打除,讓公共空間感覺更寬闊舒適。多出中島檯面更能靈活運用廚房與輕食空間,也預留了未來如有需要做半開放式拉門的軌道。

電視牆選用色調素雅的特殊工藝塗料,清新淡雅,也能推砌出空間的精緻度與高級感。在不同光影下,塗料紋理會有些微顏色變化,增添豐富度。電視牆刻意留下大面積的空白,襯托家庭劇院的電視與音響,預先將管線埋於牆面後方,拉到左側機櫃內,維持乾淨而整潔。而機櫃刻意使用格柵式門片,可以達到散熱通風效果,又同時兼具遮擋櫃內物品視線。


整個家使用超耐磨木地板貫穿全屋,客廳燕麥色的進口沙發與大面落地窗白色智能電動直立簾,搭配造型感十足的餐廳吊燈與黑色吊架還有美觀極佳的近吸式抽油煙機,清爽的白色放大了視覺效果,帶點黑色讓家的層次更豐富卻不會亂,百看不膩的寧靜,便是生活最好的樣子。


設計師考量我們有時回到家還是會需要工作,在客廳後方規劃開放式書房,並特意將沙發背牆做高,適度的做遮擋與空間分界。弧形天花板線條交錯,適當柔和掉中間的大樑。


針對書房後方書櫃設計,設計師因應我們提出,日後想再學習鋼琴,所以多增設電子鋼琴的收納空間,並藉由拉門隱藏,讓立面完整,創造出實與虛並存的空間感。

書櫃旁做了相同木皮的隱藏門,保留立面一致性,又可以阻絕公共空間的氣味與聲音。推開隱藏門,順著走廊,就進入到私領域的部分。



餐邊櫃的設計也是個人相當喜歡的部分,原始廚房的收納是不夠使用的,設計師藉由格局調整後,不僅給予女屋主夢想的中島空間,也讓冰箱及電器櫃等機能可以一併整合。同樣的拉門設計,讓櫃內可放置小家電或咖啡機,可以保留立面完整度,更與入口處的汙衣櫃及儲藏櫃完全融合。


次臥為客房也是未來小孩房,牆面為溫潤的奶茶色調,使用系統衣櫃做收納裝修,利用可移動式傢俱做擺飾,打造保有彈性又溫馨的空間。

主臥室延伸奶茶色質感,打靜謐愜意的休憩氛圍,一樣利用弧線修飾床尾天花板並與主臥屏風及整個家互相呼應。淺色背景在視覺上更寬敞,搭配木紋系統櫃簡約和諧。床頭以淺紋理的壁板搭配鍍鈦條,與下方格柵造型拼接而成,兩邊不對稱吊燈與壁燈,營造出輕奢卻溫潤的感覺。


房間延續窗邊景緻,訂製吊架同時具備造型點綴與展示功能,臥榻兼具放鬆及收納機能。延伸到床尾這面則是整面式的衣櫃連成一體的設計,純淨色調與溫潤木紋巧妙組合出獨具質感的風格。

主臥結合了小房間,成為了更衣室,打造理想足夠的更衣收納,更是女主人的小小天地。茶玻與茶鏡運用得宜,保有通透感又不顯得凌亂。



為了讓我們夫妻享受生活,設計師將主衛整個重做,不僅讓浴缸及淋浴尺度加大,更藉由打開整面牆,利用玻璃材質做成穿透浴室,讓主臥與主浴視野更舒服,宛如身在高級飯店般的衛浴體驗。

完整裝修工具包(清單+話術+模板)已為你準備好!
四、智能家居篇
男生都有個智能宅的夢想,所以在設計初期就強烈要求要一併考量智能家居,太太原本覺得可以順手做的動作,為什麼要讓智能去執行,後來完工時的展現完全超乎太太意料之外,好多事情只要先說一聲"Hey Siri",就會發生神奇的事情,現在太太比我還喜歡使用這個功能,除了我之外,這個家還有其他是太太可以用嘴操控的東西(誤)。

可操控18盞燈,3台冷氣,三組窗簾,1個循環扇,以及一些溫濕度漏水偵測器,監視器甚至電視等電器。想像一下,早上起床只要說一聲早安,主臥窗簾自動打開讓陽光灑入,出門前說一聲再見,所有冷氣電燈自動關閉,回家前開好冷氣,還有循環扇加速降溫。
各種情境模式只要一句話都可以隨時切換,劇院模式讓我們的客廳變成週末家庭電影院。洗澡前燈跟窗簾都已經準備好,躺上床最後道一聲晚安,全室自動熄燈結束這一天。如果預算充足,強烈推薦智能家居,肯定不會讓你失望的!但要記得一定要在設計初期就納入,才會減少後續臨時加入的麻煩(線路安排,電器選擇等)。
五、結語
在撰寫的當下,彷彿掉進美好回憶的漩渦,一起與設計師來回討論的畫面,一起去挑選傢俱與材質的成就感,一起抉擇廚具衛浴設備的點點滴滴,很幸運能遇到品味與理念相當的設計團隊,願意接納我們提出的需求,又能在這些基礎下,用他們的專業,呈現我們對於家的想像,甚至超越我們的期待。
在繁忙的工作後回到家,身處開闊溫潤的空間,溫暖淡雅的色調,舒適宜人的居家動線,真的徹底療癒了一天的疲憊。
“回家猶如度假”,正是我們夫妻倆夢想中的幸福。

