
一、前言
今年,我們一家五口搬進的新家!想很久的開箱⋯⋯直到小孩開學後才有時間來記錄。
我跟先生的生活圈一直都在竹北,94年買了第一間房,因為當時沒有小孩所以房間規劃為兩房,想不到後來生了3個小鬼頭,雖然有個大主臥,但小孩長大了就覺得空間有點不足,在老大小三的時候,我們買了這間房,當時就設定要給孩子一人一間獨立的房間,所以特意選了四房的屋型。
雖然房子的坪數很符合我們的需求,但建商規畫的格局總覺得不是很完美,有些的空間不知道要怎麼運用,為了創造全家人對新家的期待,我們找了設計師來調整格局動線,希望未來的家可以契合我們的生活習慣,讓我們家的日常運作更順暢,也希望這個家可以適用到小孩長大,不需要再做過多的調整。


2025 空間設計包免費領!
收納超省空間,小坪數救星!
二、關於設計師的選擇
我們是網路搜尋找到的,一開始就鎖定要找竹北設計師,因為希望設計師能去現場監工、掌握進度,其他城市的設計師可能因為距離交通,現場監工的用心度多少會下降,這很重要的!聽聞許多設計公司監工外包、設計師就偶爾去個一次、幫你看看這樣。
我們夫妻兩人都是竹科工程師,又有三個小孩,平常很忙沒太多時間去現場監工,非常需要且仰賴設計師,信任度跟專業度都是我們評估的重點。
因為新家算是半毛胚,有很多基礎工程,水電也要重拉,選擇時特別找有老屋裝修經驗的公司,雖然符合以上條件的公司不少,第一次談圖時就覺得設計師蠻專業、有想法,給我們的空間建議蠻不錯的,提議的空間規劃都滿有道理,像是原始格局中有一塊空間不知要幹嘛、還有傭人房等,他們對於這些空間的運用配置的想法滿切中我們所要,現場也有拿材料給我們看,告訴我們他們對我們家會如何規劃,所以我們只有談了一次就簽設計約,沒有再找其他家了。
三、設計規劃
整體來說,區域配置跟動線規劃是我最最最滿意的地方,真心敬佩我們的設計師啊!
我們一起檢討格局,最後決定房間位置都不變,部分牆面做調整,動線全部重新規劃,同時調整房間的大小,讓每間房至少有4坪,可以放置一個標準雙人床,一個書桌以及一個大衣櫥,但空間不會太壅擠,是一個小孩長大後都適用的房間。
由於原始平面跟新的配置頗有差異,決定來個Before & After。

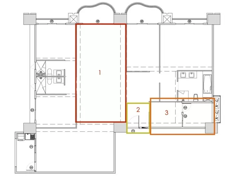
Before X 公區:
1.原本的格局有很多地方我們不知該怎麼用,例如很長的客廳。2.玄關的空間雖然很大,但因為房間門開的位置讓這個空間變得很難規畫與運用。3.玄關旁暗藏一間2.X坪的傭人房與一個放冷氣室外機的小陽台。

After X 公區:新配置的格局以客廳為中心,所有的生活場域都圍繞著客廳,這點非常優秀,我可以知道每個房間、每個小孩進出的狀況,完全貼合媽媽Handle一家的需求。所有動線都往客廳集中,客廳成了各個移動過程中的交集,不論要去哪裡,所有路徑都會經過客廳,這樣的設計讓多口之家很容易產生交集跟互動。
公區之書房、客廳:

把原本很長的客廳分出一塊空間規劃書房與遊戲區,由於我們家的小孩都會在書房寫作業,因此讓書房享有對外窗我覺得很棒,可以讓做作業這件事多一些喘息。
客廳被放在中間,雖然跟一般要把客廳放在窗戶旁的規劃不一樣,但設計師在書房跟餐廳的門片都使用玻璃,讓自然光可以被帶入到客廳甚至是餐廳。
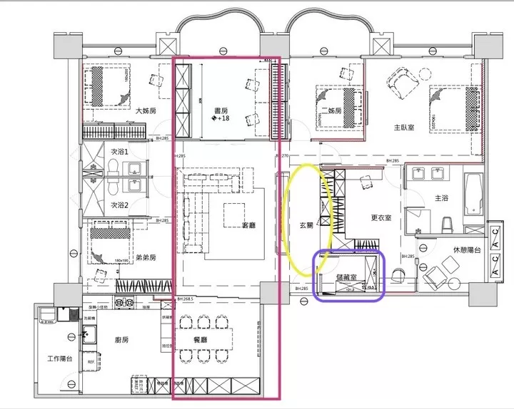
玄關:
同時將原本的傭人房空間重新規劃,一部分給主臥當更衣室,一部分作為儲藏室,在門口旁規劃一間儲藏室,真心覺得好用!多層置物架的設計,讓小小的儲藏室有魔術大空間,收納量驚人,鋁梯、吸塵器、雜物還有不知道要放在哪裡的大型物件都可以收進儲藏室,又一目了然不會找不到。另外還用一座電視矮牆隔出一條走道,這條走道就是我們家的玄關腹地,大小剛剛好。
公區之客廳、餐廳:

書房、客廳、餐廳是我們家很常使用的空間,新的規劃把這三個空間放在同一動線上,即便每個孩子在不同的地方,也都還在同一個大空間裡,這一點我很喜歡。

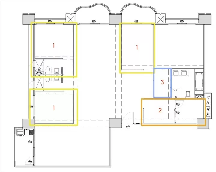
Before X 房間:
1.原本房間有的是長方形、有的正方形,除了主臥還有一間是有廁所的套房。2.客浴門開的位置讓外面的牆面不連續,導致空間使用上很難規畫。3.進入主臥之後,在浴室前有個小空間,這個地方不好使用、當作走廊又很浪費。

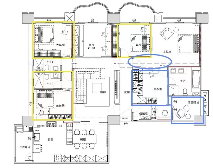
2.二姐房變方正了,同時跟書房、大姐房的牆面切齊,有一道完整的立面不會覺得很多轉角。
3.主臥的調整也是我覺得很棒的地方,放大主臥的尺度,整合公共區域的部分空間與用不到的傭人房,讓主臥的更衣室空間更符合需求。房門位置的調整與增加主臥走道,進入主臥可以有個緩衝,不會一下就看到床。
裝修預算規劃與避坑清單
含Excel模板,限時0元領取
四、裝潢過程
真的很滿意設計師的動線規劃!我們買的是七年成屋,一開始我們希望不要打牆,不要花太多錢在基礎工程,設計師光配置圖就給了我五個版本(我們的設計師怎麼這麼認真啦!)其中有幾個版本是沒有動到牆面,但空間與使用動線上就是會有很多限制,最後我們選的這個版本是牆動最少、空間動線又是滿意的。
再來就是工班的品質、做事的方式。他們對水電的規劃很仔細周到,我們有先設定好要買的電器,部分需要220功率的電壓,因此他們在配電前有特別跟我們核對跟討論;知道我重視收納又個子嬌小,吊櫃提議可做下拉式五金,爐具檯面也特地調整高度配合我的身高,其他檯面則是依先生的身高配置(因為都他與洗碗機在洗碗)。


我們的設計師滿常去現場監工,我們的疑問也很快就得到回應,對工程進度持續跟進、對工地狀況的掌握度很高,例如廚房天花板做得比原本預定的矮,設計師去現場看之後就請師傅拆掉重做。所有工程進度都會上傳到LINE群組,一有問題馬上處理,讓我們很放心,這對有小孩的家庭來說很重要!

印象很深刻的是,有一次工程中我去看看,對我們家的磚牆讚嘆不已,磚頭疊得很直!油漆師傅刷的漆的手工感也讓我敬佩,超滿意我們家的牆,油漆超美的!

▲你們看看~這磚牆是不是疊得超整齊的啦!

▲客廳這道藍色跳色跳得真好~有別於空間其他灰黑色、木頭色,客廳的主角地位完全站得穩穩。

▲藝術塗料的手工塗抹質感我也很喜歡。
我想關鍵在設計師很會要求師傅,用的工班也都是老師傅,底子很深、工很細緻也沒有偷工減料的狀況,找設計師的話,建議要找會要求工班師傅們的設計師。師傅的工滿細緻的,沒有太大瑕疵、像是牆壁有縫、做出來得櫃子不是很平整、材料等級不好很廉價、做出來跟你想像的不一樣等,在裝潢網看過的抱怨文,我們家都沒發生!3D還原度大約90%。

▲餐廳這座櫃子的配色配得絕美,黑灰白搭起來的比例好好看。

五、新家最滿意的地方
1/消滅了很多走廊每個空間都有利用到,提升整間房子的坪效,不浪費坪數。
2/餐廳跟客廳的獨立&連貫關

3/大廚房


餐廳延伸到廚具的收納空間很充足。也替我們規劃了很多料理檯面,在不同情境下可以有不同的使用方式。中島跟餐桌連結的設定,增加廚房跟餐廳的互動,我們在中島有放IH盧,方便熱湯跟煮火鍋,餐桌上不用放湯鍋也好取用。
4/新的生活空間・一家人一樣親密


經過這次裝修,真心建議大家要找設計師,真的會超・省・心!(啊~但前提是要找對人)祝福大家換新家、買新房時,都找到對的設計師替你省時省心~



