想瞭解服務流程
丈量費用多少
想瞭解收費方式、收費節點
裝修預算怎麼抓
設計方案包含家具規劃嗎
該在什麼時候找設計師
設計師會合理控制預算嗎
找設計師前要做什麼準備
有案例平面圖嗎
設計費怎麼收
想瞭解服務流程
丈量費用多少
想瞭解收費方式、收費節點
裝修預算怎麼抓
設計方案包含家具規劃嗎
該在什麼時候找設計師
設計師會合理控制預算嗎
找設計師前要做什麼準備
有案例平面圖嗎
設計費怎麼收
一、前言
是第一次分享我們的新家開箱,認真說起來,這算是我們第二次的裝修經驗。第一間房子是我們自己找木工裝潢,入住後感覺跟舊家感受不一樣,現在家中的空間風格很完整也很一致,是可以被定義風格的空間!一起來開箱我們一家4口20坪的新古典夢幻空間!

完整裝修工具包(清單+話術+模板)已為你準備好!
二、找設計師的過程
要歸功於朋友新家的裝潢,才讓我有機會接觸到現在的設計師。朋友他們家整體的設計感簡約時尚,想像如果住在這麼舒服的屋子裡,是多麼棒的一件事。重點是空間的機能很好,讓我決定跟朋友請同一家設計公司規劃。
三、施工前
空間需求:
A.空間風格以新古典,溫柔的奶油白色調
B.兩個小孩能有各自的床鋪
C.規劃遊戲室和琴房
D.足夠的收納
E.主臥希望有個更衣間

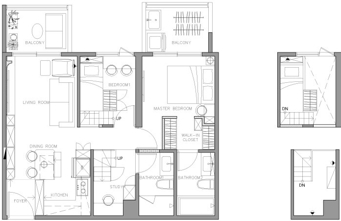
平面圖---BEFORE

平面圖---AFTER





原始照

完整裝修工具包(清單+話術+模板)已為你準備好!
四、施工中

師傅和工班進場前的保護。

更改客浴門的方向,將走道變為主臥室空間。

配置水電管線。

遊戲室(層架)輕鋼架施工。

木作天花板施工。

小孩房油漆。

玄關和廚房的雙面櫃。
五、完工分享



在客餐廳加入較多的新古典元素(大理石和吊燈),將公領域區域呈現優雅的視覺感受。

因為家中有兩個小孩和一隻小狗,考量到要好看又要方便清潔,木紋磚完全防水耐髒的特性,完全不擔心我們家孩子們怎麼活動、玩樂。

常在各地到處旅行,看過無數的高樓美景,現在在自己家的陽台就有這麼美麗的景觀視野,真好~


以客餐廳區域做為一家四口的重點收納,不放過任何可以收納的機會。

設計團隊將廚房使用空間加大,除了利用與玄關之間的雙面櫃,另外再延伸出中島,可以作為備餐、用餐區以及下方的收納,都大大的增加餐廚的使用程度和方便性。


將童話中的浪漫氛圍和新古典元素結合,希望新房間可以滿足女兒們的期待,實現如童話般的夢幻場景,也是家中我最喜歡的造型設計。


淡雅柔美的公主風色調和深色木紋,打造女兒們的小閣樓❤

衣櫃設計也分割成上下層、雙面收納,即使是上層的衣櫃也能正常吊掛,於床鋪下、樓梯中也都滿足對於收納的重要需求。
琴房和遊戲區

移除臥室牆面,改成開放式的夾層設計,分別將上、下兩層規劃成孩子不同的活動空間;上層做為遊戲區,下層為琴房,利用層板的架高設計增加快一倍的使用。


隱藏在樓梯下的儲物空間,我們也將空間完美地利用。

有發現樓梯邊的小圓點嗎?多了一點不一樣的細節,讓再平凡不過的牆面瞬間多了幾分可愛。
六、入住感想
最滿意的部分是設計師幫我們實現20坪完美的居家空間,將一家四口的生活空間完美地規劃;特別是現在有小朋友的遊戲室,將他們的空間劃分出來,其他空間都能保持很整潔的狀態,不會讓玩具散落在各處,對大人和小孩是兩全其美的設計。
和自己找木工施工相比,現在有設計師打理所有的事情,除了空間需求和整體設計外,也減輕很多監工上的時間力氣,施工期間有任何疑問都可以協助我們,如果有機會裝修下一個房子,我應該會選擇想請設計師幫忙,既可以住得舒服也輕鬆許多。








