還在瞎猜風格?動手點點,秒匹配你的裝修風格
一、屋主想要
1.有居家辦公的需求
2.希望有緊密的家庭互動關係
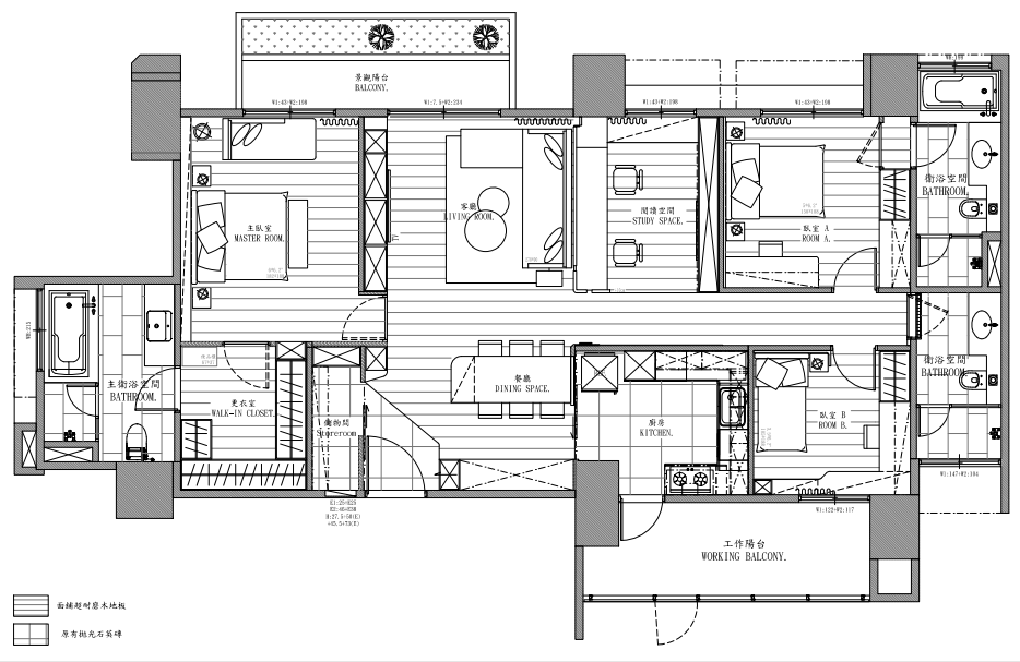
平面圖

Before
「屋主因從事數位教育工作,對家的期待除了要有完整休憩功能,還需有辦公機能。因此我們從複合式的格局與氛圍切入,營造出讓家人自在、舒放,又能專注工作的生活場域。」力彩設計團隊先將客、餐廳與書房設定為核心共用空間,而主臥與二間小孩房則分立在公領域雙側,打造走出房間門就能共聚在客餐區的溫馨格局。
二、格局配置
為凸顯室內優質採光與盎然綠意窗景,在公領域各區除規劃實用櫃體外,並鋪陳以洗白實木皮、白色噴漆與冷調金屬等低彩度建材,讓粲然光影優雅地流瀉於各區,落實了休閒而俐落的現代感居家。另一方面,餐區長型中島桌、書房磁性白板牆與客廳大量收納櫃等,讓這個家不僅滿足親子共讀的互動需求,也可提供業主遠端備課、授課等專屬機能。
三、客廳設計




完整裝修工具包(清單+話術+模板)已為你準備好!
四、玄關&餐廳設計



五、書房設計
六、臥房設計
主臥以白牆搭配淺木色櫃體營造放鬆感,隱藏於床頭側牆的更衣間則運用燈帶照明型塑出舒心氛圍。二間次臥分屬大小兒子所有,透過白牆襯底搭配木書桌與足量牆櫃提供完整機能。







After
「許多居家辦公的屋主會選擇另闢獨立工作間,但屋主十分重視家人互動關係,希望將工作所需的機能放入公領域,因此除了以現代俐落風格凸顯大宅光影與優勢外,教學設備、收納及家的溫馨感都成為設計重點。」力彩設計。










