20坪的家中,一對愛情長跑多年的伴侶與愛貓在此共築新生活,屋主在與宅點設計團隊溝通之初,最大的訴求是希望結合奶白色調,打造與眾不同的居家風格,並且人與貓都能在這個家中感受到舒適自在。
設計團隊藉由「貓洞」延伸圓形、弧線為主軸的設計語彙,佈局於天地壁之間,不僅結合人與貓的需求,也串聯了家中各場域,隨弧線讓燈光自然灑落而下,烘托出猶如雲朵光暈般的視覺,詮釋具有獨特性、柔和視覺的居家空間。

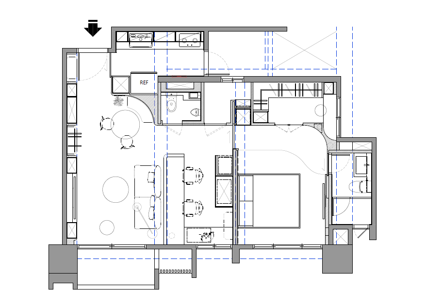
格局規劃
依照兩人的居住空間需求,將三房格局改為主臥室、書房、更衣室的配置,且因應需要大量的收納,也將原有三間衛浴的其中一間改為儲藏室。另外,屋主經常在家下廚,希望廚房配置更符合所需,故將其範圍擴大,提升了整體使用的功能性,而因擴大廚房使得餐廳形成的畸零角落,則透過弧形壁面及圓餐桌的設計巧妙化解,形塑流暢的餐廚動線。


完整裝修工具包(清單+話術+模板)已為你準備好!
玄關設計
弧線劃分出落塵區及室內空間,並刻意在磁磚表面加工不規則狀的孔洞造型,讓裡外視覺更為一致。而為了解決收納需求,由玄關至客廳延伸出一道含有穿鞋椅-鞋櫃-汙衣區-電視牆收納區的多功能牆面,將收納與場域機能合而為一,並藉由相似的線條、造型創造整體感,俐落且實用。






餐廚區設計
由於屋主常下廚,難免擔心油煙四溢,因此為其規劃拉門打造出獨立廚房,並且加大內部範圍,得以置入寬敞的廚具、電器櫃及冰箱,更符合使用需求。而餐廳範圍雖然稍被壓縮產生了畸零空間,不過,藉由弧線延伸銜接牆面及圓餐桌的配置,讓視覺及動線順暢不生硬,且於弧線牆中加入了格柵設計,搭配骨瓷吊燈的線條及燈光氛圍,仿若為家裡添了一道視覺端景。



裝修預算規劃與避坑清單
含Excel模板,限時0元領取
客廳&書房設計
全室以奶白色為主,去除所有繁複的元素,僅留下乾淨的色彩及柔和的弧線,並以米色及灰色的軟裝點綴層次,而天地壁的弧線除了綿延整體空間造型,也修飾了大樑壓迫感,沿弧線嵌入的燈帶創造了溫潤的燈光效果,為空間呈現出悠然、溫潤的意境。
開放式書房因為要置入兩台桌機而加寬了桌面,恰巧也能形成比例平衡的沙發牆,書桌後方則是有著置放貓砂盆、飲水器的貓洞收納櫃,一次滿足了收納機能及貓咪所需機能,一旁增設的臥榻區則是專屬於貓咪的小天地。






臥室設計
臥室延續了公領域的視覺調性,規劃了幾處孔洞放置屋主喇叭、精油等,收納櫃的部分下方仍是屬於貓咪的機能,上方則可收納家電及保險箱。
設計團隊提及,屋主一開始便說明希望貓咪也能和人一起睡覺,因此透過弧形架高平台取代制式的床架,圍塑出休憩範圍,也讓屋主與貓咪更加親密,架高床下嵌入了燈光,不僅輔助夜間照明,也是動線的引導,同時也使架高床視覺上輕盈不少。





更衣室設計




不為人知的細節
「雖然規劃了不少貓咪的機能,但是屋主的生活空間卻一點都沒有被壓縮,重點即是『功能共用』,像是收納櫃、床架、層板……等,都是屬於人貓共好的設計。另外,全室以以相同材質、色調及線條串聯,使每個場域之間都能相呼應,達到整體一致性,也能帶出像是不只20坪的開闊感,這也是讓屋主有感生活空間足夠的關鍵。」-宅點設計







