拍张客圖,AI極速换装,1分鐘出圖
「如果非得生活在都市,何不帶著大自然搬進去?」三序制作總監吳雨璇難忘首次踏入透天宅的驚喜,穿過二樓低矮的餐廳,眼前頓時開闊明亮,映入眼簾的是有大面採光、挑高窗景的客廳,瞬間聯想起去年那趟蘭嶼之旅,參訪當地聖地五孔洞時從入口無法窺見、直達洞穴中央才感受到的高聳震撼,將直覺靈感落實設計,最終成就這幅自然舒心、簡約素樸的侘寂之景。
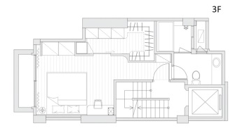
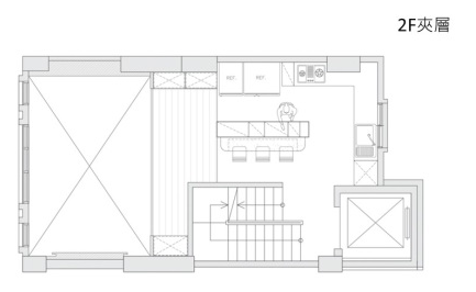
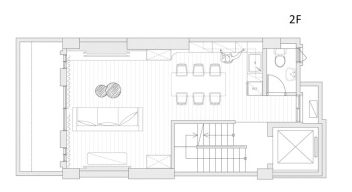
設計重點&平面規劃
客廳挑高坐擁絕佳視野,卻也突顯與餐廳強烈的高低落差,藉由5盞吊燈錯落的垂墜安排,減緩視覺差距產生的不適感,並確保能供應室內足夠照明;夾層作為廚房工作區稍嫌擁擠,在避免壓迫客廳格局的情況下外推,既增加垂直收納空間,也讓夾層區的視線更開闊,而在考慮空間合理性後,將主臥更衣間向走廊外推、加大,滿足女主人的衣物收納需求。




▲設計後平面圖

完整裝修工具包(清單+話術+模板)已為你準備好!
玄關設計
此案位於新竹,平時風沙較大,設計師擔心進出僅靠鐵捲門無法完全阻隔沙塵,便新增一道鋁框玻璃門,搭配牆面跳色設計,清楚分隔出停車場、室內換鞋區。


▲鞋櫃門片選用穿孔材質增加透氣性,轉角則規劃完整污衣櫃及電子衣櫥,讓收納機能充足而完備。
客廳設計
客廳藤編吊燈自然垂掛,除了隱性地銜接區域的高低差,也呼應自然洞穴棚頂的不規則感,前後牆面的燈光線條特意一路延伸至天花,突顯空間本身大器、挑高優勢,並給予室內照明額外補強。


▲木造電視櫃整體設計簡約,象徵蘭嶼洞穴內隨興擺放的當地木工藝品,並巧妙地提供了收納空間,讓線材能整齊收於木紋盒內。

▲沙發、餐桌皆採回字型動線設計,使人們聚會移動時更自在、無阻礙。


餐廳設計
樓梯上至二樓來到主要用餐區,牆面選用手工鏝抹金屬漆,會在不同的光線角度照耀下反射多種樣貌,如同因濕氣熠熠生輝的岩壁紋理,傢俱方面特別揀選藤編、木紋搭配,增加空間中的自然氛圍。

▲黑色餐桌與鐵件層架作為點綴,像是樂團中低音貝斯的角色,為淺色調空間墊上穩重節奏,也讓視覺層次更加豐富。

廚房設計
廚房位於二樓夾層,保留建商設備,並增設中島餐桌,讓夫妻倆平時可以直接在此用餐,經評估決定將整體空間拓寬約95公分,形成回字型通暢動線,料理時不再擁擠。


▲夾層扶手原先選了灰玻,工程後半擔心色調偏重,避免視覺上頭重腳輕,臨時以不規則狀的銀波玻璃取代,反而達到更為通透、自然的效果。
主臥設計
主臥的暖色魚骨拼木地板、奶茶色牆面、弧形元素,營造出溫馨氛圍,也大幅降低空間侷促感,床頭牆面則選用淺灰色藝術漆,左半邊延伸擺放一座固定式梳妝台及深色高櫃,異材質堆疊出層次美。


▲床尾牆面以藍色藝術漆框出端景平台,讓屋主每天起床睜眼就彷彿看見湛藍海景。
更衣間設計
建商原始設定的更衣空間明顯不足,設計師縮減臥室走道,將更衣間外推拓寬,滿足女主人大量衣物、包包等收納需求,也特別替男主人規劃展示型的手錶收納區。此外,更衣間加裝的層板,同樣是在施工期間臨時改色,最終選擇藍色與房內的端景藝術漆相呼應。


裝潢後記
屋主工作忙碌、壓力大,設計師便利用天然材質堆疊,替家營造能好好放鬆、紓壓的氛圍。值得一提的是,夫妻倆平時最大的興趣是整理和打掃,即使完工後隔半年再訪,整個家依然維持地跟完工狀態一模一樣,讓設計師印象超級深刻!








