一、前言
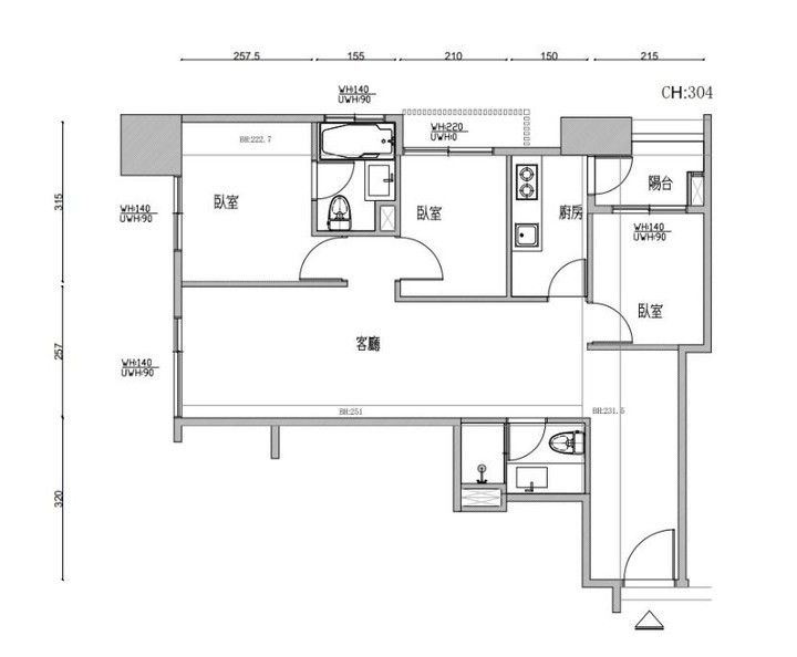
自從訂了預售屋開始,好友們紛紛期待我會如何裝潢新家,終於,趕在今年初夏完成!值得記錄這整個過程~當初在距離父母家步行5-10分鐘的預售案選擇了這戶採光及視野較好的房型,但對於該建案的平面設計圖頗不滿意,除了有佔比高的玄關走廊之外,僅剩不大的坪數隔間三房,爐灶正對後陽台門等不合意;基於決定客變,加上自身工作繁忙,無暇處理與建商溝通的細節,心想,厲害的設計師應當是"空間之魔術師,很幸運地,經律師好友推薦,決定委託專業設計公司來為我打造半百後的私人小天地。家裡成員極簡單,一人一貓,且考量預留家人或閨蜜來訪可留宿的彈性空間。閒暇之餘多數是靜態活動,或偶有三五好友相聚小酌,因此,在有限的坪數中,我希望能把公共區域極大化,兼具休閒、餐敘及必要加班開會時使用;加上喜歡蒐集古物、藝品,自己也繪畫、玩陶藝等,所以收納、展示及空間運用的美感也是設計重點之一。建商平面圖如下:
經過幾次討論後,設計師團隊重新規畫的格局圖如下:


2025最新最全裝修省錢避坑指南免費領!
二、溝通想法與需求
一開始與設計師團隊討論時,即清楚表達我的需求與想法、預計呈現的樣貌及喜好色系等,希望是簡約沉穩的藝術空間融入木質暖色調元素;此外,我特別喜歡陽光灑落屋裡的清新感,可讓空間多一分溫潤且靈動的氛圍。經過充分討論後,決定將廚房改採半開放式,讓整體格局更加方正明亮,視線更為寬廣!這部分真的很感謝設計師團隊專業出手跟建商修正原始格局,最後順利客變。也很感謝他們不厭其煩地與龜毛的我一再地溝通確認,從大項的木地板、廚具、傢俱、燈飾、窗簾、油漆調色等,小到櫃體的五金細節、鏡面、畫軌等,每一項的選擇設計師團隊都很認真參與!
三、最後成品圖
先來看房子整體~
從玄關看客廳
客廳這面正好有橫向的主結構大樑,所以最佳利用規劃就是整面收納及展示櫃體。出乎預期地,完工後的成品感覺真美!設計師說"這很搞剛(台語)"~ 用了系統櫃本體,但櫃子卻是另外由木工客製化手工製作的,除了收納空間充分利用之外,視覺上更加一致;風格方面我喜歡歐式古典但不過度花俏繁複,清潔維持上較無難度,所以設計師團隊在每個抽屜及櫃體門板上都做了簡單的立體線條,優雅且美觀。
最特別的是客衛廁所的門,也用了與櫃子同款造型門片,如此一來可將廁所巧妙地隱藏融入在客廳空間,有趣又不失整體感。

共同入住新家的還有我最愛的女兒阿妞,一隻愛看風景的貓咪,許多佈置規劃是以舒適的貓宅作優先考量;因此,設計師在客聽的窗邊幫我設計一個貓跳台,讓阿妞可以欣賞窗外風景及嬉戲,無論是貓咪的上下動線,或是休憩的層板設計,都很用心。






貓跳台的柱子上很貼心地纏繞了麻繩當貓抓板,設計師也是愛貓之人很懂啊!

關燈之後的採光良好,走廊已先預留玄關桌的位置,並裝上畫軌讓我展示收藏的畫作。
玄關櫃也與客廳櫃體採同一色調風格,鞋櫃下方騰空設計主要是放常穿的外出鞋,透氣亦方便打掃,若干抽屜可放外出用包包、口罩、鑰匙等,牆上隱藏式掛勾可掛出門穿的大外套,檯面則可擺放聚寶盆、水晶等風水物件或小藝品。


廚房得到了夢想的明亮及通透,可環顧整個客餐廳;親友來訪隨時能下廚做幾道菜,還可以邊料理邊聊天,這讓我常常沒事往廚房站一下,想想能煮點什麼或整理一些小植栽…

在吧檯旁的餐桌是我最常使用的空間,桌板的花紋及桌腳樣式很獨特,是設計師特別陪我去挑選的;綴有金色藤蔓的大理石桌板,搭配冰藍跳色的牆面與帶有原木花紋的木地板,既唯美且有質感!開放式的寬敞用餐區與客廳相鄰,冰箱取角落一方,要拿飲料或餐點的動線很流暢;客廳的水晶主燈與餐桌搭配的吊燈、投射燈,也都是與設計師討論後挑選,恰如其分又不沉重的雅緻感,我很喜歡!

在主臥室的設計,我喜歡簡單樸實,設計師將臥室空間去蕪存菁,單純而寧靜,這樣不僅方便清潔與保養,也符合我期望中的睡眠空間。
設計師建議利用餐廳和廚房旁的角落,規劃一處小巧溫馨的孝親房兼客房,有簡易的衣帽架可掛衣服,平常可兼作小型收納。












完整裝修工具包(清單+話術+模板)已為你準備好!
四、總結
很開心能擁有自己專屬的美麗空間,從無到有,開始的忐忑、期待,到現在順利完成,設計師團隊親力親為,各項施工的工班師傅們細心作業,慢慢消除了原本的顧慮,看著他們一步步幫我勾勒出理想中的家,這就是我對他們信任和安心的由來。感謝相識,也感謝打造了一個符合我心中所嚮往的小天地,一個貼近我內心想望的桃花源~希望這份喜悅能夠傳遞給大家!

