想瞭解服務流程
丈量費用多少
想瞭解收費方式、收費節點
裝修預算怎麼抓
設計方案包含家具規劃嗎
該在什麼時候找設計師
設計師會合理控制預算嗎
找設計師前要做什麼準備
有案例平面圖嗎
設計費怎麼收
想瞭解服務流程
丈量費用多少
想瞭解收費方式、收費節點
裝修預算怎麼抓
設計方案包含家具規劃嗎
該在什麼時候找設計師
設計師會合理控制預算嗎
找設計師前要做什麼準備
有案例平面圖嗎
設計費怎麼收
一、前言
家裡有3隻貓咪,每一隻都是我的心肝寶貝。舊家是租的,沒有特別設置貓咪的空間,因此在終於有了自己的家後,找尋設計師的過程中,我多數是以設計過貓咪裝修的設計師為主,在跟設計師初步溝通需求時,也是以貓咪的家要如何設計來跟設計師溝通。
透過自己網路搜尋以及朋友推薦,諮詢了4~5位設計師,多數設計師都能夠很熱情的與我分享貓咪的家如何設計,但夏木鉑的何設計師提供我不同的看法:住在這個家的主人是我,整體的裝修應該要以”人=我 ”為先,貓咪的家以及遊戲間,則會融入在整體的設計中,不要突兀!就像本來就會存在的層板,又能剛好是貓咪的跳台;本來就有的展示櫃,也能是貓咪的遊戲間,如果一來,即便有一天沒有貓咪的陪伴,這些層板與櫃子裝修,也不會觸景傷情,更不會空在那裏很突兀!
在跟何設計師第一次溝通的過程,讓我感受到安心與放心,我認為這是很重要的一點!畢竟是要每天住的家,要選擇一個讓我能夠暢談並且訴說所有需求與細節的設計師,細心與耐心很重要!
2025最新最全裝修省錢避坑指南免費領!
二、裝潢需求
1.主臥想要架高地板,能夠隨時坐、臥、躺
2.非常多的櫃子收納
3.三隻貓咪的活動空間
4.開放中島與餐桌
5.風格喜好白色明亮且溫暖
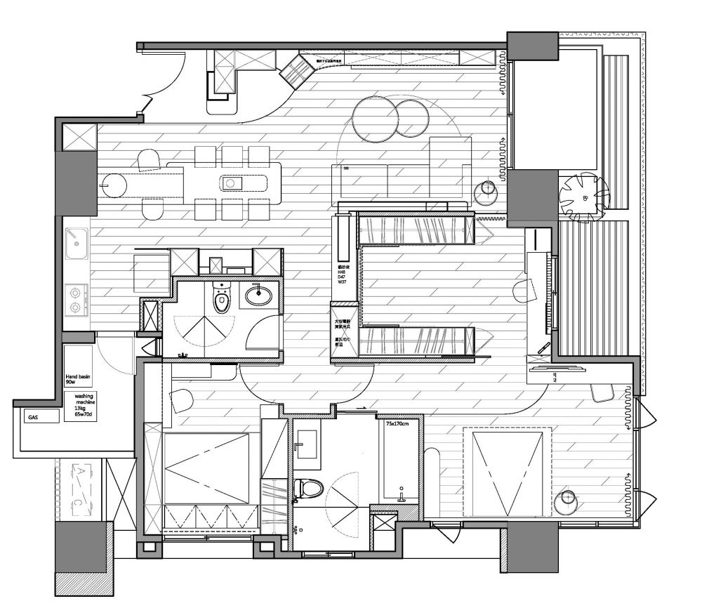
在客變的時候,設計師對於整體隔間包括浴室格局都有下功夫變動。客浴的變動主要是為了挪出冰箱的位置,並創造出中島餐桌與電器櫃備餐檯的機能!主浴的變動則是讓每天都使用的淋浴間改到窗戶旁,除了空間變得更寬敞之外,更重要的是濕氣可以更快的散發掉!靠近客廳的房間,是計畫作為更衣室使用,設計師為了讓室內的光線可以更通透,將靠近窗戶的牆面取消一些,形成一個光廊,讓窗戶的光線可以在客廳-更衣室-主臥都是很明亮的。這些細微的調整,除了體現設計師的用心與細心之外,也需要有與建設公司方溝通協調的能力,很感謝建設公司的配合。
客變前圖
設計後圖


三、裝潢後效果




更衣室的隔間取消一些變成玻璃隔間,客廳的光線都可以灑進更衣室,整個空間都是自然光線很舒服。當主臥的拉門打開,客廳和更衣室的光線也可以通透整個室內。
設計師了解到我非常寵愛我家的貓咪們,且知道我家貓咪們喜歡明亮寬敞的環境,於是將貓咪的遊戲間設置在空間的中心點,並且設計成透明玻璃展示櫃,讓光線可以通透明亮。不管我在餐廳或客廳,甚至在更衣室內,都可以看見牠們。


因為貓咪東西很多很雜,設計師在貓咪櫃的實用細節也不馬虎,規劃有深淺不同的抽屜櫃,還有一個大收納櫃,支援各種不同大小的儲物:貓砂、飼料、小玩具等等,在收納與取用上真的很方便!
設計師說收納要規劃在隨時容易拿取與歸位的地方,而不是翻箱倒櫃的堆積式收納!
待在餐廳時也能看見貓咪~


更衣室跟貓咪櫃用玻璃隔間,讓更衣室的自然光線可以引進室內。

貓咪櫃與更衣室使用透明玻璃隔間,光線能夠照進貓屋,我也能夠隨時看見牠們。



設計師會詢問貓咪的習性,知道貓咪們會從上面跳進貓砂盆,因此設計開洞讓貓咪用跳的進去,能夠深入的詢問生活細節。










躺著看都美的天花板





主臥的橡果燈是我選的,因為我有很多可愛的玩偶,我想要主臥充滿童趣~



完整裝修工具包(清單+話術+模板)已為你準備好!
四、總結
完工入住一年半,因為我很需要收納,所以在收納櫃做好做滿的情況下,一開始完全超出裝潢的預算。但是想到這房子要住一輩子,現在省這個,不把收納做起來,以後麻煩的是自己,還好現在櫃子做很多~裝潢雖然超出預算,但是我不用再另外去買什麼其他收納櫃,以長遠來看,覺得很值得!
而且因為是設計師設計的~收納這麼多,跟家裡的其他設計都可以融合在ㄧ起!還好我沒省這筆錢,不然真怕我後來自己亂買一些櫃子,搞得家裡很醜 ~













