隨手换装,輕鬆感受装修效果
屋主需求:
1.為兩個孩子分別規劃獨立房間。
2.進門後需有可收納運動用品、鞋子與家中雜物的區域。
3.男主人可在家辦公或閱讀的空間。
4.緩解屋內西曬問題嚴重的狀況。
住了十多年的起家厝,隨著兒子陸續出生、成長,家中物品越堆越多,已不知從何整理起,屋主不只一次興起換屋購買大坪數房子的念頭,卻因高房價而作罷。最後下定決心重新整修這間已有二十年屋齡的房子,以爭取更寬裕宜居的生活空間。
除了老屋翻新必要的工程之外,逸喬設計更重新審視了全家人的使用習慣和生活模式,改動公共區域的配置,並以屋主兒子熱愛的足球所具有的截角二十面體結構為發想,打造一面斜切電視牆櫃,同時滿足玄關置物、電器收納等多元機能,解決困擾已久的生活難題。企盼經過此次裝修後,未來二十年仍是一家四口最安心舒適的避風港!
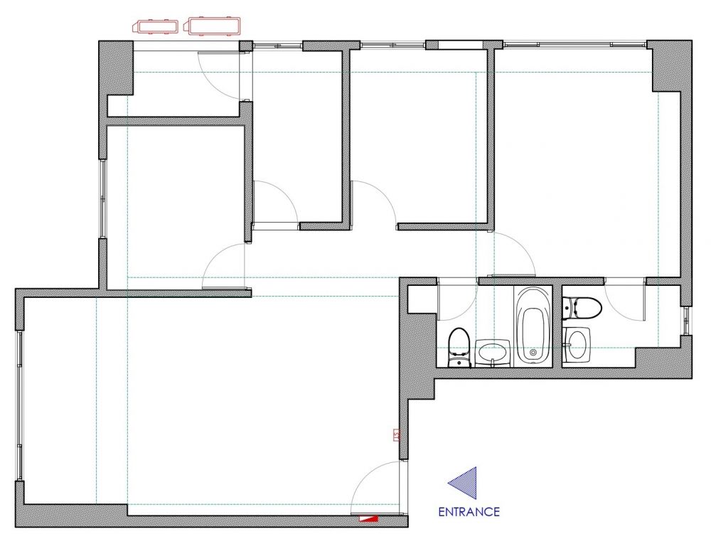
格局配置
本案室內坪數約22坪,維持原有3房格局,唯一更動的牆面是區分兩間衛浴的隔牆。考量家人以往多習慣使用客浴,主浴僅存如廁功用,剩餘空間則又堆放了各式生活備品,無法妥善利用。因此將坪數略做調整,擴大客浴尺度,並把浴缸撤除改為淋浴區。而原本的3房在多年前裝潢時,其中一房規劃成和室兼書房,但同樣已被雜亂物品堆滿,經改造後變為睡房,讓家中兩兄弟可以有自己的休憩天地。
由於一家很少在餐桌用餐,導致舊有餐桌也化成儲物所在,遂於此次裝修將餐廳區域取消,亦順勢顛覆原有客廳坐向,因而得以增加一座大臥榻,兼具充足收納功能與寬敞簡潔的視覺感受。
Before

After


2025 空間設計包免費領!
收納超省空間,小坪數救星!
改造前屋況
由於缺乏適當的收納設計,全家人多年來已養成順手擺放雜物的習慣,經年累月堆置之下,從開門後即隨處可見到各式各樣物品充斥屋內,地板、桌上、檯面……都被填得滿滿。因此這次改造重心,不只在於櫃體的增設,也盡量減少了桌面設計,並根據使用者的生活動線來擴增儲物空間,希望透過設計改變一家人的收納模式。



玄關設計
有別於許多家庭在一進門處設置整排門片式鞋櫃的做法,這邊則是利用開放式衣帽間,搭配層板與吊衣桿,提供收納鞋子的用途,並讓孩子們能擺放並迅速拿取球具和外出衣物;剛採購回家的生活用品,也能順手放置於此,更便利、易於整理。
進入客廳前右側安排一座灰色高櫃,開放層板可放置鑰匙、零錢等隨身小物,也可收整對講機。下方刻意規劃為四格抽屜櫃,讓每位家庭成員都能把自己的物品放在專屬的位置裡。


客廳設計
將原本的客廳往左轉90°後,坐在沙發上的視覺變得更為寬敞。新立的電視牆刷上富有紋理變化的灰藍色特殊漆,不僅能收納視聽娛樂設備,打斜延伸的櫃體也涵括了各式儲物需要。
雖然屋主一家並不需要餐桌,但為了方便孩子偶爾在家用餐或轉換至公共區域寫功課,於踏入臥榻前的牆上設計活動式桌板,平時不用時可朝下摺疊收起,藉此也能減少堆積雜物的可能性。一灰一藍的圓弧造型桌板,可依需要分別獨立使用,下折收於牆面時宛如雙色膠囊般的視覺,使空間多了一份童趣感受。




臥榻設計
在調整廳區格局之後,沙發後方騰出可配置陽光臥榻的空間,運用架高式的設計將收納機能藏於臥榻下方與踏階處。藉著場域裡既有結構柱體展開輕巧的藍色桌面,上方畸零處亦配置了灰色收納櫃,充分發揮坪效。與沙發相鄰的一側,則以一道朦朧的水波紋玻璃隔屏為界,適當劃分區域又不影響穿透感。



廊道櫃體設計
廚房區空間相當有限,廚具與冰箱僅能採一字型規劃,也無擺放廚電的位置。逸喬設計團隊巧妙延伸電視牆至走道,設計出與電視牆和儲物櫃一體成形的電器櫃,不但改善廚房收納困境,也讓原本只有過渡功能的廊道更具實用性。走道另一邊以普魯士藍塗料鋪敘牆面並延展至門片,將房間與廚房入口完美隱藏,也和電視牆的灰藍色調形成深淺有致的視覺層次。


主臥設計
整體配色延續公領域色彩,門外廊道牆面的普魯士藍亦蔓延入內,及至局部天花板,擴展了床頭牆的尺度,也構成極富趣味的畫面。床尾規劃一排以灰色系統櫃鋪陳的衣櫃,顏色亦延伸至主浴門片,維持簡約俐落的空間立面,賦予臥室沉靜的休憩氛圍。



裝修後記
為了化解房子西曬、男主人怕熱的狀況,窗戶選用全遮光風琴簾為室內降溫,可視隱私或隔熱需要調整窗簾布片位置。而空間中運用白色為主調、佐搭冷感藍色系的概念也是源自於此,藉由視覺為使用者帶來相對涼爽舒適的感受。







