「初訪時,業主想將鄰近廚房、尺度偏小的次臥室作為儲藏室彈性使用,但我們想著是不是能有更好的生活提案呢?經過反覆討論後,配置出這個有趣的格局。」長波設計團隊提到,喜愛登山、露營的屋主,需要有能整合各類戶外用品的儲藏空間,並期望有放鬆且閒適的居家氛圍。為此,長波設計團隊依屋主需求及使用習慣重新規劃全室格局,以弧線、磁磚、木材質等元素圍塑出舒適且好用的生活動線,打造帶有延續感又開闊的20坪單身宅邸。
格局規劃
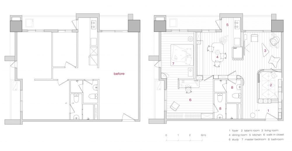
「仔細觀察,可以發現公領域呈現L型的動線,這也是為什麼我們將本案取名叫L House的原因。」長波設計破除原先制式的格局規劃,重整次臥室與廚房牆面,將和室、客廳、餐廳排列成3個3mx3m的方型盒子,構築出L型的公領域動線,使先前客廳3米的視覺深度提升至6米,放大整體空間感,消除原本陰暗的廊道,同時讓公私領域有所分界,提升室內使用面積與坪效。


完整裝修工具包(清單+話術+模板)已為你準備好!
玄關&和室設計
為配合屋主的日常習慣,設計團隊將次臥室移至玄關旁,規劃了架高的榻榻米和室空間,平時能在這歇息放鬆,朋友來訪時也可以作為客房使用。此外,櫃體內部配置了洞洞板,搭配地坪下方的儲物空間,恰好能收整各類登山設備,讓屋主露營前一天能先把用具準備好放置於此,方便出門時順手拿取。


和室空間以拉門、玻璃與木百葉窗作為空間區隔,平日保持敞開能使公領域保持透亮;襯上可調整亮度的三角形燈具,展現出包覆性與寧靜感,打造沉穩的休憩空間。



客廳設計


帶走上百屋主驗證的《裝修最全指南》,簡訊免費發您
餐廚區設計
餐廚區牆面利用整面的木皮材質打造,將客浴、主臥門片與收納櫃體隱藏於其中,使視覺感延伸,展現整體的一致性並滿足收納機能;餐桌一側則配置了懸空的餐邊櫃,上方平台除了能作為備餐使用外,也可以擺放烤箱、氣泡水機等小型廚電,下方的抽屜空間能收整餐具、碗盤,放大整體坪效。



主臥室設計
進到主臥床鋪前,會先經過書房+更衣室的中繼空間,如此的動線安排不僅提升整體的隱私性,也符合屋主起床後先更衣再到衛浴洗漱的生活習慣,配置出順手且好用的生活空間。



不為人知的的設計巧思


「回到根本回到使用方式規劃,根據屋主的生活習慣配置出平面圖,有好的動線才有好的居住品質,就像挑到一件合適的衣服一樣,生活起來才能放鬆舒適。」長波設計團隊_







