風格選到暈?怕裝完不喜歡?30 秒測專屬風格,裝出理想家!
一、購屋緣起
我和先生住在這間公寓已經32年了,那時入住前大伯很熱心為我們搞定裝修的事,像是把陽台外推一部分當成廚房、把原本一間大浴室改為兩間等等。這麼多年下來,原本的新房子逐漸顯出老態,也發生了不少問題,像是:樓上鄰居裝潢時施工有狀況,導致兒子本來的房間漏水、天花板脫落等;家中電路也不堪使用,有次微波爐和電鍋同時運作,結果電鍋整個爆炸、電線還開花!
以前不是沒想過再重新裝修,只是一天過一天,都覺得夠用就好,缺乏改變的強烈動機。但就在電鍋爆炸事件發生後,加上先生也生病了,家裡雜亂難免影響心情,我們想想存了大半輩子的錢,也該拿來讓自己過過好生活、住得舒服一點。於是,便有了這次的大改造。
二、尋找設計公司的過程
因為以前不時都會閃過再裝潢的念頭,所以蠻多年以前我就注意到歐德傢俱,主要是系統櫃吸引了我。這次決定裝修時又想到歐德,就直接到門市看看,那時店內有一組家族客人正在洽談,我就一個人,心想如果這樣坐著不知會不會有人理我……。幾分鐘後,一位設計師過來詢問,過程中我發現她很能傾聽我的想法,態度也非常積極,很快就約好到家裡丈量。因為歐德提出的規劃很理想,我也沒再找其他設計公司,想說交給歐德這種大品牌、又能提供售後服務的公司包辦就好。
三、格局配置與裝修需求
我家室內大約28坪,以現階段只有我和先生兩人住的情況下是很大的。可是因為以前格局配置不佳,造成有些空間根本沒利用到。例如其中一房不夠方正不好用,最後變成存放雜物的地方。另外,房子裡到處稜稜角角的,不但浪費,動線也不佳。原廚房也被外推到後陽台,還有每隔十年就要處理浴缸漏水到樓下的問題,更是一大困擾!
所以我向歐德設計團隊提出了以下的訴求:
- 1.解決廁所漏水,改成像日式一樣的浴廁分離設計。
- 2.前後陽台都要裝鋁門窗和紗窗欄杆,加強隔音和隱私。
- 3.主臥需設有兩張單人床,次臥要架高地板。
- 4.需規劃一間儲藏室。
- 5.喜歡日式簡約風格,顏色維持簡單清爽即可。
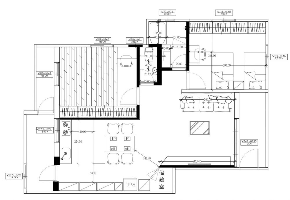
Before平面圖

After平面圖


完整裝修工具包(清單+話術+模板)已為你準備好!
四、改造Before&After對照




以前偶爾也會想改變一下,因為懶得粉刷,於是買了各式各樣的壁紙來貼。餐桌和牆上掛的鏡子都是以前朋友搬家用不到,我們覺得狀態不錯就接收下來的,結果亂七八糟的、整體看起來都不一致。

舊格局在通往廚房的這一區大小很尷尬,後來也變成存放收藏品、書籍和很多電器的地方,有些物品根本也用不到了。拆掉原本的一房、改成開放式廚房後,家裡瞬間變得很開闊。






把客浴和主臥浴室整合,改為廁所和浴室是獨立兩間的衛浴配置,洗手台也外移出來。
五、完工照賞析
玄關
本來我是想只要一張小椅子能坐著穿脫鞋就好,結果竟然是這麼舒服的長椅,下面還有抽屜可以放拖鞋,實在超乎我的想像!來訪的客人光是一進門就對玄關讚不絕口,兒子更建議我可以放個小邊桌坐在這裡喝咖啡、開窗看看外面風景!


客廳
電視牆是到門市現場挑選的石紋系統板材,原本展示品的溝縫是黑色,考慮我們家是白色為底的設計,搭配了白色線條增加變化;加上了兩個開放式壁櫃,可以展示一些有紀念價值的物品或收藏。電視牆尺寸還刻意加長、將牆面打斜,再往內銜接電器櫃。斜角這邊打開就是儲藏室,歐德團隊設計的大小很剛好,讓我可以擺放電風扇等家電,加上造型關係,完全沒有突兀感



餐廚區
長久以來一直在陽台下廚真的很痛苦!因為是古早的泥作檯面,沒有足夠的櫥櫃設計,過去都是買一些小桌子小櫃子來收納,看起來還是很雜亂。另一方面也形成不好的風水,人家不是都說爐灶是財神,結果放在陽台這種懸空的區域,一點都不合適!
現在設計成這樣真是一償宿願了~~是我夢想中的開放式廚房,也有很寬大的中島和餐邊櫃,每一個鍋具、廚電都有屬於自己的位置,取用都很便利。就連我住在豪宅的姊姊都好羨慕,直說她家中島太小,根本沒我家的好用!


主臥
房間設計很單純,簡單半高的床頭板設計可以擺放手機、眼鏡或充電,床組用的是歐德上掀式收納床箱,下方可以存放換季衣物或被單。床尾則是一整排頂天的衣櫃,其中一櫃延伸出我和先生可共用的梳妝台/書桌。更利用牆面鋪上木質洞洞板,東西隨手掛放也不顯亂了。



次臥
雖然歐德團隊很重視我的想法,不過也會適時提出很多專業建議。像是我本來想把這間房的地板架得更高,下方要做儲物設計,但是設計師依據我的使用習慣後,建議不要這樣設計,最後我接受建議,只架高20公分也把範圍做得比較大,兒子一家三口回來時加上軟墊就能睡了。為了幫我實現提升收納量的期待,歐德貼心提出在窗台下方配置一排上掀式矮櫃的做法,如今櫃子確實很夠用。回想起來,幸好當初他們沒有按照我的想法把地板架得那麼高!
床尾同樣有滿滿的衣櫃,局部挖空、搭配吊衣桿做成開放式衣櫃,還有一部分結合透明玻璃櫃,可以擺放飾品或收藏,減少全都是密閉式門片帶來的壓迫感。另一邊也有書桌和洞洞板的設置,該有的功能一樣都不少!



衛浴
原有主臥的衛浴納入客浴空間,變成洗手台、馬桶、濕區(淋浴區和浴缸)相互分開的設計。這次使用的是以組合式工法來完成的「整體衛浴」,這樣一來就不需要歷經敲磚、鋪防水層再重新貼磚的過程,還能徹底解決以往漏水、積水的狀況。



六、後記
剛開始和歐德討論時,我只是約略提出一個大概想法,沒想得太細。但是設計團隊都能幫我們顧慮到細節,仔細詢問我收納的習慣、不厭其煩地溝通,讓每一寸空間都能被實際運用到,使用到目前也都很順手。清清爽爽的空間感和相當實用的機能,包括我、先生和兒子都很滿意,兒子還給出100分的評價。








