一、緣起
房子會找自己的主人,也會幫自己找到對的設計師!
我們的第一間房是位在一樓的老屋,居住快十年,因當初格局關係導致採光和通風都不是很理想,所以有了換屋的想法。條件設定希望是在學區內及至少2房2廳2衛格局、屋齡在2年內的新成屋。先從舊家附近找起,由於那時新建案只有三四個,所以也沒花太多時間,約兩三個月就找到這間預售屋。

完整裝修工具包(清單+話術+模板)已為你準備好!
二、找設計公司的過程
之前的舊房子是媽媽找統包處理的, 這次買房詢問家人裝修該找誰才好,大家一律建議我還是找專業的設計公司比較好。於是我在建商通知要客變時,就透過設計100的手機APP找雙北區域的設計公司,大概找了將近10家,不乏大規模有名氣的,編制小一點的也有。
第一次面談時我都會附上一份簡報檔告知我和老公的生活模式、想要的風格、需求和新房格局等等,可是幾乎所有設計公司都用一套SOP方式在應對,例如「這種坪數、格局的房子應該要如何如何配置」,不然就是會依照我家坪數和預設風格提供他們的作品讓我們看,但其實在找設計公司之前,每家的作品我都看好多次了說~。
找了幾間都這樣蠻沮喪的。後來接觸到璞沃設計,第一次聯絡的感覺很不錯,雖然公司在中壢有點距離,我還是跑了一趟跟設計師Roger碰面。他不但非常仔細看每一張簡報內容、細聽我的敘述,甚至還一一剖析我可能是怎樣的生活型態,當下覺得很像在做心理諮商面談XDDD,一談完覺得:哇!就是他們了!
三、格局配置與設計需求
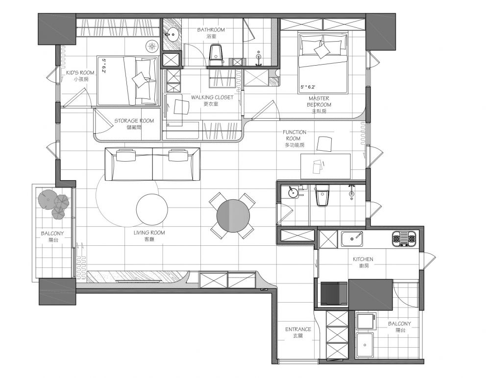
目前新家就我和老公、一隻狗狗,未來打算生一個小孩,所以只要兩個房間再加上一個開放式工作書房就好。可是建商原本規劃了四房,不適合我,且房間不大、公領域也很狹隘。於是我們在一兩年前就先做了客變,改成兩房+一多功能區+一儲藏室的配置。
話說我雖然清楚知道自己想要的,但對格局怎麼配置還是有點舉棋不定,結果Roger二話不說提出四五版平面圖,我就按照這幾張圖面在腦中模擬未來的生活方式和動線,每一款都很喜歡,所以當時光想這些就腦容量爆炸了!後來選了客餐廳最大、最明亮的這一版。
以下是我比較大方向的需求:
1.空間:公領域盡可能寬闊,採光能進到室內。
2.風格:淡雅質樸的單色系,例如特塗,希望回到家心情可以立刻沉安靜下來。
3.隔間:把多功能室留空,不想太早定義這個空間。
4.造型線條:簡單俐落,邊角採圓潤設計。
5.收納:需滿足客餐廳收納量,但櫃體不要太多、太沉重。不喜歡人家到家裡感覺我們把錢花在櫃子上,因此需規劃一間儲藏室來放置狗狗物品、清潔用具、生活備品或使用頻率較低的物品。
Before平面圖

After平面圖

帶走上百屋主驗證的《裝修最全指南》,簡訊免費發您
四、Before&After對照
先來看看改造前後的對比吧!
玄關


客廳


餐廳


五、完工照賞析
玄關
一進門右側壁面有個很深的凹洞,順勢利用這個深度打造出可以收納鞋子和外出用品的玄關櫃。由於牆壁、天花有很多銳利的角面,全部透過圓弧做修飾,視覺變得柔和許多。
儘管是獨立的玄關區,但並不希望有視覺被切割的感覺,所以維持單純用色一路蔓延至室內,從玄關、客浴、公領域、臥室隔間牆到沙發背牆均使用特殊塗料。玄關左側牆面經轉折會銜接到電視牆,也保持一貫的造型和風格,例如深綠色的大理石底檯延伸到客廳,一方面看起來更流暢,也有拉長視覺的效果。


客廳
親友第一次來訪,對於沒什麼櫃子感到很驚訝。其實我在兩三年前已經做過斷捨離,也知道櫃體多容易亂放雜物,而且櫃子一做多就會擠壓到預算,因此我心裡堅守「把錢花在刀口上」的原則,也就是用來貢獻給我喜歡的特殊塗料。
因為沒太多視聽設備,電視牆可以展現清爽乾淨的面貌,只用深綠色大理石搭了一層薄薄的檯面。回想設計師那時提出這個花色時,我乍看覺得好突兀喔!本來希望家裡黑白灰三色就好。後來我說想自己挑喜歡的水磨石,也去八里的食材廠拿了一些樣品回來,約了設計師討論。但樣品小小片,無法確切知道大範圍運用的效果,感謝設計師不但沒有打槍或勸退我,而是耐心地一個個套圖,試了之後發現果然設計師是對的,還是綠色大理石最好看!畢竟電視牆很簡約又大量留白,搭配深色系底檯,視覺比較穩重也有對比的美感。
可以看到公領域同樣有很多畸零、尖角,包括天花、每一處轉角都用了圓形、弧線或環狀美化。沙發旁臨窗處有個建築上的凹角,剛好在受光面,簡單擺張矮櫃安安靜靜地就很有氛圍感,把原本的缺陷轉化成客廳端景。


餐廳
新家廚房偏小,是一字型的配置,只夠擺放流理臺、冰箱和幾樣電器,無法容納其他小型廚電,也沒有可以手沖咖啡和擺放馬克杯的地方。
本來在最初幾版平面圖有配置中島的設計,可以滿足這些需求,我猶豫了很久最後取消,選擇用一張圓型餐桌界定出餐廳,讓行走動線可以更舒服。然後再把需要的機能安排在電視牆那一側,將備餐檯、餐具櫃融合在一起,並加上可彈性開闔的門片,平時不用時把門關起,就很整齊乾淨了。


多功能區
建商原始的規劃是除了客廳落地窗之外,每個有窗戶的位置都隔出一個房間。假如當初把多功能區密閉起來,光擺一張單人床和小衣櫃後就超擠的,開門時可能還會打到人。所以我們最後決定留空,讓這個凹角形成一個既開放又私密的小空間,可以充分感受到公領域的寬敞,也保有它獨特的功能屬性,可以一個人在這裡處理工作、閱讀或放空。


主臥
臥室對我而言主要是睡覺休息,所以只跟Roger提出擺放雙人床和設置更衣室的訴求,但他還多做了類玄關設計,營造就寢前的儀式感。無論配色或造型都延續公領域的元素,再加上間接光源增添溫馨舒適感受。朝向床鋪這面牆預留了一個很精巧的造型置物平台,成為空間中的一抹亮點。


衛浴
衛浴是一覺醒來後會待上比較久的地方,我對這部分規劃蠻在意的。謝謝Roger很用心,客衛雖然小小的但很別緻,也運用了和電視牆底檯一樣的綠色大理石,內(客衛)外(客廳))呼應呢!而主衛有著淡雅的配色和壁龕設計,讓我的夢想落地成真,我覺得整體設計層次比精品飯店更勝一籌~~



六、入住心得
完工後,親友來訪時說「家裡很像藝廊」,是讓我最開心的事!入住至今半年左右,我常常呆坐在公領域,享受被圓弧線條圍繞及特塗呈現的獨特質地氛圍,品嚐著歲月靜好。也很滿意餐櫥櫃的設計,彌補了一字型廚房的遺憾,讓我們得以到現在還能維持手沖咖啡的習慣,用品收納的規劃相當符合日常動線,生活變得更從容了!
最後,再讓我對想要找設計公司的網友們提供一些意見~~~
最好先了解自己的生活型態、收納習慣、裝修風格後,再依預算找設計公司,並將需求、喜好(或是無法接受的)都羅列出來給設計師。另外,因每個人認知的風格定義不太一樣,最好透過具體圖片展示會比較清楚,以便雙方能更順暢的溝通。切勿覺得設計師透過幾次溝通就可腦補且猜想到業主的裝修想法,像是蒐集資料這個步驟等等自己該做的功課,可別省去唷!







