一、購屋緣起
之前我和老婆分別和家人住在一起,當有了結婚成家的計劃後便開始找房,剛開始考慮很多,看到喜歡的,結果頭期款不足;找到價格可以下手的,又覺得坪數太小,而老婆蠻堅持獨門獨戶的透天房型,所以陸續看了三四年左右。
前兩三年因疫情美國大撒幣,台灣房價也跟著飛漲,我們驚覺最早看到只要八百多萬但沒下訂的房子,不過兩年時間竟然已經飆到上千萬,於是趕快從周邊找起。幸好看到這個符合老婆理想、價位能扛起來的建案,加上前有國中後有國小,附近也有便利商店,還算方便。
帶走上百屋主驗證的《裝修最全指南》,簡訊免費發您
二、尋找設計公司的過程
因為有同學本身就在從事室內設計行業,要裝修當然第一個想到他。不過,因為同學公司案子接得多,有總價限制,沒有150萬是不接受委託。於是找了其他設計公司,這才發現大家好像都差不多,預算要抓得比我們預期的還高~~
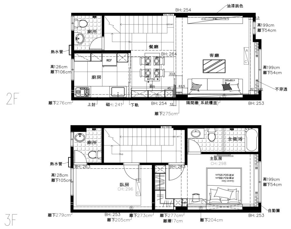
三、格局配置與裝修需求
我家是一棟四層樓、每層約12坪的小透天,一樓是車庫和玄關,上到二樓是客廳和廚房,三四樓則是臥室。格局基本上不太需要變動,比較大的問題是房子的結構樑柱蠻多,包括四周牆面和兩個不同區域間都有,又有樓梯,所以產生較多畸零處,對原本坪數已經不大的空間顯得有點壓迫。
以下是我們跟歐德提出的設計需求:
1.因房型較狹長、棟距窄,導致採光較差,希望採用淺色系配置。
2.好收納方便清潔,不要有間接照明這類會積灰塵的設計,地面能讓掃地機器人順利通過。
3.空間盡可能有效利用。為了讓坪數能有最大發揮,之前還找過國外小空間案例,比方那些可延伸、轉向的變形家具就很吸引我,但和歐德團隊討論過後,才知道這種設計會需要特殊五金,不但預算增加,未來維修可能也是問題,所以決定維持最簡單的方式來做。
4.以實用性為出發,風格簡約俐落,不喜歡顏色多、造型複雜或是鄉村風、工業風的設計。
5.冷氣、插座位置依照原有牆面配置就好,不要打牆敲牆。
Before平面圖

After平面圖


完整裝修工具包(清單+話術+模板)已為你準備好!
四、改造Before&After對照



五、完工照賞析
客廳
公共區域採淺白色調和奶茶色鋪陳,電視牆保留原有樑柱、不使用包覆手法,簡單以油漆跳色處理,意外營造出如同框景般的效果。因為不想敲牆變動對講機的位置,於是歐德巧妙把層板配置在剛好托住對講機的高度上,藉此降低突兀感。電視櫃運用兩層交錯的階梯式設計,讓電視放在上面時和櫃體之間的視覺比例恰當,但又不會過於厚重。
沙發背牆原本也有兩根柱子和一支大樑形成的凹洞,歐德為我們量身訂製深度夠用的整面系統櫃予以美化,局部留空當成置物平台,坐在沙發上一轉頭就能隨手放置遙控器、茶杯、手機,平台下方也規劃了上掀式收納;背板則加入格柵元素、嵌入光源,呈現出具有律動感的光影層次,再搭配優渥設計的經典長方四抽大茶几、多功能邊几等實木家具,讓整個家更顯溫馨雅致。



餐廳
為了避免空調散逸、降低客廳冷房效能,餐廳區安裝布簾做為區隔。不過,因為這一片窗簾尺寸較大,收起來有一定體積,所以在餐邊櫃和沙發背櫃之間預留足夠的縫隙,不使用窗簾時,可完全收進內側。沿牆設置的餐邊櫃挖空處可放置小型電器,變身茶水區或咖啡櫃,一旁整合開放展示櫃並搭配燈光設計,讓我們的收藏和紀念品都能有專屬的陳列空間。


主臥
在不到5坪的房間裡,歐德設計團隊同樣透過系統家具設計,充分運用畸零空間打造豐富的收納機能。床頭牆面以系統櫃包覆,佐以洞洞板修飾靠窗的柱子,梳妝台右邊較大樑柱則藉由櫃體設計隱藏,深度剛好用來擺放老婆的包包。床頭櫃採前掀式收納,平台可放置手機等小物,也有插座可充電;由於梳妝桌的深度較深,銜接處採打斜方式修飾銳角、降低壓迫。
本來貫穿臥室的大樑變成睡眠區和衣櫃區的隱形界線,讓這座轉角衣櫃竟也有著如同更衣間的感受!最靠近房門的位置規劃污衣櫃,可暫時擱置外套或暫時不用清洗的上衣。有別於樓下公共區域的乾淨清新,臥室以溫潤沉穩的木質調展開,使休憩氛圍更靜謐溫馨。



六、後記
完工到現在約半年多時間,我們很喜歡可以一直窩在客廳的感覺。老婆對於可靈活使用的洞洞板感到非常滿意,既可吊掛一些外出小包又有裝飾效果,感謝歐德當時提供外觀漂亮的小木棍讓我們運用。房子整體的設計簡約卻不單調,鄰居來訪時看到沙發背櫃的格柵造型和展示櫃還大力稱讚,一打開櫃體看到五金也說質感很好,讓我們深刻感覺真是一次很好的裝修體驗!











