還在瞎猜風格?動手點點,秒匹配你的裝修風格
新婚夫妻對於成家充滿想像,卻苦惱於12坪大的迷你空間沒有明確的場域界定,委由萊典設計操刀規劃,重新審視客餐廳、廚房及玄關需求,將坪效極致發揮。風格上揉合木質元素、圓弧造型,調配出帶有溫潤氣息的清新奶油質感,從實用機能到美學呈現,方方面面地照顧到屋主的習慣與喜好,讓優雅生活從此展開!
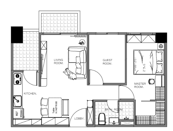
平面規劃重點
評估預算和需求後,格局沒有過多變動,改以各區機能獨立完整為目標細膩微調,展現設計師對空間的細心思考,包括落塵區善用地坪分割、檔板塑造進門端景,餐廚延伸牆面規劃成排收納,作為用餐空間也兼具辦公功能,而採光絕佳的窗邊則保留客廳使用,盡量維持屋高讓休憩區更顯明亮寬闊,完美呈現屋主心中期待。
▲設計後平面圖

玄關設計
進門玄關以跳色木地板圍出落塵區,右手邊設置一座收納高櫃充實機能,並預留角落規劃洞洞板,同時增加一張活動式穿鞋椅,方便隨手吊掛包包、帽子及穿脫鞋子,讓日常使用更具彈性。左側平台利用檔板作為遮擋,避免開門見灶的疑慮,也能隨心情佈置成小端景,靠門的上層收納櫃剛好隱藏變電箱,維持門面美觀。


客廳設計
客廳刻意保持原始天花板高度,節省預算也突顯空間感,並設置軌道燈作為主要照明,能輕鬆調整方向支援各區光線。沙發背牆運用跳色展現圓弧造型,讓視覺更活潑有趣。

▲電視牆局部除了增加收納櫃,安置掃地機器人、機電設備將凌亂感降到最低,也搭配開放層板保持鏤空,讓俐落線條豐富整體造型,呈現簡約美學。




裝修預算規劃與避坑清單
含Excel模板,限時0元領取
餐廳設計
不浪費廚房延伸至玄關的牆面,規劃整排收納櫃,靠廚房的深度較淺用來擺咖啡機、果汁機,餐桌旁則預留足夠深度設置電鍋、微波爐,以橫向延伸充當電器櫃使用,最大化室內坪效。同時為避免視覺單調,分別在工作檯面和門片運用深淺不一的顏色穿插,結合間接燈光做出造型變化,不只使用更順手,也兼具美觀性。

▲屋主喜歡線條元素,避免小空間內增加太多線條造成視覺凌亂,改以吊燈點綴,為用餐環境多添了幾分儀式感。


主臥設計
主臥延續公共區域配色,並加入更多木頭元素,營造溫暖舒眠氛圍,為避免床頭上方橫樑造成睡眠壓迫,改以弧形包覆手法化解,同時將曲線元素重複運用在衣櫃、門片鋪陳律動感,燈光配置方面,除了既有嵌燈也在床頭加入氣氛照明,讓睡夜間閱讀、行走更放心。

更衣室設計
考慮到建商預留的衣櫃空間不大,設計師直接以拉門隔出獨立更衣室,一來是讓拿取衣物的動作更直覺,開門就可以進行更衣,二來是採以吊掛式收納,也大幅省去折衣服的麻煩,按照類型、顏色排列一目了然輕鬆維持整齊。

▲拉門增加線條造型,增加視覺層次感,材質選用小冰柱玻璃,能有效遮擋凌亂、保持透光性。

設計後記
公共空間的安排是屋主最在意的地方,小宅最大的挑戰在於要有充足的收納機能,又希望能減少壓迫感,透過設計師巧妙拿捏比例,盡可能延伸出多種功能,回應居住者需求,成功打造讓夫妻倆能享受歡聚時刻,又能自在擁有專屬的空間。除了總體規劃之外,軟裝搭配也貼心替屋主建議設想,讓視覺風格達到最佳平衡。









