【100室內設計獨家原創影音】
我想要…
1.能療癒心情的休憩空間
2.充足的使用機能
裝修預算規劃與避坑清單
含Excel模板,限時0元領取
Before:
一直想要有個舒適療癒的渡假空間,所以當我看到這間背山面海的屋子,放眼望去就能看到大海,就決定不管屋況多差我都要把這棟老屋買下來。
因為實在太愛前後都充滿大自然的美景,所以希望能把美景保留下來,設計師幫我重新整理牆面及規劃格局,加大開窗大小並增加至四面開窗,然後用玻璃作隔間,模糊了室內外界線,將大量採光及美景引進屋內。色調上以白與木色為基底,設計師讓空間中沒有太過搶眼的設計,呈現質樸純淨的氛圍,也靜靜的襯托與融入大自然的美。

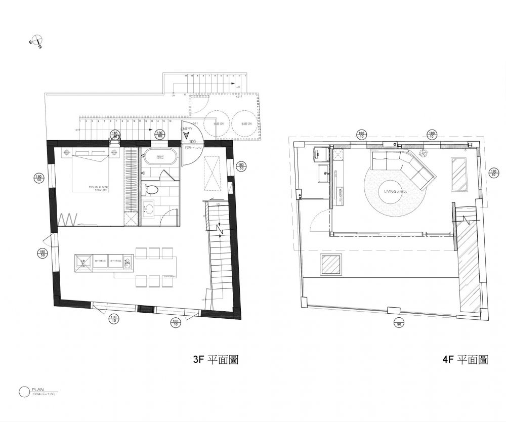
平面規劃上,可以看出此空間是較為方正的格局。一、二樓是我經營的咖啡廳,三樓開始才是私人領域。三樓由上到下分別是臥房、衛浴、餐廚區,樓梯則規畫在最右邊。四樓上方是客廳,下方則是戶外露台,每層樓坪數不大,卻因將戶外景色帶進室內,讓空間沒有了狹窄壓迫的感覺。





3F餐廚區
3樓有一個大中島,是空間的發展主軸,內側為收納櫃,讓我可以收納小雜物,而開了兩個透氣孔的地方是冰箱的位置。水槽上方開了天窗,希望讓垂直的方向也能有自然光灑落,讓我洗餐盤時也能享受陽光的洗禮。為了讓餐桌能保有實用的大小刻意採用交錯的方式與中島相扣,不因中島而影響了餐桌寬度。




完整裝修工具包(清單+話術+模板)已為你準備好!
3F臥房
我的房間就在中島的後方,用玻璃折疊拉門作為彈性隔間,讓我起床也能看到美景,床邊的兩側開窗也讓我能在各個角度觀賞美景,側邊坐了整排收納櫃,提供臥房較大的收納需求,在把手的地方用灰色帶給房間層次感,但仍維持簡單質樸的氛圍。



3F衛浴
樓梯一上來就可以看到完全透明的衛浴空間,主要還是希望保留各處皆可與自然親近的原則,另一方面則是降低一上樓就是隔間的壓迫感,讓空間有放大的感覺。設計師有另外幫我裝上電動捲簾以保必要時的隱私。


樓梯設計
同樣利用玻璃維持樓梯間的通透性,還兼當扶手功能。魚骨樓梯的設計將採光延續到下方樓梯間,讓下方樓梯有了自然採光,錯落的光影也增加了一絲層次感。



4F客廳
以現代簡約北歐風格的感覺去布置起居空間,自由移動的小茶几和單扶手沙發再再都表現出空間的自由性,不受拘束的感覺也呼應了外在的山海景色。

4F露台
設計師留了大空間給露天的陽台,讓我能走出去更進一步親近自然,也將護欄全改用強化玻璃,創造無邊際護欄,讓我更沒有界線的與自然相處。








