居住成員
2大1小
設計公司
元朗設計
設計風格
北歐風
設計總監
張廖萬軒
設計&裝修時長
5個月
案例背景
為了讓全家有更好的生活環境,屋主夫妻入手了這間22坪的中古屋,委託元朗設計做裝修規劃,期望有簡單清爽且好整理的居家環境,並為偶爾會來訪的長輩預留彈性房間。元朗設計團隊以白色為基底,搭配水磨石、線板與弧形元素增添空間細緻度,並在廚房、兒童房設計了局部跳色,為屋主一家打造活潑且自然的居家生活氛圍。
裝修預算規劃與避坑清單
含Excel模板,限時0元領取
屋主需求
1.每日都會下廚,希望有好用且好收納的廚房
2.開闊、有個性且好清潔的空間
3.有獨立書房
裝修前屋況


完整裝修工具包(清單+話術+模板)已為你準備好!
設計方案

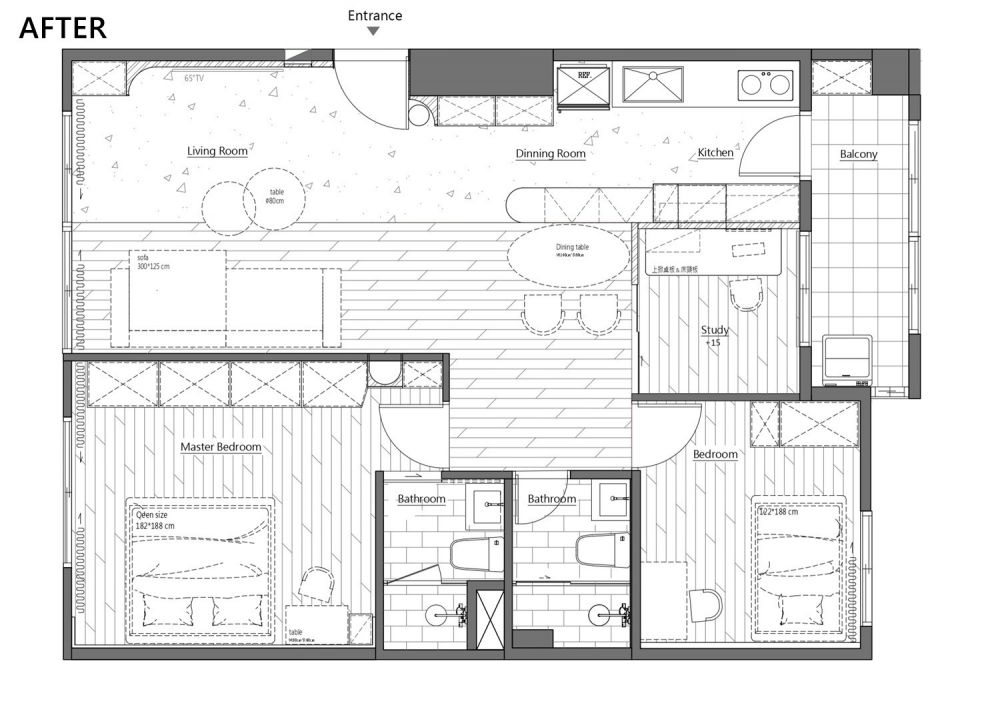
裝修原始平面圖&屋況問題
1.制式隔間過多,壓縮公領域空間
2.廚房位置陰暗狹窄
3.收納不足

平面設計圖優化&亮點
1.以地坪分割區域機能,減少隔牆同時清楚界定區域
2.退縮書房牆面,放大餐廚區空間感
3.簡單清爽且活潑的居家氛圍
空間設計
玄關
本案原始格局無獨立玄關,設計團隊將電視牆與落塵區連結,白色調的設計帶出整體的一致性,另一側則整合樑柱,利用水磨石與馬賽克元素搭配規劃出整面的收納櫃體,透過不同材質的地坪拼接區隔空間機能,創造好清潔且高機能的玄關空間。


▲圓柱式的水磨石設計,方便屋主進出門時放置鑰匙等小型物品。
客廳
為使公領域的視覺看起來清爽簡單,設計團隊以簡約的弧形設計將機電櫃隱藏於電視牆左方,搭配鐵件沖孔板門片,方便散熱的同時也融入整體空間,襯上能根據需求彈性組合使用的多功能沙發,打造開闊舒適的居家氛圍。



餐廳
餐廳區域利用廚房檯面延伸出可收納的卡座餐椅,方便收整常用的生活小物,襯上造型可愛的圓桌、圓形壁燈及墨綠色單椅,圍塑出柔和且活潑的用餐環境。




▲客廳與餐廚區之間恰巧有隻大樑,設計團隊以弧面造型與特殊塗料搭配,弱化樑柱的壓迫感也作為隱形的空間區隔。

▲卡座餐椅旁設計了壁龕式收納,能擺放書籍或展示小物。
廚房
設計團隊調整書房牆面,為喜愛下廚的屋主配置了寬敞的二字型廚房,配以好清理的水磨石檯面、馬賽克長條磚,使下廚後的清理工作更加輕鬆。結合淡藍色櫥櫃門片、圓潤的造型五金及木質層板,打造高顏質的廚房空間,同時滿足展示、收納機能。



多功能房
多功能房房是屋主的辦公、閱讀區,亦可作為長輩來訪時的臨時客房,設計團隊將隔間重新整合,以不做滿的玻璃隔屏、透光不透視的小冰柱玻璃拉門圍塑出多功能的書房空間,提升居家坪效。



▲彈性的多功能房設計,讓屋主能隨需求自由切換空間功能。
主臥室



▲床頭一側設計了可拉出的抽屜,能擺放吹風機等常用居家生活物品。







