想瞭解服務流程
丈量費用多少
想瞭解收費方式、收費節點
裝修預算怎麼抓
設計方案包含家具規劃嗎
該在什麼時候找設計師
設計師會合理控制預算嗎
找設計師前要做什麼準備
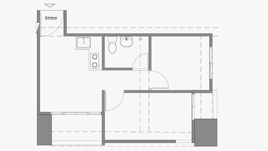
有案例平面圖嗎
設計費怎麼收
想瞭解服務流程
丈量費用多少
想瞭解收費方式、收費節點
裝修預算怎麼抓
設計方案包含家具規劃嗎
該在什麼時候找設計師
設計師會合理控制預算嗎
找設計師前要做什麼準備
有案例平面圖嗎
設計費怎麼收
一、前言
希望可以「有個吧檯可以煮火鍋、烤肉,有個調酒空間,有個看電影空間,有個更衣室,有個泡澡的地方,在床上可以看夜景。」
接觸了於日設計的兩位設計師,了解他們對於設計的觀點,對於屋主的想妄,以設計手法去達成,使空間與人達到和諧。而他們在10坪的空間內,做到了!
無眠的夜晚我找到我的房 :翻遍我的預算能買的房子,我心裡也有個底了;直到有天晚上睡不著,爬起來查時價登錄,突然看到了一間符合我找房條件的物件,當晚就失眠了,因為我已經在想像住在裡面的生活了。高樓層,採光好,有夜景,附近有商圈,交通方便(近捷運)

完整裝修工具包(清單+話術+模板)已為你準備好!
二、找設計師經過
記得當時於日設計剛開業不久,看了他們的作品,和設計師聊了之後,發現他們在設計上對於細節的重視,也不斷在精進施工上的工法,發現到找設計的過程,最重要的是找到和你可以「溝通」的設計師。

裝潢需求如下:
1.空間本身不大,在高壓的工作下,下班後就想在家裡放鬆,以"娛樂"與"休憩"為出發點。
2.保留大陽台看景,能夠很好的跟外面景互動。
3.浴室要有浴缸,泡澡時有電影看。
4.可以簡單的料理,調酒。
5.看電影一定要夠大的螢幕夠有氣氛。

因為是老屋翻新,部分格局做了一些變動,使之更符合屋主的使用。
1.吧檯結合備餐檯面及用餐區,就可以邊煮火鍋,邊用餐。(坪效的運用)
(2)酒吧模式 : 使用氛圍燈做出漸層燈光,使空間更迷幻。(3)電影模式 : 空間用了幾組RGB燈帶帶出氣氛融合電影,擴大電影的光場域。
4.大膽用色 : 紅黃藍強烈的顏色作為主要視覺對應著空間的三種元素 :
(1)紅 : 電器
(2)黃 : 軟裝家飾
(3)藍 : 裝修系統櫃
5.浴缸旁開觀景窗,使浴室不會過於封閉,也能在泡澡時能看電影。
6.移動了原房間門,使空間可以擺進雙人床,同時也讓門迴旋空間在過道,節省無用空間。(坪效的運用)
7.更改衛浴設備位置,放入浴缸。
8.客廳四開窗變兩開落地窗,讓外景更好的進入室內。
9.天花板平釘脫縫,除了讓天花板看起來輕盈,還能避免因地震而有可能邊緣裂的問題。
10.玄關 : 使用自平泥作為落塵區,一開門就見戶外的大景,非常通透。
11.客餐廚 : 在三坪左右的空間擺進了這些機能,讓彼此間共存(廚具、冰箱、吧檯、餐桌、沙發、電視櫃)
13.房間 : 睡覺及看電影、夜景為主要訴求
三、施工過程








裝修預算規劃與避坑清單
含Excel模板,限時0元領取
四、裝潢後效果
這個空間裡,時間與四季是重要的,在各種時刻就會有相應的型態,而不是單一的型態。

玄關 : 進門就能看到高樓層的美景,陽光、藍天、綠植

客餐廚 : 因空間有限,結合了兩個空間,同時也可以延伸兩個空間。

更衣室 : 透過燈具使空間更有層次。

寢室 : 簡單的寢室使睡覺與放鬆結合在一起。


廊道 : 開啟門就像開啟了密室。



















五、裝潢後記&分享
每天早上起床,走到客廳看到整面的落地窗透著外面的景色,感覺又是個美好的一天。設計師賦予了空間一個新的定義,一種新的可能,設計師會傾聽你對於未來的想像,或是他會跟你說未來的可能,並且還有實現的能力。
最終的成果非常的滿意,特別寫這篇文章分享,感謝設計師用心與專業,讓我有一個這麼棒的家。工程過程設計師都會跟我報告,並且幫我處理好,讓我非常安心,還有一點,設計師常常在做的過程,中間還會幫我優化,例如,後陽台增加一組給水,方便澆花,他說我住的舒適比較重要,於是就送給我了!







