一、購屋緣起
我從事中醫至今開業已有6年多時間,這次想轉換一個新的環境,主要是過去舊診所候診的地方比較窄小,人一多就會感覺壓迫不舒服。空間擁擠容易使人心浮動、急躁,我覺得這會影響醫療品質,所以想找坪數大一點的物件。
新診所的地點周邊相對單純,前面馬路有一整排的路邊停車格,病患看診時就不用急急忙忙或擔心找不到停車位。而且因為是透天房型,有兩層樓的空間可以好好利用。

完整裝修工具包(清單+話術+模板)已為你準備好!
二、尋找設計公司的過程
在網路搜尋過程裡,看到成立設計有一個日式風格的牙科診所裝潢很不錯,於是就找他們聊一聊。當面洽詢時,設計師把規劃流程、什麼階段會做到什麼程度、每個項目的計價方式,都用白紙黑字非常仔細的解釋清楚。嚴謹專業的態度讓我很放心,因此也沒再去找其他家比價。
三、格局配置與裝修需求
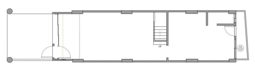
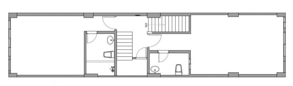
這裡是在連棟住宅裡的某一棟,原本是作住家使用,是台灣傳統很常見、只有前後有採光的狹長式格局。一來是因為屋齡已經有二十年左右,二來由於內部裝潢不是我們喜歡的樣子,完全不符合心目中期待的日系風格,幾乎是整棟全部翻新,但建築本體像是樓梯之類並沒有做太大變動。
唯一有拆除的是二樓一間套房裡的衛浴,因為每個樓層計劃設置一間化妝室就足夠了。拆掉這間多餘的浴室之後,在原有位置隔出一間坪數較小,但已經夠我們使用的備品室,這樣一來走道的寬度也會比較舒服。
以下是我們向設計師提出的需求:
1.喜歡簡單乾淨的日式風格,造型、用色盡量單純。
2.不做資訊廣告看板,不希望有太多視覺干擾。
3.須規劃三間各自獨立的診間+候診室,並保持寬敞明亮,讓患者能在放鬆的心情下等待就診,醫師和助理工作時也能感覺舒適。
Before平面圖
1樓

2樓

After 3D空間配置圖
1樓
2樓


裝修預算規劃與避坑清單
含Excel模板,限時0元領取
四、改造Before&After對照




二樓套房裡的衛浴取消,調整為診所比較需要的備品室,走道也變得比較寬。


五、完工照賞析
1F
整體空間沒有做太多裝飾和造型,以純白和原木色調為主,搭配少許如水磨石和樂土這一類質樸的材料,用空間來傳達一種簡約純粹的氣氛。希望病人進來之後可以沉澱思緒,用平靜的心準備接下來與醫師之間的對談。
圓弧形的掛號櫃檯樣式簡單大器,為了讓看診流程更順暢、提高效率,有跟設計師提到要能同時擺放兩台電腦,目前的大小確實讓人員操作變得更方便了!櫃檯一旁規劃通透的玻璃層架,可擺放漢方保健食品,陳列方式一目瞭然,當患者有疑問時,診所助理或藥師就能很迅速地回應。櫃檯後方的木隔間,則是調劑藥所的所在地,可容量二至三位藥劑師進行調劑作業。




調劑藥所為3D效果示意圖2F
雖然我們是採預約看診制,一般而言每個時段的人數並不至於太多,但透過不同診間各有獨立候診區的設計,可以做到動線分流這件事,而每一位病患等候時彼此之間也能保持最舒適的距離。因此便順著原始的樓梯位置,區隔出第二和第三診療室,以及它們所屬的候診區域。
延續一樓走廊牆面的設計,二樓也都貼上了和腰部等高的木質壁板,一來能引導視線和動線,二來可以跳脫全白牆給人較單調且冰冷的印象。為了改善第二候診區的採光,隔間牆上方加開孔洞、鑲嵌玻璃,形成一道室內窗,搭配弧形的木格柵飾板、座椅和天花板造型,讓視覺更加柔和溫暖。




化妝間
兩間化妝室同樣也使用單純的配色和材料來規劃,儘管沿用的還是淺色木紋和水磨石元素,但運用的地方和比例都和外部空間不同,風格一致當中又帶著些許變化。



六、後記
一個乾淨明亮、有空間感、能讓人靜心的看診場所,是我最期盼的樣貌,很滿意成立設計能一一協助完成!裝修完成後,不管是來參觀的朋友或是就診的患者,每個人第一句話都是「哇~」做為開頭,臉上一副驚豔的表情。
換到這個新空間之後,所有人從診所一樓大門進來都要改穿室內拖,所以可以看到一些患者大人或一起前來的小朋友會很自然而然席地而坐。襯著我們播放的輕音樂,一邊看書等待,會有一種在圖書館或咖啡廳的錯覺,而這就是我們想營造的放鬆氣氛!











