拍张客圖,AI極速换装,1分鐘出圖
想瞭解服務流程
丈量費用多少
想瞭解收費方式、收費節點
裝修預算怎麼抓
設計方案包含家具規劃嗎
該在什麼時候找設計師
設計師會合理控制預算嗎
找設計師前要做什麼準備
有案例平面圖嗎
設計費怎麼收
想瞭解服務流程
丈量費用多少
想瞭解收費方式、收費節點
裝修預算怎麼抓
設計方案包含家具規劃嗎
該在什麼時候找設計師
設計師會合理控制預算嗎
找設計師前要做什麼準備
有案例平面圖嗎
設計費怎麼收
一、前言與原屋況
起先是因為家裡冷氣故障(整個社區大樓是安裝水冷式中央空調),如果要修理,就得要把原先的裝潢拆除,想想反正房子都這麼舊了,乾脆就找專業的設計師來幫忙規劃裝修吧!

完整裝修工具包(清單+話術+模板)已為你準備好!
二、原屋況與找設計師的過程
原屋況:
上一次裝修這個家是20幾年前的事了,抱著一個要讓家改頭換面、變得很現代的心情找尋心目中那個對的設計師,後來找到了低調制研,設計師給人一種很令人放心又專業的感覺,解說也清晰明瞭,天時地利人和之下就決定請他們來規劃。



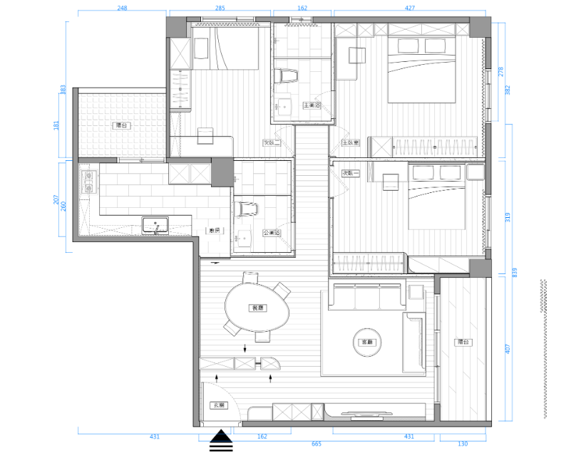
三、平面圖與設計需求
Before

After

格局沒變動,主要想加強硬體的品質:
1.冷氣:換成1對多的吊隱式冷氣。
2.隔音:以前輕隔間隔音不好,所以把所有隔間都拆除,並重新砌石膏磚牆,地板隔音也加強。
3.廚具:廚電設備都換成BOSCH。
4.收納:櫃子要做得夠,但不要太多太壓迫,家裡開闊還是很重要的。
風格的部分,我們只和設計師提出要現代、簡約風,但也要兼顧設計感,就是這麼抽象的一個方向~好在靠設計師引導,雙方多次討論才把各種元素具象化,也提供了3D圖讓我們比較容易想像畫面(基本上和完工的樣子有9成相似),大致上是以黑白灰色、運用線條還有不同質感做出層次變化,下面再來一一介紹。


▲設計師提供的3D圖。



四、完工美圖分享
玄關
雖然沒有儲藏室,我們家收納量卻非常足夠,像是一進門右邊的直線板櫃能放備品雜物,左邊還有規劃落地全身鏡,甚至剛好能反射到客廳窗外的綠景,一次滿足收納與空間感。
而面向玄關也規劃一座大弧形櫃,因為有線板、塗料、中間鏤空的變化,所以看起來不會只是個很笨重的櫃體,這邊收納量也很夠,鞋櫃、展示櫃、汙衣櫃一應俱全,我很喜歡打燈後整個櫃子呈現的俐落感,鏤空部分也有穿透效果,至少一進門不會就只是看到一堵牆的感覺。













餐廳
玄關櫃是雙面設計,靠餐廳的那一面也有收納空間,主要放餐廚空間會用到的物品居多,而且櫃子是灰玻門片,不會看起來太赤裸,這邊也會放一些我的酒藏,一擺上特別高級有質感!

無論是玄關櫃弧形收邊之處還是廚房隔間,設計師都做了紅銅色的金屬飾條,這顏色雖然不常見,但正是我們家與他人不同的設計靈魂之所在!雖然只是很簡單的線條,卻瞬間有了層次,牆面用了灰色塗料及線板、廚房拉門也拉了簡單弧線,整體上有很不錯的呼應及變化效果。

廚房
廚房也是走黑白灰路線,平常家裡都會開伙,當時我又對BOSCH這品牌很有好感,就覺得不如把設備都換一換,所以嵌入式的烤箱、微波爐……等等都是BOSCH,事後證明……當時有點衝動,因為燒掉不少預算,實際又沒什麼用到,而且又占空間,甚至因此取消設計師原本幫我們規劃的電器櫃,真的有後悔到……



客廳
直線板櫃旁邊規劃了一道綠色展示櫃,本來是有點擔心這麼跳的顏色會不會有點奇怪,不過設計師說既然我們家有難得的綠景,用綠色調來搭配會加分不少,而且用弧面包過來電視這邊,還有搭配塗料、紅銅飾線,的確是如設計師所說的這樣,看起來有亮點卻又挺和諧!

我們家雖然整體上是白色為主,但是設計師發揮了創意,用白色系的塗料、線板、木紋、鋼烤讓白色也可以變化得很多元,很符合我們當初和設計師提到要簡約又要有設計感的要求。

天花板的線條乍看是裝飾,其實隱藏著吊隱式冷氣的維修孔,這樣不怕冷氣哪一天壞掉沒得休,也不會明顯看出維修孔在哪裡。

設計師為了不要讓窗外的綠景被窗框阻擋到,特別把四片落地窗改成了三片,還記得那時窗太大片電梯進不去,最後是用吊的上來,而且我們家在8樓,工程很浩大,不過裝上去後,搭配陽台土紅色塗料,和裡面的紅銅也很呼應,內外就像合而為一,有這樣的效果真心滿意。

主臥室
比起公領域,臥室的木質元素比較多,整體看起來比較溫暖,但和公領域一樣的塗料、線板、弧形也都有,像是我們床頭直線板的地方都是收納櫃,而且因為這裡本來有柱子,用這樣的方式修掉一舉兩得。

樓高還算高,設計師做了弧面包住大樑,並且嵌入線燈,很柔和的氛圍。





衣櫃的門把是皮製的,皮件因為會隨時間有不同的色澤變化,所以現在每一個顏色都不太一樣,很喜歡這樣的自然感。





女兒房
女兒房的木質元素更多一點,整間更溫馨,設計師在書桌上規劃了一個玻璃屏風,是紅銅色搭配長虹玻璃,挺有質感,加了這個感覺好像會比較有隱私一點,適合青春期中的女兒~



衣櫃不做最滿,留點空間讓女兒自己決定要放什麼。

客房
客房配置簡單,一個衣櫃、一張書桌、一張單人床和一些收納空間,有客人來住完全沒問題,平時就當多功能室使用,女兒會在這讀書、畫畫、練小提琴之類的。





衛浴
衛浴的磁磚雖然也是黑白灰路線,但是圖案走小清新風,還挺耐看的,洗澡心情會變好!

五、後記
設計師是非常細心而且有耐心的人,要不是有他的引導以及不辭辛勞的跟我們討論數回,我們可能到現在還不清楚自己的想法吧!而完工後,達到我們想要的簡約兼設計感只是基本,還多幫我們顧了好多細節,像是選用方便清潔的材質,家電位置也都規劃很剛好、動線非常順……感受得到他是真心希望我們在這個家能住的長久舒適,整體上已經遠超過我們所期待的,現在整天都只想窩在家不想出門了!







