【案例背景】
屋主介紹
本案為一家四口的30坪居宅,夫妻皆為航空業,且有兩個學齡前的孩子,因此更注重家中收納,像是玩具及用具、工作會使用到的行李箱、在各國收藏的照片及紀念小物……等都需要妥善梳理規劃適合的收納形式,設計團隊除了將物品集中收整、爭取最大收納量,在有限空間中利用角落及牆面的餘裕,添入更多收納的可能,並以簡鍊的色彩為基底,添入些許線條變化及照明層次,營造耐看、舒適的居家氛圍。
屋主需求
1.充足的收納空間
2.餐廳結合調酒吧台
3.中性色調的輕美式現代風格
4.開闊感空間
5.更衣室及儲藏室
帶走上百屋主驗證的《裝修最全指南》,簡訊免費發您
【設計方案】
Before

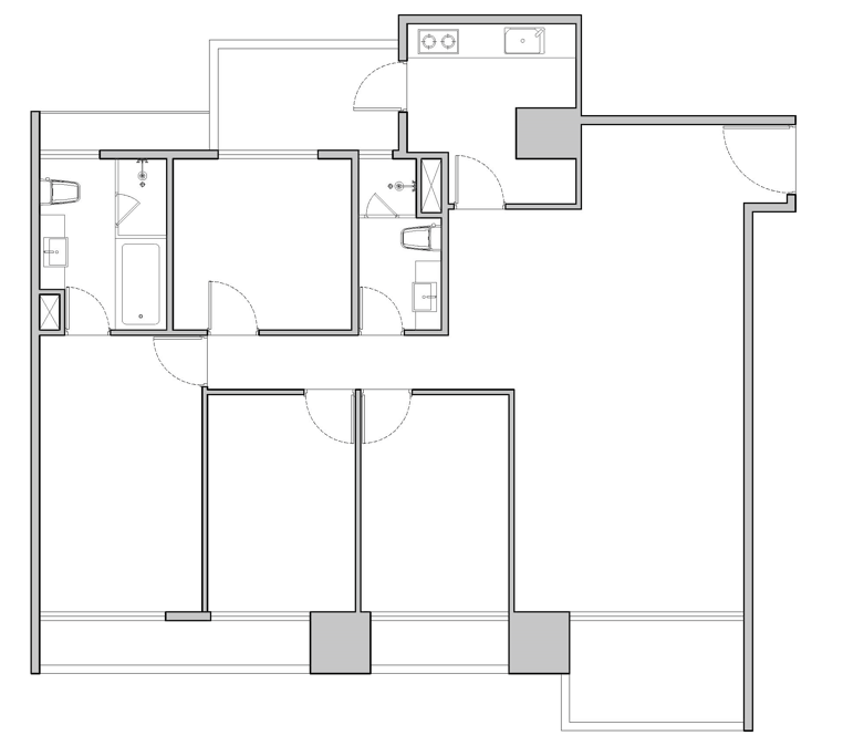
原始問題
●格局配置不符合需求
●場域結構較為零散
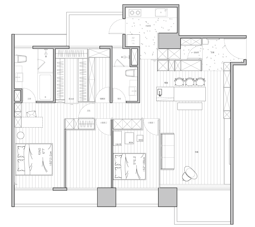
After

設計調整
●落塵區動線加寬、加深,滿足寬敞動線及收納量
●餐廳結合調酒吧台,使用動線順暢
●次臥室區分為更衣室及儲藏室
●主臥門片改位置,使主臥內部功能更加完整
●廊道距離縮短並置入收納空間,放大動線視覺及實用性
●小孩房隔間局部改為玻璃,釋出公領域空間感及提升明亮度
【空間設計】
玄關&餐廳
入門玄關及餐廳設定為黑灰深色系,除了與室內較為明亮的色調及溫潤的木質調主體形成對比,創造沉穩的公領域景深,一方面則是因為屋主平時會在家小酌,餐廳區也結合了調酒吧台之緣故,深色更能烘托宛如小酒館的意象,側牆霓虹燈飾則為屋主結婚時的紀念小物,除了別具意義,也有為整體氛圍畫龍點睛的效果。

由於房子所在為潮濕的林口區,因此室內加裝全熱交換機、全室吊隱式冷氣及除濕機,將量體較大的主機集中藏在同一區的天花,並以弧線及木皮修飾低天花且延伸至立面,藉此除了一併讓客廳顯得更為挑高,導弧的立面也能防範孩子撞到受傷,提升了安全性。

客廳


採用人字拼木地板除了增添視覺溫度,搭配訂製的百葉窗也符合了女主人對於輕美式風格的嚮往。

#百葉窗 #塗料 #灰玻 #烤漆 #輕美式
廊道
於廊道置入櫃體,因為深度夠深,能夠收納大量的玩具,也讓孩子從小養成自己收納的習慣,而較高處則可置放屋主夫妻到各國工作及旅行帶回來的紀念擺飾及照片,讓廊道不只是行走經過之處,更有實用意義。

#收納櫃
臥室
低天花由廊道延伸至主臥室,收納櫃及層板則與天花軸線切齊,讓床區保持開闊,運用深奶茶色系,臥室調性更為沉穩舒適。

男主人的工作時間較不一定,白天也可能是睡眠時間,為了能夠在睡眠期間可以保持房內全暗,窗簾除了安裝遮光布,設計團隊刻意從床頭往窗的方向收以弧面,以改善窗簾邊角漏光的情形。

#奶茶色 #弧線 #吊燈
更衣室
有別於常見更衣室大量的收納櫃體,以五金及層板組合的方式打造,若之後想更換還可整組拆卸,彈性更高,最下方可調整高低,讓孩子能夠吊掛自己的衣服。


完整裝修工具包(清單+話術+模板)已為你準備好!



