拍张客圖,AI極速换装,1分鐘出圖
【案例背景】
30出頭歲、擔任工程師的屋主,購入這間距離工作地點與高速公路較近,且鄰近文化中心、大型購物商場的新成屋,作為展開新婚生活的起點。在朋友的介紹下委託若河設計規劃,以清淺、和諧的配色打底,化繁為簡並結合線性照明設計,賦予小宅寬裕舒適的空間感。
屋主需求:
原始建商配置為標準3房2廳2衛的格局,由於屋主成員單純,除主臥外僅需再預留一房,因此依需求拆除一房,擴大公共廳區腹地。
1. 喜歡簡單清爽的風格,希望空間更寬廣。
2. 平日有品酒習慣,需有可陳列的展示櫃。
3. 廚房入口改為通透的門片。
4. 主臥需納入有收納功能的梳妝桌,但不宜佔據太多空間。
5. 不需規劃過多櫃體,能滿足各區基本收納機能即可。
裝修預算規劃與避坑清單
含Excel模板,限時0元領取
【設計方案】
Before

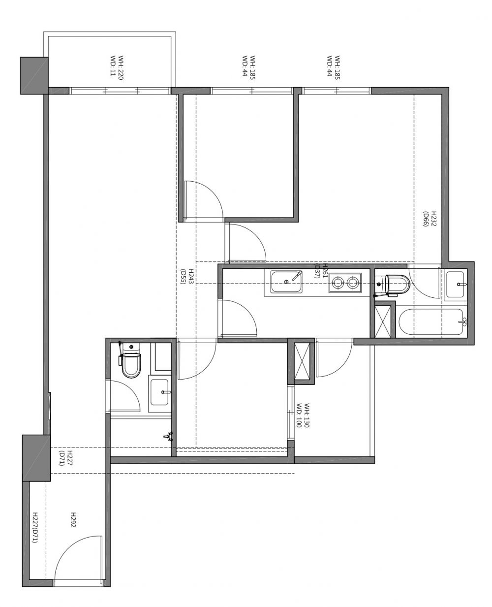
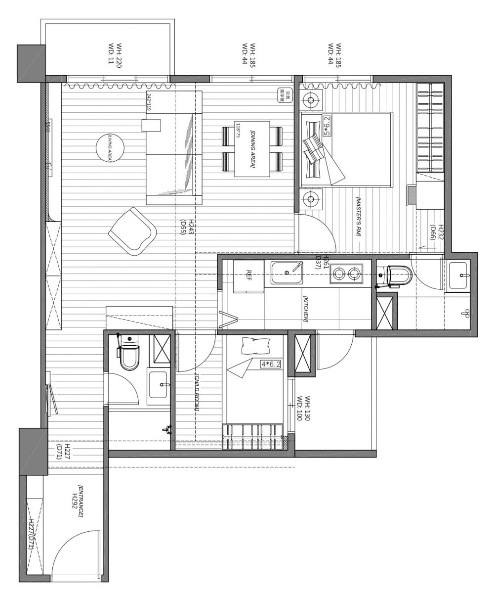
裝修原始平面圖&屋況問題:
- 1. 公共區域較狹窄,餐廳無論安排在任何位置都會讓動線變得迂迴。2. 建商附贈的主浴門片是朝內打開的形式,開門時會影響到洗手台的使用。
After

平面設計圖優化&亮點:
- 1.拆除靠近客廳的一房,提升公領域空間感、引入自然採光,同時也能有獨立的用餐區。2.把主浴的傳統側開門改為推拉門,改善門需關上才能使用洗臉盆的問題。
【空間設計】
玄關
地面維持建商原已鋪設的拋光石英磚,與銜接室內木地板形成高低差,界定出落塵區。由於通往室內的走廊偏狹長,盡量不多做其他櫃體,只於大門左側凹處規劃一座懸空鞋櫃,並結合置物平台、穿鞋椅、吊衣桿等元素,提供進出家門擺放收整物品的用途。為隱去電箱的存在感,以一扇木作門片貼灰鏡的手法修飾,並加入燈光設計營造漂浮感;亦藉由灰鏡的反射特性,兼具打理儀容與放大空間的效果。

#灰鏡

#穿鞋椅 #鐵件烤漆造型吊衣桿
客廳
自電箱位置至落地窗的公領域牆面,運用帶有清水混凝土質感的特殊漆鋪陳,再新增一面由木工施作的純白電視牆收納櫃,且導入弧線設計,延展電視牆尺度之餘,也能在簡約的空間輪廓中增添層次美感。

▲與電視牆連袂規劃的櫃體,既可儲放吸塵器、掃地機器人及各式生活備品,也有開放層板可展示屋主的藏酒。


#圓弧設計
▲弱化低矮大樑結構的同時,避免過多包覆更增壓迫感,遂於天花板揉入圓弧設計、嵌入燈帶,柔化樑線。
餐廚區
因原始廚房空間為較小的一字型格局,另於公領域短牆新闢一座腰櫃,可擺放烤箱、微波爐、電鍋、咖啡機、氣泡水機等家電;上方改以純白吊櫃及層板增加收納,亦可減少櫃體的厚重感。選用長虹玻璃折疊門取代傳統門片,透光之中又帶著朦朧感,門扇收起亦不佔空間,動線更順暢!
沙發後方一房打開後,爭取到一處多功能場域,可用餐也當作工作書房。同樣捨棄多餘裝飾語彙,簡單以淺灰色牆漆揮灑,與餐邊櫃背牆相呼應,暗示兩區的功能性,也能和電視牆的特殊漆呈現和諧調性。


主臥
延續公共廳區簡潔俐落的風格,床頭與床尾牆面則繪上女主人喜愛的暖調奶茶色,醞釀寧靜閒適的休憩氛圍。因應屋主挑選的床架樣式,衛浴推拉門與梳妝台桌面特別搭配深木色,創造空間的一致視覺感。騰出局部衣櫃空間,於側邊打造化妝時需要的收納功能,門片亦結合照明設計,開啟時即會自動亮燈,能無死角照射臉部,方便化妝。


#推拉門








