想瞭解服務流程
丈量費用多少
想瞭解收費方式、收費節點
裝修預算怎麼抓
設計方案包含家具規劃嗎
該在什麼時候找設計師
設計師會合理控制預算嗎
找設計師前要做什麼準備
有案例平面圖嗎
設計費怎麼收
想瞭解服務流程
丈量費用多少
想瞭解收費方式、收費節點
裝修預算怎麼抓
設計方案包含家具規劃嗎
該在什麼時候找設計師
設計師會合理控制預算嗎
找設計師前要做什麼準備
有案例平面圖嗎
設計費怎麼收
一、買房緣起
一開始我們是跟爸媽住在老家,主要是考量家裡兩個小朋友漸漸長大,他們都需要有各自的空間,尤其我家兩個是一男一女,都有各自的個性跟喜好,你要把他們綁在一起用同一間房根本不可能,只會歡家(台語)而已,加上未來上學勢必還是要分開作作業,所以跟太太開始找房,我們是希望以老家附近為主,這樣臨時有甚麼狀況,請父母就近照顧也比較方便,訴求是希望坪數大也可以讓小朋友有多一點遊戲空間,剛好看上這一間43坪老屋,坪數上滿足我們的需求,就差在它原本舊式的裝潢不是很喜歡,整間都需要敲掉重新規劃,這也是當初買了之後決定要找設計公司的主要原因。
2025最新最全裝修省錢避坑指南免費領!
二、尋找設計師的過程
會決定晨陽的契機也是蠻有趣的,一開始我是依照桃園地區去找設計公司的,一看到晨陽設計的作品風格,是我們喜歡的之外,加上他們有將近30年的經驗,考慮到我們是老屋翻新一定會遇到更複雜的工程,想說如果裝潢預算都要花下去了,一定要找一間可以信任的有經驗的,所以決定洽談看看,很剛好第一次洽談時間是在假日,我們與晨陽的董事長有了一面之緣甚至還握了手,當下我心想假日期間連董事長都會親自到公司關心客戶跟部屬,這麼用心勤奮的老闆,底下的人一定更不會偷懶或是敷衍了事,所以...... 我們就決定找晨陽了!( 蠻特別的契機 )
三、需求列表
因為屋齡27年,有非常多基礎工程要重新做,除了工程還有生活的動線、設計都要一併一起規劃,如果自己發包一個沒有用好後續麻煩的更是我們,我們對於這塊不是很專業,希望一併請設計師幫我們把關,我們需求以日式北歐自然木質感的簡約風格為主,希望公領域區可以寬敞一點,讓小孩有更多活動空間,解決餐廳區採光不足的問題,還有以燕麥奶茶色調為主。
1.居住人數 :夫妻2人,小孩2人
2.客廳區 : 有視聽、投影布幕的需求,希望家人都聚在客廳凝聚情感與互動,要有一個臥榻可以讓小朋友玩
3.風格設計 :喜歡日式跟北歐風,希望帶有自然、木質元素的簡約風格
4.基礎工程 :整室水電抽換線路需重新汰換,老舊裝潢、冷氣、廚具要拆除
5.小孩房設計 :希望有專屬他們兩個房間的風格
6.廚房設計 :想要更換為較有安全性的電子式爐具,廚具要全換,洗手台要有可以切換冷熱水跟飲用水,讓小孩跟太太都可以安全使用且保暖功能
7.玄關設計 :雖然原本格局沒有獨立玄關區,但還是希望可以有個落塵區讓大家可以區隔室內外空間
8.浴室設計 :磁磚要重新敲掉之外,也希望加設暖風機讓浴室不要這麼潮濕
9.收納設計 :需要有收納小朋友玩具以及日常生活用品的收納櫃,也希望結合收藏的公仔
10.主臥設計:要有大量的收納櫃可以放大人小孩的衣服,也希望有一個化妝桌
帶走上百屋主驗證的《裝修最全指南》,簡訊免費發您
四、原屋況
客廳區 : 老舊的設計,阻擋自然採光的玄關櫃體

原本老式裝潢不符我們的喜好之外,還有一點,客廳的空間算大的,但原屋主設計的玄關櫃體,把視覺動線整個都遮住,自然採光很難透到廚房跟餐廳區,加上天花板的高度也低,整個公區就是三個字「壓迫感」。
餐廳區 X 主臥室:視覺動線有切割感的屏風櫃體與臥室設計

餐廳區前的屏風櫃體,阻擋公區的視覺寬敞感,原本的主臥有半開放式的更衣室,跟一個床頭背牆,全部都要打掉重練,那時候設計師也有建議我們,可以把臥室的隔間牆打掉,讓公區有更寬敞的空間,可以讓孩子盡情的玩,親朋好友來也有大空間可以聊天、聚會、打遊戲。
廚房區 X 次臥室 : 管線、廚具與設計老舊

廚房區包括廚具、管線都老舊,幾乎也都要重牽線,次臥做為以後的小孩房,架高木地板也就不需要。
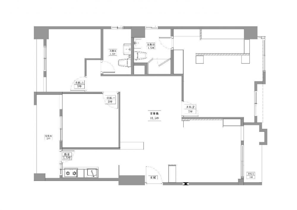
五、格局圖與動線規劃
原況圖平面圖

規劃後平面圖

工程進場的放樣驗收:
有時候看到圖面,你可以對家裡未來樣貌有個想像,但晨陽設計放樣驗收的這個流程,是直接將想像的樣貌,更細節化、視覺化的呈現在空間裡,我們的工務主任是用紙膠帶在牆面、地面上貼出我們施作項目的樣貌。
像是櫃高度寬度、插座位置、臥榻等,立體化呈現3D、2D圖面的規劃,讓我們實際去體驗、感受,設計的所有細節,當時,還記得我們跑到沙發的區域去感受投影幕這樣大小會不會太大或太小,試走玄關區佈局的磁磚的大小夠兩個人站,會不會過窄等等。
其實我們還放樣了兩次一個是拆除前一個是拆除後,有些甚至是拆除後才知道的臨時狀況,也因為有這個細心的流程,我們老屋翻新的過程都很順利當下解決,也避免到很多老屋翻新做完才發現不合適額外還要另外花錢重做,或是拆完當下會看你不懂凹你預算的事件。


六、完工美圖分享
當時就很希望可以做一個玄關,但因為受限於原格局沒有獨立的玄關區,總監建議我們可以在廚房旁邊的收納櫃體可以結合穿鞋椅的功能性,並且運用六角花磚一路延伸到廚房的空間,這樣整體也有一致性視覺看過去也很漂亮。

▲設計師在玄關區域幫我們預留了穿鞋的地方,其實也是一種半強迫大家入內一定要拖鞋才能進來的意思
客廳區 : 重新規劃後以溫潤的木質色調為主,成為放鬆和休息的絕佳場所
因為家裡小朋友才2歲的關係,客廳的空間希望給他們有更大的活動範圍,所以當初設計師幫建議我們把客廳電視牆、電視櫃的隔間牆拆除,向主臥空間內推約135公分,讓客餐廳整整多出快2坪,有了更寬敞的場域,我們喜歡北歐風跟日式無印風的簡約調,所以以溫潤的木質、牆面以燕麥奶色調來營造溫馨的感覺。

▲ 整個公領域很大,小朋友兩個現在都很愛在客廳玩積木,家人朋友帶小孩來聚會、抬槓,都不用擔心太擠,客廳寬敞又舒適。

▲小朋友在家一定會看電視,為了他們的視力著想,我們家裡是選擇投影布幕,半強迫式讓他坐在遠一點的地方,除此之外,我們都把櫃體設計成懸浮櫃體,可以讓掃地機器人輕鬆通過。

▲ 在沙發區的旁邊,設計師為我們設計結合上掀式收納的臥榻,收小孩的玩具跟日常的備品,平時家裡沒事的話,一家人可以坐在沙發上看電視聊聊天,在臥榻區閱讀,親朋好友來也有座位可以一起聊聊天。

▲ 一路排列到廚房的黑白色調的六角磚,與客廳區的風格做出差異,我跟太太都非常滿意,太太還跟我說有種很像在家裡走紅地毯的感覺。
廚房區 : 全面重來雖然燒掉不少預算,但超值得真的不能省
這裡可以說是大改的一個區域,因為屋齡27年了,原先只有冷水,水電管路也舊了,所以我們拆除掉原本的廚具、窗戶,全部打鑿到只剩下紅磚牆,安裝冷熱水的管路、用電管路也全面更新,確實花掉不少的預算,當時還很糾結,但是現在回頭在看還好做了這個決定,也呼籲大家有些錢真的不要省,如果基本的水電管路都沒有搞定好,在未來使用上跳電、留繡水,太太可能邊下廚會邊念到不行。

▲ 我們把瓦斯爐更換為電子式的爐具,所以廚房區有重新再拉專迴,現在不怕瓦斯忘記關或是有瓦斯味,更安全我們倆都非常的滿意。
餐廳區 : 一起和家人,度過理想中悠揚的餐食慢時光
在餐廳區,設計師為我們規劃一整排的餐邊櫃體,不僅提供了充裕的收納空間,另外還有一區玻璃展示櫃,讓我可以展示我收藏的公仔 ( 爸爸也是要有一個自己的小天地 ),在搭配我們選品的實木餐桌,一家人圍坐在這裡一起享用簡單的晚餐或周末時刻親朋好友的聚會,都洋溢著幸福與溫馨。


主臥 : 滿足收納需求,也享有舒適生活情境
在主臥的空間,我們選用與公領域同樣的色調,以日式木質感為主,將原本的床頭木作牆、收納櫃體、天花板全面拆除後,設計師為我們重新規劃過一遍,與原況相比更清爽明亮。

▲因為小朋友目前都還是跟我們一起睡的階段,所以在床組我們特地挑組合式的洞洞板床板,可以自由組合多功能的運用,下方的靠枕也可以預防小孩睡一睡掉下來,也很推薦大家添購的。

▲設計師幫我們延伸原有上方的樑柱,往下規劃一整排的收納櫃體,運用上掀的功能讓我們可以放置不常使用到的棉被、枕套等等,上櫃則可以放置一些日常衛生用品。

▲太太也有專屬他的收納區,畢竟女生嘛,都會有很多衣物、保養化妝品等,在,床尾設計師幫我們規劃將化妝台與衣櫃結合一體,讓太太在日常也方便梳妝。
小孩房 : 色彩繽紛的童趣風格,展現出小小孩獨一無二的個性
這個主要是設計師幫我們進行規劃的,因為我們剛好一男一女,男生就用藍色,女生就用粉色紫色,也是希望小朋友在學習成長階段,透過顏色讓他們喜愛在這個空間裡面玩跟學習。


▲妹妹跟哥哥都很愛他們的房間,我們只有動牆面其他櫃體是希望購買現成的,之後長大後他們可以有更自由變化的空間。
【裝修心得】
給老屋翻新的新手的建議 :
經過這次的裝修經驗,很推薦做老屋翻新的大家,一定要做水電工程,像是我們27年老屋,也是到後面敲開來看之前的管路,基本上都不太可能用現在的設計去做配合,我個人比較實際面一點,畢竟房子是要住要使用的,你如果設計的在好看,日常生活中如果不實用、基本的水電都沒顧好,豈不是本末倒置 ?
對晨陽團隊的感謝 :
很慶幸第一次裝修就遇到專業跟可以信任的晨陽設計團隊,幫我們全面的去評估跟建議的施作項目,而且老屋翻新找有經驗的團隊來協助也更安心,晨陽30年之外他們團隊分工也很細,不會因為要多賺我們的錢就要我們換更好的東西,尤其我們工務主任超貼心會站在我的立場幫我們想,有些項目可以用其他的方式來解決,幫我省下不少荷包;在完工後,我們都非常滿意,完全只想待在家~連我們家小朋友常常都會說好喜歡新家,聽到這些話這次的翻新的錢花的都值得了 !








