免費測風格!精準推薦,避免風格踩雷
【案例背景】
原本屋主鍾情美式風格,但因坪數不大、加上孩子小需寬敞跑跳空間,環境也要能耐髒,以及預算受限…等因素,最後聽取建議改以較休閒且不顯髒的奶油輕奢風。由於將客、餐廳規劃於房子中央,可省下不少動線空間,但也面臨六扇房間門齊聚,這對重視風水的屋主來說亟需調整,另外財位也是規劃重點。
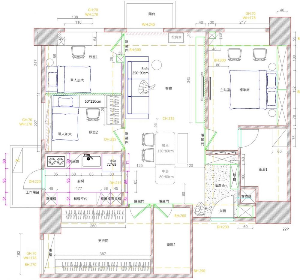
【平面規劃】
1.因有作過客變,所以雖是毛胚交屋,但4房格局已完備合用。
2.位於房子中央的客餐廳,面臨廚房、更衣間與三房、客浴等六扇房門,讓空間立面感覺雜亂,所以如何整合設計成為關鍵。
3.2間小孩房原本大小差異很大,特別挪移牆面讓兩房格局較平均。
4.公共區採用超耐髒的班傑明塗料,也讓奶油色牆面更有肌理感,搭配鍍鉻金屬收邊條裝飾凸顯輕奢時尚風。
設計後平面圖:2023.9.16-板橋-陳小姐-模型

【空間設計】
玄關
玄關原就有預留污衣櫃及鞋櫃空間,只需以系統櫃規劃即可滿足機能,重點落在風格營造,除入口端景與鞋櫃門片造型設計外,並在落塵區選定魚鱗地磚做跳色,營造出獨特輕奢印象。


▲大門後預留內凹格局可規劃污衣櫃,餐桌後的壁燈則是專為晚歸男主人設置的溫暖玄關燈區。
#污衣櫃
▲品味獨具的屋主選中魚鱗地磚,鋪貼在落塵區恰可做區隔並與風格呼應。

#落塵區
*客廳
客餐廳共面臨六扇門,除了作隱藏設計外,更需融入牆面設計。首先將主臥門貼上木飾板並連結玄關櫃,形成超寬電視牆,藉此放寬客廳格局。沙發牆則隱藏有二間房門,再搭配壁龕滿足風水、裝飾與收納需求。
▲電視牆納入主臥門、玄關櫃好讓面寬放大,也讓25坪住宅更顯大器。

#電視牆
▲以特殊塗料鋪陳電視牆,再搭配訂製鐵件櫃與導圓樑線營造柔美奶油風,櫃內還安藏屋主財位。

#奶油風
▲屋主請師父看好的財位就在沙發後,所以用鍍鉻玫瑰金邊條及燈光規劃壁龕設計財位,讓美感與風水雙贏。

#壁龕 #風水
餐廳&廚房
廚房門以玫瑰金鋁製拉門取代傳統門片,除了增加奢華感及穿透感外,也成為餐區聚焦點。一旁更衣間門則僅留溝縫線條融入牆面來削減門片感,搭配藕色漆底與壁燈,形塑輕奢優雅氛圍。


▲玫瑰金框拉門改變廚房意象,加上天花板燈光提升輕奢氛圍及微美式風。
#美式風
#防濺板
臥室
為營造屋主喜歡的飯店式設計,將床頭下半區以半圓繃布做成裝飾背牆,上半區則打造衣櫥、並以櫃門融入質感主牆,也滿足收納需求。窗邊還規劃化妝檯面與斗櫃,多餘衣物則可移至更衣間以免雜亂。
▲床頭上櫃可儲放衣物,床頭繃布造型板則須以精準尺寸用手工拼貼才能完美呈現。

#床頭繃布
▲在窗邊規畫有化妝檯與女主人多用途桌,同時也消弭空間樑柱感。


完整裝修工具包(清單+話術+模板)已為你準備好!
裝潢清單
空間 | 類別 | 品牌及型號 |
客廳 | 沙發 | 蔚川家居訂製 |
壁燈 | 蔚川家居訂製 | |
油漆 | 班傑明塗料&得利DULUX乳膠漆 | |
餐廳 | 餐桌 | 蔚川家居訂製 |
【設計師問答】
Q:不少屋主有風水信仰,這些設計或禁忌會不會與風格有衝突而增加難度?
A:屋主事先有請師父來看過風水,也訂出雙財位以及各種紅字等吉祥尺寸,了解這是屋主很重視的事,所以設計師一定會尊重且依據尺寸來規劃。其中最重要是沙發背牆與電視主牆的雙財位,我們將這些轉化為壁龕及展示櫃,讓信仰完全融入空間設計中,甚至成為裝飾特色。
Q:25坪的房子擠進四房、廚房後還能很寬敞,設計上有甚麼技巧嗎?
A:本案因屋高超過3米且具好採光等優勢,加上客變後的格局讓房間配置在房子外圍,開門就進入公共區,幾乎零動線。此外,客廳電視牆與主臥門、玄關櫃串聯設計也有助於讓主牆放寬,最後搭配尺寸較小巧的沙發、餐桌可讓孩子有更多遊戲區,空間也有感變寬敞。











