風格選到暈?怕裝完不喜歡?30 秒測專屬風格,裝出理想家!
【案例背景】
雖然已成年的小兒子才是屋主,但在同社區也有置產的父母,在裝修後也很喜歡這環境,因此,一家四口決定先住進來,父母新家就待日後再裝潢。而年輕屋主因先前在美工作的背景,加上家人都好客熱情、喜歡品酒,於是公共區以美式為主軸,搭配小酒館餐廚氛圍,以及可運動、打牌的多功能區等休閒設施,完全滿足全家人的生活期待。
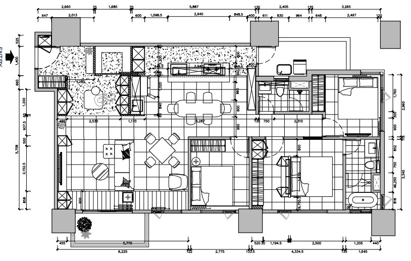
【平面規劃】

1.將玄關格局放大,創造寬敞出入動線並加建儲藏室。
2.客廳與多功能休閒區採開放合併規劃,讓窗景串聯營造大宅格局。
4.將原有毛胚空屋規劃出三房格局,目前可滿足一家四口需求,日後想轉作小家庭利用也方便。
【空間設計】
*玄關
因為家人鞋量不少又好客,為了讓客人一進門就能感受寬敞空間,所以將原玄關格局擴大,搭配端景牆、穿衣鏡、櫥櫃及穿鞋矮凳展現大宅氣度。同時利用畸零區加設一間儲藏室來收放行李箱或大型物品。

▲玄關端景吸引目光並引導入內動線,其中端景牆後方規劃有儲藏室,門口則有衣帽櫃。


#玄關端景
▲矮凳右側黑色雙面櫃除遮掩餐廚區,也是玄關收納櫃與廚房茶水電器櫃。#雙面櫃

*客廳&多功能區
客廳與多功能區串聯可讓窗景放大、格局變寬,再搭配橫跨雙區的臥榻提供聊天賞景或訪客坐臥的平檯,營造出自在氛圍;風格則採用灰黑調牆色與皮革家具來整合工業風與日式侘寂美感。
▲客廳選特殊灰泥漆以鏝刀塗刷工業風質感,搭配黑色格柵櫃混搭來日式侘寂美學。#灰泥漆
▲雙區合併格局放寬空間感,不羈色調搭配軌道燈、皮革家具則形塑慵懶工業風格。


#工業風
▲屋主想要的臥榻規劃在客廳與休閒區,除可坐臥觀景,客人多時也能增加客廳座位。

#臥榻
*餐廳
為打造在家小酌的酒館氛圍,先以石材規劃開放式中島吧檯,並在牆面貼覆紅磚牆、搭配黑色腰裙與展示酒櫃,圍塑出英式微醺氛圍;兩側則有備餐檯與電器茶水吧檯來增加工作檯面與收納,讓看似簡約的廚房機能滿滿。

▲中島廚房與餐區讓親友無論品酒、用餐或準備料理時都能無隔閡同樂。#中島廚房

▲因酒藏可觀,除吧台後有展示酒櫃,側牆電器櫃下也崁入控溫酒櫃,另一側茶水吧台則可協助廚房工作。


#酒櫃
*臥室
屋主雖年輕,但個性較沉穩,因此設計團隊運用灰調天地壁搭配纖細圓柔的鐵件區隔多用途化妝區,搭配臥床區蛇紋石與皮革繃布等床頭裝飾元素,體現內斂雅痞品味。
▲圓鏡背面以蛇紋石搭配皮革繃布設計,點綴出沉穩而都會的雅痞風格。

#雅痞風格
▲為維持睡眠環境純淨簡潔,運用造型鐵件設計化妝桌,也區隔出更衣區。

#化妝桌
▲長輩房擁有雙面採光,選用麥褐牆色與藕灰色窗簾來鋪陳柔和氛圍,衣櫥搭配長虹玻璃門降低壓迫感。

#長輩房

完整裝修工具包(清單+話術+模板)已為你準備好!
【設計師問答】
Q1:屋主喜歡的風格很多元,放在同一空間不會突兀嗎?該如何整合?
A1:生活不只一個面向,居住風格也不需要被侷限在單一風格,所以當屋主提出想要多種不同風格元素時,設計師的工作就是協助整合、打造獨特而和諧的空間。本案將看似不相干的美式工業風、日式侘疾風與現代風,透過灰、黑、褐等色調鋪陳,以及曼斯特灰泥漆、仿鏽化鐵美耐板、紅磚牆、鐵件軌道…等材質運用,交織出簡單、俐落卻很有溫度的沉穩畫面,一如苦甜巧克力蘊涵衝突味覺卻很迷人。

Q2:屋主喜歡英式酒館,如何在家營造這樣的氣氛,有哪些設計重點?
A2:除了中島與酒櫃等硬體規畫,燈光也很關鍵。為了打造自帶微醺感的畫面,先運用嵌燈與軌道燈等主照明提供明亮感,接著在中島與酒櫃、牆面崁入線燈來強化情境氛圍,最後再利用餐桌吊燈或壁燈等造型感燈飾來做局部燈光輔助,多層次光影不只使畫面豐富,也能因應各種情境需求。









