【案例背景】
因為有預算考量,加上寶寶才剛出生,日後成員變動性仍大,所以屋主決定將17坪新家裝修的重點先放在公共區,私密空間就先著重在收納需求,也留給日後更多彈性。對風格雖無特別指定,但期待新家簡單、明亮、好保養。此外,屋主對色彩接受度頗高且勇於嘗試,也讓空間色調更多彩。

完整裝修工具包(清單+話術+模板)已為你準備好!
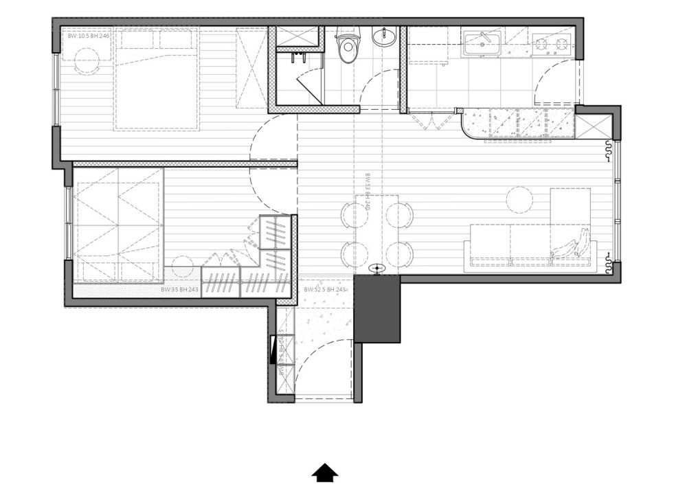
【平面規劃】
2.打掉客廳與廚房的實牆,並將上半段改以玻璃隔間來放大雙區。
3.在廚房玻璃隔間下方增設檯面作為工作區及電器收納櫃。
4.主臥室採用臥榻取代床架,再搭配L型衣櫥以便提高收納量。
設計後平面圖

【空間設計】
玄關&餐廳
因為屋型屬於深度偏窄的T型格局,規劃2房後動線的可變性也不多,所以在玄關先利用門後左側規劃鞋櫃與端景,接著利用通往客廳的動線旁配置餐桌來滿足機能,並以壁燈取代吊燈來營造聚焦點。


▲利用T字格局左半部規劃兩間房,而右半區則是客、餐廳及廚房。
# T字格局
客廳&廚房
關上房間門後,公共區僅剩單面採光,為了讓室內有提亮的裝修效果,決定將客廳與廚房間的牆面改以玻璃隔間設計,轉角再運用半高的導圓造型設計來柔化空間感,讓客、廚雙區的視覺得以互通並放大。

▲玻璃隔間放寬客廳與廚房格局,緩減侷促感、也讓家人互動更親密。
#玻璃隔間

▲拆掉實牆後在廚房內增設檯面與櫥櫃,客廳則有展示櫃來收納女主人的小物收藏。
#展示櫃

▲客廳牆色以暖灰與白色為主,搭配粉紅色沙發相當舒適亮眼而有記憶點。
#粉紅色
廚房
對於喜歡烹飪的女主人來說,光廚房檯面是不夠用的,所以配合隔間牆材質變更時,也將廚房略微外推好增加櫥櫃與檯面,既可多出電器櫃、收納區,也能透過玻璃牆邊料理、邊照看孩子。

▲廚房特別以拱門造型呼應導圓玻璃隔間設計、也增加柔美線條。
#拱門

主臥&書房
主臥室選擇以飽和度較高的鵝黃色作為主調、搭配暖灰牆櫃營造舒服療癒的空間畫面。機能上則藉由床底的臥榻與貼牆的L型高櫃加疊櫃設計,打造出相當可觀的衣物收納量。


▲床側除有L型衣櫥,床底也運用臥鋪與地櫃取代陽春床架來增加收納力。
#臥鋪

▲由於孩子還很小,另一間房暫作書房使用,運用舊家家具搭配灰綠牆色營造簡約北歐風視覺。
#書房
2025最新最全裝修省錢避坑指南免費領!







