房屋信息
●房屋狀況/舊屋翻新
●坪數/25坪
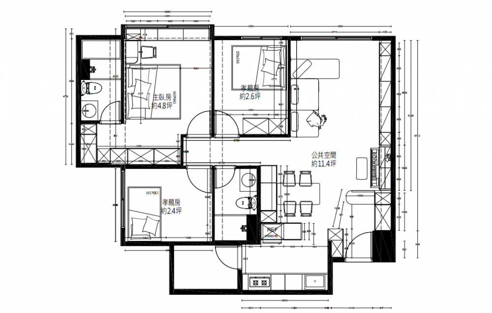
●空間格局/3房2廳2衛
●風格屬性/現代風
●居住人員/ 2人
裝修預算規劃與避坑清單
含Excel模板,限時0元領取
設計重點&平面配置
在室內25坪的空間中,採3房2廳2衛的格局配置,除了選用屋主偏好的簡約黑、灰、白色,設計團隊更考量現代風環境中的明亮度,加入了淺木色、海軍藍做搭配,並將封閉廚房改為開放式設計,與客、餐廳串聯,不僅讓整體視覺更加開闊,採光也能流通全室,即便是以中性色為主的空間,依然通透舒適。
至於空間機能面,因為屋主夫妻的物品並不多,收納不必做滿,只要滿足各個生活區域的基本收納需求即可,另外,也因應屋主要求增設中島,作為廚房檯面的延伸,提升料理輕食時的方便性。

VR720°全景預覽
三商美福提供「720°VR全境擬真實境」的預覽服務,突破以往僅有平面圖的多種限制,可以看到動線、櫃體安排、材質等細節呈現,輔助屋主了解裝潢過程,也提升雙方的討論效率。


客廳
720°VR全境擬真實境



餐廚
720°VR全境擬真實境

主臥
720°VR全境擬真實境

次臥
720°VR全境擬真實境
帶走上百屋主驗證的《裝修最全指南》,簡訊免費發您
玄關設計
玄關以深灰色SPC地板建立落塵區,特別採用縱向拼法,增加空間延伸感,入門處則規劃了頂天立地玄關櫃,滿足屋主夫妻收納鞋子、物品的需求,而櫃子中段的開放式平台,既可用來展示收藏品,也虛化了龐大的量體感。另外,為了阻擋開門見內的視線、提升居住隱私,三商美福團隊打造了長虹玻璃屏風,並結合穿鞋椅設計,擴充實用機能之餘,也有引導入內動線的作用。


客廳設計
客廳電視牆選用灰白色系統板,明亮簡約又便於清潔維護,牆上的櫃體則以木質為基底做延伸,有懸空吊櫃、落地電視櫃,以及靠窗用來作為小型儲藏室,可擺放吸塵器等物的收納高櫃。天花板則選擇大面積留白,不刻意做造型設計,僅以藍色跳色點綴,增添層次感、避免過於單調,也讓屋主在客廳待著時,能有放鬆、不壓迫的視覺感受。





餐廚設計
因為屋主不常下廚,較不擔心油煙擴散問題,選擇將封閉廚房改為開放式設計,與餐廳合併規劃,並增加中島作為檯面的延伸,也於餐桌旁規劃餐邊櫃,不僅可以收納物品,還能直接將微波爐、烤箱等小家電放在平台上,方便料理輕食,打造出更符合屋主習慣的餐廚空間。



主臥設計
主臥延續公領域的灰白色調之外,特別加入莫蘭迪藍和海軍藍,提升視覺層次,也形塑出沉穩、靜謐的空間氛圍,讓休憩時更放鬆自在。除了沿著牆壁規劃整面衣櫃、污衣櫃,也特別以玻璃門片搭配燈光設計,設置一座展示櫃,讓屋主收放包包。此外,會選擇在窗邊打造臥榻,其實是在長輩的建議下,用來化解臥室路沖的煞氣問題,設計團隊也額外增加抽屜設計,賦予臥榻更多的實用機能。


次臥設計
有別於其他場域現代風格的色系選用,次臥主要是提供給長輩使用的房間,因此特別依他們的喜好來打造,奶茶色床頭主牆搭配溫潤木質調,塑造溫暖自然的北歐調性。


裝修後記
從前期溝通到施工期間,再到完工驗收,屋主夫妻都十分信任三商美福團隊,規劃顧問Mia也分享,因屋主對於選材用料品質的重視,光在地板的顏色選擇上就討論許久,最後透過細節調整,總算讓地板完整融合於各空間,屋主夢想中的婚房也就此誕生,目前入住快半年,還是相當滿意!
| 系統櫃板材型號 | |
玄關 | ●鞋櫃-波特蘭深灰+灰棕杜里橡木 ●地板-蘭克韋爾深橡 |
客廳 | ●電視櫃-波特蘭深灰+希林核桃木+黑雲岩+白雲岩 ●地板-波爾多淺灰橡 |
餐廳 | ●餐邊櫃-波特蘭淺灰+希林核桃木 ●地板-波爾多淺灰橡 |
主臥 | ●衣櫃.窗邊櫃-希林核桃木+波特蘭深灰+波特蘭牙白+波特蘭淺灰 ●地板-蘭克韋爾深橡 |
次臥 | ●衣櫃+床頭板-波特蘭牙白+天然橡木 ●地板-波爾多淺灰橡 |








