隨手换装,輕鬆感受装修效果
【案例背景】
父母將這棟30幾年的舊家交給新成家的屋主,不僅象徵世代傳承,也有開新枝的寓意,因此裝修時雖然家中還只有夫妻倆,但仍保留原有三房格局給未來新成員,將裝修重點放在屋況翻新與全屋水電重建。至於設計風格則因屋主偏好清水模灰調與簡約質感,搭配公仔及書籍等收納滿足,讓新家更符合新主人需求。
帶走上百屋主驗證的《裝修最全指南》,簡訊免費發您
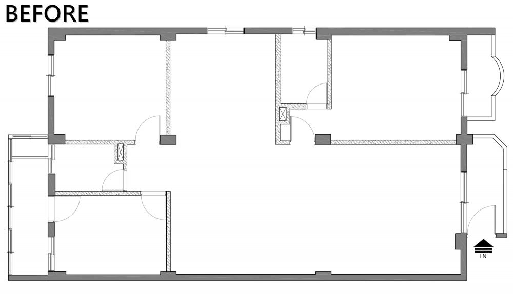
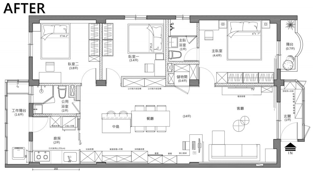
【平面規劃】
1.沿用原陽台玄關動線,換鋪六角地磚區隔出落塵區。
2.維持3房格局,且藉由主臥室衛浴門向改變設計為公共區增建儲藏室。
3.利用客廳沙發與餐廳之間的空檔區,規劃書桌與牆櫃來滿足書房設計。
4.將舊廚房格局略縮讓出更多空間給中島,且改用玻璃拉門增加餐區採光。
5.餐桌兩側規劃公仔展示櫃及多功能餐櫃。
6.客浴改以隱藏門,既美觀、也化解與玄關對沖的煞氣。


【空間設計】
客廳
考量屋主喜歡清水模與灰色質感空間,在客廳電視牆與餐區展示櫃牆旁塗覆具紋理感的特殊塗料,而沙發背牆則以灰綠漆牆做跳色,搭配灰白家具更能展現新芽般的生命力。

▲電視牆以灰階特殊塗料營造屋主喜歡的沉穩氛圍,沙發後則以灰綠色調發揮跳色的亮眼效果。
#特殊塗料

▲電視牆右側以懸空鐵件做裝飾性層板,可擺設綠色植栽來增加生命力,左側主臥門框則配合風格改以黑色烤漆框與木紋門作翻新。
#鐵件層板

▲沙發右側利用建築的畸零凹洞區配置斗櫃,並貼心選用橫拉門讓開門方便些,櫃上方則做置物平台,而沙發背牆也規劃壁龕來豐富視覺設計。
#畸零格局#壁龕
書房
有大量漫畫收藏的屋主提出想要書桌區的要求,設計師利用客餐之間的過渡區配置書桌與書櫃,除收納藏書,也滿足看書、用電腦的需求,讓機能更完整。

▲書桌區層板櫃延續灰綠牆色,再以白板門櫃銜接餐櫃,讓這彈丸之地不只能工作、收納、還能留言。


▲巧妙利用客餐中間過渡地帶,在不增加空間負擔的情況下增設書桌區。
#書桌區
餐廳
餐廳肩負全室重要的收納大任,除了有客製化公仔展示櫃、電器櫃與餐櫃,在客餐廳之間則利用主臥衛浴門改向設計,節省動線來爭取更多空間規劃出儲藏室,增加更多收納機能。

▲得知屋主有公仔展示櫃需求,特別在餐區旁以玻璃門搭配燈光規劃兩座展示櫃,下方則搭配門櫃可收納雜貨。
#公仔展示櫃

▲先將主臥門右移,並配合房內衛浴門轉向設計,使原本出入主臥動線可挪作走入式儲藏室,同時以隱藏門設計讓牆面保持簡潔。
#儲藏室

▲書櫃串聯餐櫃可展現大器面寬,可移式拉門也是白板牆;至於餐櫃中的檯面則配置有插座方便小家電使用。
#餐櫃
中島&廚房餐廳
考量屋主生活習慣,將熱炒廚房格局縮小,並以玻璃拉門取代實牆引入更多採光,同時在餐廳增設中島吧檯、增設插座,方便屋主可在此沖泡咖啡、吃早餐或使用電腦。

▲中島桌下也規劃有電器櫃,可配置微波爐等家電,彌補廚房內電器櫃不足。
#電器櫃

▲廚房拆掉實牆改以玻璃拉門為僅有前後採光的客餐區引入更多光源,右側客浴門則作隱藏門設計。
#玻璃拉門

▲中島可利用吧檯桌面高度來遮擋後方檯面的雜亂感,空間也更具層次感。
#吧檯
玄關&廚衛細節
玄關雖沿用舊宅陽台的入門動線,但以六角地磚做翻新設計,另外還貼心設計鞋櫃與穿鞋椅;另外,廚衛及水電翻新也是整修的重中之重。

▲玄關陽台窗換上斑馬簾,讓光線可自由調節引進客廳,也能呈現更明亮現代的新穎風格
#玄關

▲廚房平日開放引入光源,內部除換新水電及設備外,還增設一座電器櫃滿足需求。
#廚房

▲主臥衛浴除更改門向,內部重新規劃為乾濕分離,搭配淋浴間磁磚牆裝飾更顯清爽新穎。
#主臥衛浴








