拍张客圖,AI極速换装,1分鐘出圖
想瞭解服務流程
丈量費用多少
想瞭解收費方式、收費節點
裝修預算怎麼抓
設計方案包含家具規劃嗎
該在什麼時候找設計師
設計師會合理控制預算嗎
找設計師前要做什麼準備
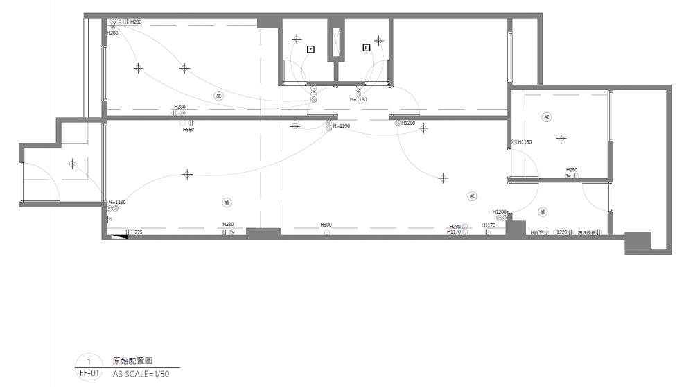
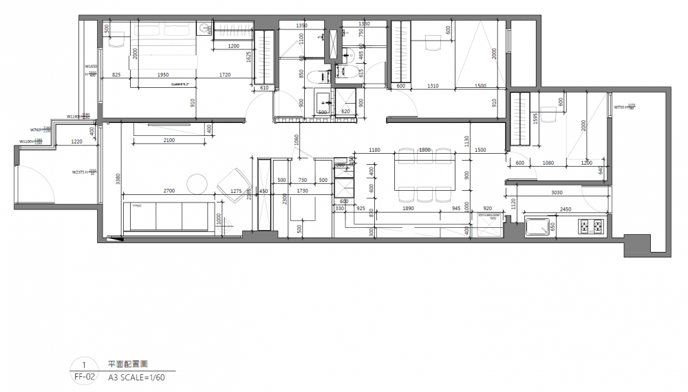
有案例平面圖嗎
設計費怎麼收
想瞭解服務流程
丈量費用多少
想瞭解收費方式、收費節點
裝修預算怎麼抓
設計方案包含家具規劃嗎
該在什麼時候找設計師
設計師會合理控制預算嗎
找設計師前要做什麼準備
有案例平面圖嗎
設計費怎麼收
一、裝潢背景
我們和孩子過去都是租屋居住,雖然很多年前就在關注房子了,只是每次看到房價居高不下,就下不了手,一直到有一天房東跟我們說他的房子要準備賣掉,我們才迫切的開始找房買房,也是緣分吧,最終找到這個不論預算、坪數、格局和位置都符合我們需求的房子!
↓直接瞧瞧裝潢前的樣子






完整裝修工具包(清單+話術+模板)已為你準備好!
二、找設計師的過程
房子都買了,就該把它打造成我們想要的樣子,因此一開始就決定要找專業團隊來規畫,而「三月木設計」早在我還沒買房裝潢時就知道它了,曾有朋友和我分享三月木整體的團隊氣氛、工作環境,當時就讓我留下很深的印象,裝潢時第一時間就是想到他!約了面談後,總監不論美感、專業和認真的態度,都讓我們很放心,因此就算他們公司遠在新竹,在蘆洲的我們還是想要把屋子交給他!P.S.三月木可以接雙北地區喔!
三、裝潢需求
其實一開始很喜歡長型房的通透感,但事後才發現長型格局隔間後容易出現零碎的小空間,房子的兩間浴廁也都很小,改善格局、充分運用空間、擴充收納與機能是我們的第一考量。


四、裝潢前後
除了格局重整外,空間風格也是我們十分重視的部分。我平時喜歡看電影,對於某些國外電影中的居家場景很著迷,據我念藝術史的朋友說,這屬於「殖民風」,因此初步溝通時,就和總監討論這個風格想法,而總監自己也做了很多功課,把這個混合了多種歐式設計,又兼具居家溫暖調性的「殖民風」融入空間,一步一步把舊房子裡裡外外做了翻轉。
↓廢話不多說,就給大家看看裝潢前後的差異

▲客廳至走道:改掉原本間接天花,空間風格也立刻轉換了。












五、完工美圖分享
直到現在不論是看網路還是雜誌,都不曾看到有與我們家雷同的「殖民風」,三月木總監也不諱言的說這不是他們曾做設計過的風格,但讓我很感動的是整個設計團隊都很願意嘗試,過程中會為問題一一尋找解決方法,總監在美學及專業經驗上的判斷也令我們信服,讓我們家既能擁有獨特的風格,卻又不失生活居住的重要原則。重頭戲來了!現在就帶大家來ROOM TOUR!
玄關
設計團隊捨棄了原本的隔間型式,讓玄關和客廳融合,兩邊空間與採光都順勢放大了,更用與踢腳線板相同的深棕色為這裡做了「畫框」,一進門就能擁有「走入場景」的視覺效果。



客廳
為了符合我夢想中的風格,總監為我們特別設計了立體的「踢腳線板」,並置入在牆角、天花,順著這些線條讓空間更獨特別,也能巧妙變換牆面底色,不同角度之下呈現非常有趣的畫面。





餐廳
餐廳一邊作了櫥櫃與幾何花磚,鮮明的對比讓這裡分外吸睛,餐桌椅和吊燈,當初選了好久,在燈光的巧妙搭配下,整體空間感更為延展,也營造出濃厚的異國風情。寬敞的餐桌與空間布局,讓我願意在這裡待上一整天。





主臥
我們用深色的床頭線板取代床頭櫃,讓空間更聚焦,為了讓線板線條更立體、線條更完整,這可是請木工師傅雕手工製作的喔!床頭兩側一邊是望遠鏡造型燈、另一邊則是吊燈,都是我自己上網找的,當初擔心在床上不好開關燈,特別選了有扳手的,後來才知設計團隊早在裝潢時埋入了管線,方便我們在床頭操控所有燈光照明。



浴室
兩間浴室從磁磚到設備都重新安排,為了讓空間簡約清爽,費了很多心思尋找尺寸較大的板磚。而主浴的花磚本來只想做一小區作為視覺重點,但實在太好看了,後來索性把最大面積的牆面都鋪上這款磚。客浴則以撞色方式創造空間亮點,使用了兩種紋理相似但色彩不同的方磚。


特殊亮點
很喜歡我們家餐廚區壁面高圓拱壁龕的設計,這裡不僅結合展示與收納功能,柔和曲線使空間更加沈穩典雅。側邊嵌入可抽式滑軌,方便收納各種輕食乾貨雜物,另一邊則是隱藏的儲物間讓各種生活用品有收納之處。

六、裝潢心得
過去我們一家人因為租屋的關係,家裡老舊又不符需求,自己也懶得費神打理,而自從搬進新家後,我們生活品質變好,家裡的氛圍也大大翻轉,每個角落、每件家具小物都有探索不完的細節和說不完的故事,而用心規劃設計的空間,在經過、日夜光影的變化,就像電影彩蛋般,讓我們每天都有新發現,為我們製造一個又一個的驚喜!


七、裝潢後記
謝謝大家看完這篇落落長的文章,其實我們至今睡在這裡,都還有種不真實的感覺,第一次擁有真正屬於自己的家,這種感受真的難以言喻,特別謝謝先生支持我的想法,也感謝三月木設計團隊過程中總是耐心嘗試各種解決方法,把我們的想法付諸實現,不論經驗還是後續的保固服務,都讓我們很放心,也謝謝那位在無數個夜晚不停穿梭在pinterest、淘寶、小紅書只為了尋找素材的我自己!








