【案例背景】
這是間新中古屋,因家人多住國外,所以屋主目前算是單身居住,但屋主考量家人回國、朋友來訪都會團聚在此,加上自己習慣輕食料理,希望有較大檯面,因此指定要有大尺寸吧檯餐桌,好因應多人一起料理與用餐需求。風格設計上,屋主強調希望能多點休閒感、渡假風,也不排除牆面多點色彩讓居家更繽紛活潑。至於臥室則因屋主有練空中瑜珈,所以提出瑜珈區及更衣間等空間需求。
裝修預算規劃與避坑清單
含Excel模板,限時0元領取
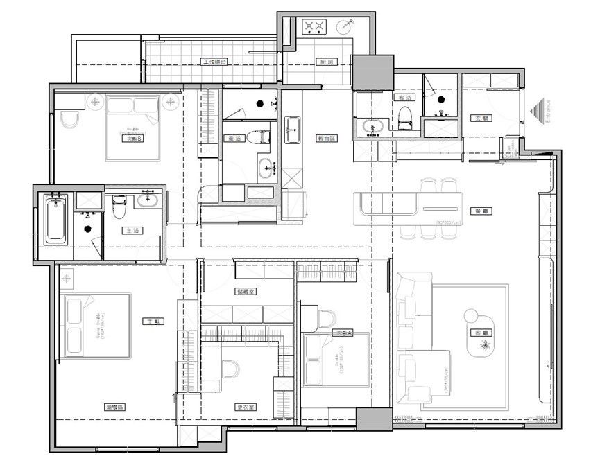
【平面規劃】
1.依原玄關格局配置鞋櫃、壁掛區及穿鞋椅,並加設拉門區隔內外。
2.在電視牆左側與輕食料理區旁規劃電器櫃,吧檯下方也有櫥櫃滿足客餐區收納需求。
3.將四房中的一房分成前後段,臨走道的前段作為儲藏室,面窗後半段則撥給主臥更衣間使用。
4.主臥將臨窗半側空間留白,並增設牆鏡與空中瑜珈吊床設備。
5.另二間次臥配置必要桌椅與櫥櫃滿足收納需求。

【空間設計】
玄關
雖是8~9年前房子,但先前並未入住或裝修,加上原建商就規畫為中型豪宅規格,除有專屬玄關,還配置熱炒廚房與輕食料理區,這些格局經檢視後也覺得合用而保留。此外,玄關增設拉門則可明確界定裡外,且讓餐區主牆更完整。
▲利用大門右牆規劃玄關端景與鞋櫃,搭配壁掛區與抽屜滿足小物收納需求。

#玄關端景
▲玄關因緊鄰開放餐廚區,為保有主牆完整性加一道木框玻璃拉門界定內外格局。

#木框玻璃門
客廳
為了營造出屋主喜歡的休閒生活風格,設計團隊選擇以明顯木紋的櫃板與地板鋪陳空間基調,搭配特殊塗料刷出電視牆面的厚實筆觸與手作感,以及素灰色調的沙發家具等,圍塑出療癒、樸實又放鬆的空間感。
▲大量白色窗簾、素灰色沙發與明顯木紋地板交織出質樸、療癒的空間感。

#木紋地板

▲屋主品味很好,多數家具燈飾都是在裝修過程自行搜尋再與設計團隊討論選購。
#家具燈飾
▲公共區運用特殊塗料刷出手作感電視牆,搭配木工玻璃櫃與弧線燈光打造療癒氛圍。

#療癒氛圍
餐廳
平日屋主飲食多半採輕食料理,而家人團聚時則需要較大餐廚空間,加上建商原本就配置有熱炒廚房,所以決定以開放格局配置大桌面中島、電器櫃與開放的輕食料理區來滿足餐飲需求。
▲深沉綠及原木色櫥櫃搭配區隔玄關的玻璃門形成連續主牆,讓餐區畫面更完整。

#主牆
▲為避免大尺寸中島桌形成空間巨大壓力感,材質上選擇以玻璃磚與白色人造石展現輕盈感。

#中島桌

▲屋主頗有自己主見,無論是沉綠色櫥櫃或花瓣吊燈都能展現個人獨到美學與品味。
#花瓣燈
主臥室
私密空間規畫重點放在主臥,除選用暖調的酪梨綠牆與木紋地板延續休閒主題,考量屋主練空中瑜珈的需求,將靠近窗邊的半側空間留白,搭配大面導圓角牆鏡與瑜珈吊床規劃為瑜珈練習區。
▲臥室選擇更具安定與療癒感的酪梨綠為牆色,搭配木質床頭顯得清爽舒適。

#酪梨綠

#綠色拉門

▲主臥從綠色隱形門可進入更衣間,走道旁利用外凸牆面規劃層板包包櫃,鄰近採光窗處就配置化妝桌與收納層板櫃。
#更衣間

完整裝修工具包(清單+話術+模板)已為你準備好!
設計師問答
Q1.這個家很有屋主自我風格,請問當初如何與屋主討論出設計方向?
A1.屋主是位約莫30歲的年輕女性,希望新居可以擁有渡假氛圍與休閒感,所以我們在建材部分特別選擇以原木色調的木工與較明顯紋理的木地板來鋪陳整體基調,接著混搭了特殊塗料與壓花玻璃、玻璃磚等帶點復古氛圍的元素來增加休閒感,最後加入深、淺綠牆,以及花瓣燈、氛圍燈、金色五金…等點睛設計來營造出療癒的渡假風居家。
Q2.中島桌可以說是公共區的核心,其設計重點為何?
A2.這是我們特別為屋主的生活與空間所量身訂做的輕食料理中島,不僅可提供超大桌面的料理與用餐平台,家人團聚、開派對時桌面都可擺滿食物,並讓客人有流暢動線可以取用餐點。而且中島桌面雖然很大,但為避免量體過大而笨重,除了底座局部採用玻璃磚搭配金屬鑲邊確保輕盈且安全,人造石桌面則採用法國式切邊加工法,讓桌邊圓弧且更優雅纖細,搭配花瓣燈與草綠色更顯浪漫。








