【案例背景】
屋主在預售階段其實已有找別的設計師作過客變,但後來因不滿意原設計的客廳規劃,後來才又經朋友介紹找到卓林設計重新規劃。裝修重點除了如何在16坪小宅中安排出三房給四位大人住以外,還要透過設計手法讓客廳放大,更重要是原本格局完全沒有空間做收納櫃,家電或過季生活用品都沒地方收,讓屋主擔心是不是一切都要斷捨離了?所以收納設計也成為這次規劃重點。至於風格則是信任專業,交由設計師來全權處理。
帶走上百屋主驗證的《裝修最全指南》,簡訊免費發您
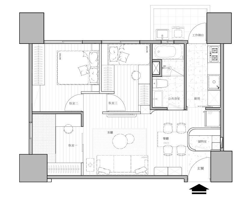
【平面規劃】
1.在廚房與大門之間設計一間儲藏室,儲藏室側牆則可作為餐桌靠牆。
2.為了保全電視牆的完整性,先將電視牆後兩間臥室門轉向並打造成端景。
3.把電視牆、進臥室的端景與廁所門整合為一,藉此放大客廳面寬。
4.將電視牆後兩房之間的牆面移位重建,滿足雙人房與單人房型的格局。
5.沙發旁的臥室隔間改採鋁框小冰柱玻璃拉門,可為客廳引入光源、也保有房間隱私。
6.廚房門改以玻璃拉門以減少開門擋住櫥櫃的問題。

【空間設計】
玄關、儲藏室&餐廚區
16坪空間扣掉三間房後,能利用空間很有限,屋內幾乎沒有牆面可以設立櫥櫃,吸塵器、風扇等用品無處可收,所以選擇在大門與廚房之間圍出一間小儲藏室,不僅加強收納,而門口區搭配六角磚地板就成為落塵區。
▲大門與廚房間的圓弧牆其實是儲藏間,將尖銳邊角作柔化設計後,恰可成為餐桌的倚柱、更具安定感。

#儲藏間
▲為擴增電視牆幅寬,將衛浴門片作隱藏門設計,也可成為餐桌的美麗背牆。

#隱藏門
客廳&兒子房
雖然客廳空間無法實際放大,不過透過客餐區的合併規劃,加上電視牆左接轉進臥室的弧型門框、右連衛浴隱藏門,讓主牆幅寬變寬、客廳空間感也放大了;另外,左側兒子房用玻璃拉門取代隔間,引入採光、也放寬格局。
▲主牆整合了左側門框與右側衛浴隱藏門來放大格局外,中間還內嵌格柵設備櫃來滿足收納機能。

#設備櫃
▲由於客廳不臨窗,將沙發左側的兒子房門牆改為玻璃拉門,讓採光進入、也放寬格局。

#玻璃拉門
▲小而明快的兒子房配有單人床、衣櫥與書桌,拉門則採用小冰柱玻璃來確保有適度隱私性。

#兒子房
臥室
衡量屋主一家四口都已成年,至少需要一間雙人與二間單人房,所以分別在客廳前方與左側規劃2間單人房,而左斜角較大空間則是雙人房,房內依各自需求配置桌面、櫥櫃與床位,滿足日常生活需求。
▲客廳前的單人房將床位靠牆安排,再利用動線兩側配置牆櫃與化妝桌,讓每吋空間都能好好利用。

#化妝桌
▲位於邊間的較大房間以雙人床搭配淡奶茶色床頭櫃與牆色,呈顯柔美氛圍。

#奶茶色
▲雙人房床尾配置牆櫃衣櫥與開放吊掛衣櫃,左側有玻璃吊櫃可收放包包,下方則有預留插座可自行購置化妝桌運用。

#雙人房
設計細節
屋主很在乎客廳主牆窄且受兩間房門干擾,所以設計師在整合電視牆時,先把兩間房的門片做轉向變更設計,避免主牆因房門而被切割破碎,因此也形成電視牆左側的內玄關以及圓弧門框端景。
▲電視牆後的房間門轉向後形成內玄關格局,牆面以特殊塗料搭配弧形門框、壁燈來營造視覺端景。

#特殊塗料

▲除了弧形門框外,公共區天花板也作弧型收邊的細節設計,搭配柔和奶茶色調讓整個家更舒壓療癒。
#弧拱門框
裝修預算規劃與避坑清單
含Excel模板,限時0元領取
【裝潢清單】
空間 | 類別 | 品牌及型號 |
玄關 | 義大利 | |
客廳 | 舒然銘板 | |
木紋磚 | 國產 | |
電視牆塗料 | 七岩 | |
油漆 | 得利 乳膠漆 | |
沙發牆跳色 | 得利 50YR 47/057 | |
壁燈 | 業主自備 | |
沙發.茶几.餐桌 | 業主自備 | |
廚房 | 鋁框拉門 | 海棠花玻璃 |
臥室一 | 臥榻 | 系統櫃 |
鋁框拉門 | 小冰柱玻璃 | |
床頭跳色 | 得利 40YY 60/103 | |
臥室二 | 床頭壁燈 | 業主自備 |
衣櫃 | 系統櫃 | |
床頭跳色 | 得利 74YR 68/064 | |
臥室三 | 衣櫃.書桌.床頭板 | 系統櫃 |
牆壁挑色 | 得利 10YY 59/111 |
設計師問答
Q1.16坪在規劃三房後仍擁有舒適且不窘迫的空間感,如何達成?
A1.屋主對於風格雖沒有特別指定,但是為了讓小空間減少壓迫感,我們選擇以淺色調的特殊塗料牆、素色系統櫃板以及不要太複雜紋路的木地板等材質設計,讓空間畫面的干擾性降低,這些設計都能讓小宅有放大效果,再適度加入弧線以及透光玻璃等元素,就能圍塑出舒適療癒氛圍。
Q2.小房間該如何設計才能發揮出最大的坪效?
A2.這個案例因為實際坪數只有16坪,又一定需要三間房,在房間坪數有限的的情形下每一吋空間都不能浪費。特別是兩間單人房都是依據房間的空間條件來訂製單人床榻,且將床榻靠牆而立,如此可以讓出更大空間及牆面,接著在動線不受到影響的前提下,在床頭旁與床尾配置出更多櫥櫃與書桌等完整機能。







