想瞭解服務流程
丈量費用多少
想瞭解收費方式、收費節點
裝修預算怎麼抓
設計方案包含家具規劃嗎
該在什麼時候找設計師
設計師會合理控制預算嗎
找設計師前要做什麼準備
有案例平面圖嗎
設計費怎麼收
想瞭解服務流程
丈量費用多少
想瞭解收費方式、收費節點
裝修預算怎麼抓
設計方案包含家具規劃嗎
該在什麼時候找設計師
設計師會合理控制預算嗎
找設計師前要做什麼準備
有案例平面圖嗎
設計費怎麼收
一、前言
從淡水搬到林口,最初是為了體恤太座上下班通勤時間太長,還有我們很常來這附近吃某家餐廳,想說搬過來這邊好像不錯?!後來誤打誤撞找到很適合的預售屋,格局不用改、採光很OK(配有大落地窗很適合我們家兩隻貓躺著曬太陽),雖然房子比前住處小,但感覺好好整理過會舒適度大勝,加上我們是大屋換小屋,還是需要做一些收納規劃等等,因此興起找設計師的念頭。
原屋況▼


裝修預算規劃與避坑清單
含Excel模板,限時0元領取
二、找設計師的過程
在交屋前約一年多開始找設計師,發現好多設計公司接案預算門檻都太高,但我們家坪數真的不大,我和太座也不喜歡複雜的裝潢,而且要考量購買家電、設備、家具之類的費用,想想就覺得有點猶豫,幸好最後在朋友的大力推薦下決定和睦月設計簽約,朋友家是給他們規劃的,成果很棒,而且預算跟我們差不多,風格也是走簡約舒適感,除了朋友的信心加持,和設計師溝通時感覺到他們人很好、態度相當誠懇,流程都解釋得很清楚,整個非常放心!
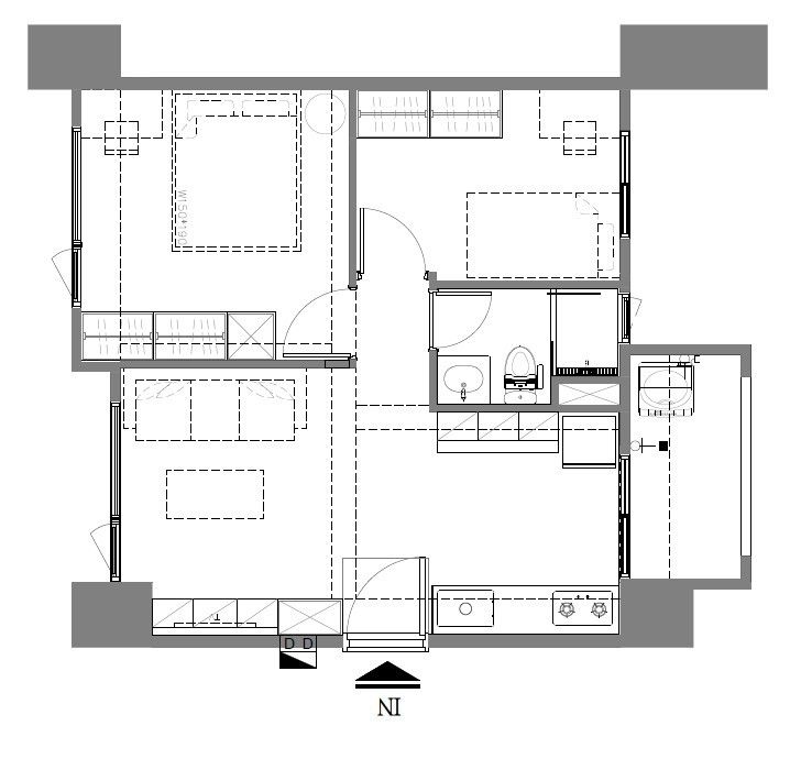
三、需求與平面圖
Before

After


完整裝修工具包(清單+話術+模板)已為你準備好!
我們的需求:
●收納:大門旁邊增設電視櫃和鞋櫃、廚房電器櫃、主臥和次臥增設衣櫃與展示櫃
●風格:簡約淺色系
●設備:全熱交換器、吊隱式除濕機+冷氣
●其他:貓門、木地板
四、完工美圖分享
客廳
建商給的格局大致上都很喜歡,但是有個硬傷是沒有留玄關空間,而且這邊距離不夠做和大門90度角的屏風設計,最後是做與電視牆平行的落地收納櫃+鞋櫃,其實這樣規劃,鞋子和外出用品比想像中來得夠放,旁邊也放得下55吋電視,對我們來說還是蠻寬敞的,而且又不會擋住採光。


除了客廳有大面落地窗,對面還有廚房外的工作陽台,整個公領域採光都非常好,而且以白色、淺色系為主的裝潢風格讓整個家又更明亮了,人住起來舒適,兩隻愛曬太陽的貓也開心。


在決定家具軟裝時,我們有按照自己喜歡的款式初步挑選,但是顏色都有請設計師的建議,所以搭配起來很和諧。


當初想說家裡空間小,如果地上又放很多家電一定很占位置,因此把冷氣和除濕機通通藏到天花板,都做了吊隱式,而且我們有安裝全熱交換器,整個家蠻通風透氣不需要電風扇,很慶幸做這個決定,不僅功能到位,看起來又超清爽整齊!

廚房
在裝潢前我們有選好家電型號,讓設計師規劃相對適合的收納櫃尺寸,每一格的空間看似平凡,其實都是經過精算的,電器櫃下方會拿來收納備品和貓咪的東西。


臥室
臥室配置落地的大衣櫃,側邊有做展示櫃,擺點照片、裝飾讓整體更溫馨,櫃子也不會感覺太壓迫。


貓門的位置,本來想說要像前一個家那樣,完工後再自己挖洞加工,結果設計師竟然說這可以直接給他代勞就好,最後討論是在客廳與臥室之間的牆壁下方開了一個貓門,給專業的弄果然好看許多!

木百葉是我個人喜好,很喜歡這種陽光透進來的氛圍,而且這樣貓在房間也能曬太陽。

設計師在床頭跳了一個算是淺灰綠色,有點形容不上來這個顏色,但是很特別,我和太座都超滿意。

五、完工後的心得
買上一間房子的時候,為了要省錢自己找了木工、水電、冷氣等不同工班來做簡單裝潢,油漆批土則是我DIY,結果自己花大把時間監工超累,油漆還刷得哩哩落落,而且工班之間有一些統籌不善的地方,導致成果不理想,過了幾年越看越不滿意,又找系統櫃商重做,回想起來不如一開始就找專業的設計師,算下來根本沒省到多少,就當學一課,這次找設計師而不是找系統櫃商來做,是想要家裡再有設計感一點,完工後是真的很滿意!
原本很擔心發生像以前自己裝潢那樣工班素質不佳,整體施工環境又很髒亂的狀況,剛開工偶爾會去巡一巡,之後發現這些都是白擔心,每一次去現場都收得很整齊,更不用說會有垃圾、菸蒂等等,完全沒有發生過,工班素質有夠好,而且每天設計師都會拍照傳line給我看施工進度,做了哪些項目交代得清清楚楚,所以我就再也沒去過了,一切放心交給設計師!到了工程尾聲,因為想到第一次裝潢的經驗,本來打算全部結束後找人再來細清一次,但沒想到設計師的細清弄得超乾淨,意外又幫我省了一筆錢。
這次的裝潢體驗真的很棒,花費和我們當初給的預算差不多,設計品質超讚,和設計師又很合拍,他完全依照我們的需求去規劃,不會強迫我們要照他的設計走,給的建議又很中肯,總之滿分推薦!







