想瞭解服務流程
丈量費用多少
想瞭解收費方式、收費節點
裝修預算怎麼抓
設計方案包含家具規劃嗎
該在什麼時候找設計師
設計師會合理控制預算嗎
找設計師前要做什麼準備
有案例平面圖嗎
設計費怎麼收
想瞭解服務流程
丈量費用多少
想瞭解收費方式、收費節點
裝修預算怎麼抓
設計方案包含家具規劃嗎
該在什麼時候找設計師
設計師會合理控制預算嗎
找設計師前要做什麼準備
有案例平面圖嗎
設計費怎麼收
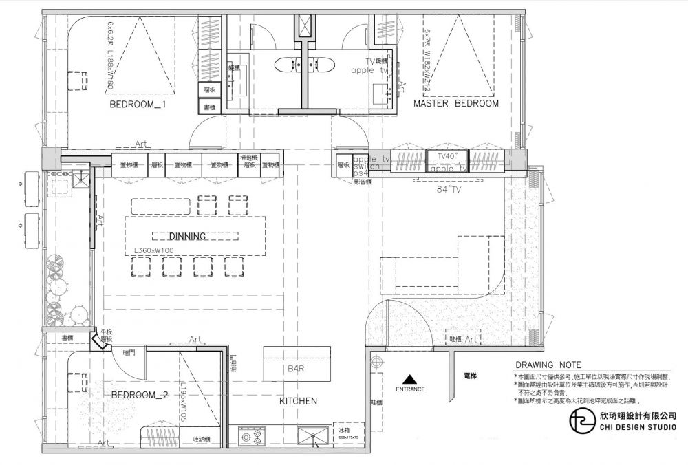
【案例背景】
屋主介紹
屋主夫婦為了因應三個孩子成長過程中的空間需求,購置45坪的新宅,希望能重新規劃出既寬敞又富有家庭凝聚力的生活場域。屋主特別重視公共空間的開放性與連結性,期望以一張大餐桌串聯日常作息,讓閱讀、作業與親子互動自然發生於家中核心位置。同時,也期望最大限度引入前後採光與戶外綠意,使室內空間在視覺與感受上更加通透明亮。欣琦翊設計在充分理解屋主期待後,重新調整格局動線,打造出一個兼具溫暖氣氛與實用機能的舒適新居。
屋主需求
1.強化公共空間,以大餐桌為核心,提供閱讀、作業、親子互動的場域。
2.將戶外綠意與自然光引入室內,讓家有延伸感與呼吸感。
3.重視收納與動線整合,保留整潔、開闊的空間感。
帶走上百屋主驗證的《裝修最全指南》,簡訊免費發您
【設計方案】
Before
原始問題:

1.原格局動線破碎,走道佔比過高,影響公共空間的完整性。
2.廚房原位狹小且動線不便,難以支援完整生活機能。
3.老屋結構樑柱繁多,需巧妙處理避免壓迫感。
After

設計調整:
1.大幅挪動廚房位置,解放前後採光,將走道融入公共空間。
2.公領域以開放式大餐桌串聯客廳與餐廳,成為家庭活動核心。
3.樑位整合搭配水平線條,弱化舊屋天花板壓迫感。
【空間設計】
玄關
進門以地坪材質變化劃分內外界線,透過弧形線條畫出落塵區鋪上磁磚與客廳木地板做出區隔。玄關區域配置手工收納櫃與鏡面,賦予置物與穿鞋功能,增加進出便利性,同時打造迎賓儀式感。
#弧形落塵區#磁磚#WOW Furniture鏡子#Handi Rococo玄關櫃

客廳
客廳以水平線條整合樑位,天花不刻意包覆,保留高度延伸感。電視主牆以淡灰濁色為基調,搭配溫潤木質地坪,營造柔和沉靜的視覺氛圍。淺米白色沙發與自然材質茶几,則維持氛圍輕盈感。而低背沙發讓空間視覺自然延展至全室區域,大面窗引入戶外綠意,使室內外視覺穿透,打造明亮開闊的休憩場域。
#整合樑位#灰濁色電視背牆
#大開窗#隱藏收納


餐廳
屋主訂製超長餐桌為核心,可容納6到8人同時使用,讓家人能在日常用餐、閱讀、寫作業、談天互動時自然聚攏,成為促進親子交流與情感連結的重要場域,因此以開放而連貫的設計,使光線、動線與家人關係流動無礙。而溫潤木質桌面搭配鐵件結構支撐,兼具柔和視覺與穩固性,餐桌旁牆面刷上柔和灰綠色,則呼應自然採光與戶外景色,營造出沉靜舒緩的用餐氛圍。
#灰綠色立面#訂製餐桌
#隱藏開放櫃體#長條鐵件吊燈


臥房
臥室色調延續公共區域,以淡雅灰階與自然材質鋪陳,呈現沉靜溫潤的氛圍。空間以睡眠機能為主軸,僅設置基本衣櫃,未額外配置書桌,保留充分留白,讓空間未來可隨著孩子成長與需求彈性調整,維持純粹、舒展的生活感。
#簡約留白#灰階色調

2025最新最全裝修省錢避坑指南免費領!
【裝潢清單】
空間 | 類別 | 品牌及型號 |
全室 | 地板 | |
玄關 | 矮櫃家具 | Handi Rococo手工家具 |
玄關 | 鏡子 | WOW Furniture進口家具 |
客廳 | 沙發 | 訂製家具 |
客廳 | 茶几、立燈 | 家具選物店挑選 |
餐廳 | 餐桌 | 訂製餐桌 |
全室 | 油漆 | Benjamin Moore 進口塗料 |
【設計師問答】
Q關於這個空間最滿意之處為何?A:客餐廳的整合與大餐桌共享空間的完成度。成功讓屋主一家能在開放又溫暖的場域中互動與生活。
Q:有哪些裝修挑戰?A:最大挑戰是大幅挪移廚房位置與舊屋管線排除,同時要維持原有天花高度不壓迫,考驗施工整合與細部設計。
Q:老屋裝修建議?
A:必須優先確認漏水與結構問題,並選用防潮材料;排水與電路配置應全面重整,確保未來使用與維修便利。








