隨手换装,輕鬆感受装修效果
想瞭解服務流程
丈量費用多少
想瞭解收費方式、收費節點
裝修預算怎麼抓
設計方案包含家具規劃嗎
該在什麼時候找設計師
設計師會合理控制預算嗎
找設計師前要做什麼準備
有案例平面圖嗎
設計費怎麼收
想瞭解服務流程
丈量費用多少
想瞭解收費方式、收費節點
裝修預算怎麼抓
設計方案包含家具規劃嗎
該在什麼時候找設計師
設計師會合理控制預算嗎
找設計師前要做什麼準備
有案例平面圖嗎
設計費怎麼收
一、前言-換殼築巢背景
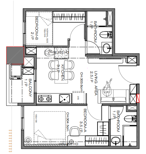
這是一間14坪的房子,當初因為我想要一個人住,目標是尋找靠近老家、交通便利的個人空間,偶然的機會下找到新北的新建案,雖然是小坪數,但最重要的是格局是方正的,也是我個人喜歡的類型,加上離我以往熟悉的生活圈不遠,生活機能也相當完善,綜合考量預算、地點和格局後,我很快就決定買下這間房子。
裝修預算規劃與避坑清單
含Excel模板,限時0元領取
二、設計需求及裝修過程
裝修準備:格局圖面


重要需求:沒有壓力的個人放鬆空間!
室內設計主要是找來禹槿空間製作幫我針對基礎格局進行客變。我是忠實的棒球迷,因此最希望可以有一面開闊的電視牆可以舒適地看電視,下班後可以擁有放鬆的空間,所以新家對我來說最重要的是要有放鬆的客廳。但一開始建商將浴室門設計在電視牆的旁邊,電視牆太小,當時我有點擔心,會不會沒辦法擁有理想中的客廳?設計師提出了一個完美的解法——將浴室門改到另一側,雖然會稍微縮小客臥的空間,但客廳瞬間變得開闊許多,讓我非常驚喜。
考慮到大電視的擺放,也預留了展示架,讓我可以把本來珍藏的棒球簽名球都展示出來。


三、裝修風格、家具配置
新家的風格我很明確希望以柔和的奶茶色系、北歐風為主,我覺得空間整體感很重要,家具是我自己挑選的,但考慮到搭配,沙發的顏色我則是和設計師討論過才決定。設計討論的過程我感受得到設計師的用心,她不只是提供專業建議,也細心聆聽我的想法來符合我的需求。例如為了營造出溫暖舒適的氣氛,設計師先用軌道燈做間接燈光、然後用半透光的玻璃門作為客臥的隔間,保有隱私的同時也讓光線穿透,空間感更為通透。不同空間搭配不同窗簾:主臥窗簾選用了遮光布,客廳用透光窗簾引入自然光,客臥則加裝了百葉窗,兼顧採光與隱私。


四、個別空間的機能:設計的細膩呈現:風格、機能與空間感的平衡
機能方面,我最重要的需求是可以在小坪數中做到最大收納,設計師 Elaine 幫我在許多地方都做了加強,包括收納櫃體做到最上層等。我非常喜歡的是客臥的掀床,下方可以收納大型行李箱等不常用的東西,還有廚房的冰箱上方和排油煙機上方都增設了吊櫃,可以最大限度進行收納。
客廳部分最重要的是電視牆的擴充與展示架設計,主臥則強調收納,衣櫃與附加的鐵架設計,讓空間不會太壓迫。客臥使用玻璃門作為隔間,搭配百葉窗,兼顧採光與隱私。廚房透過吊櫃的設計,增加收納空間,而拱形門洞的選擇則為客廳與廚房的視覺做了調整,使整體設計更加協調。
為了分別客廳和廚房的空間,原本我想要做一道玻璃拉門,但 Elaine 反而推薦了一道拱形門洞作為軟性間隔,柔和的弧線設計不僅柔化了空間線條,也剛好遮擋從客廳往廚房看時會直接看到的冰箱,視覺更為協調,這個設計讓我很驚喜。




玄關旁的牆壁設計師則運用了洞洞板,方便我懸掛外出衣物或包包。洞洞板下方則設計了小櫃子,方便放置鑰匙等小物,充分利用了入門空間。


為了解決主臥的衣物收納櫃不多的狀況,Elaine最後幫我在主臥進門處加了一個簡約的鐵架,除了方便我隨手掛放外套,也不會因為太大的櫃體影響空間的寬闊度,美感與實用性兼具,現在每次看到這個設計都覺得超喜歡。





五、完工入住及感想: 專業、細心且貼心的設計夥伴
從客變過程到設計完工,整個過程都十分順利,讓我可以安心放心地交給他們團隊處理。Elaine 最棒的地方就是對細節的掌握,從空間格局的調整,到燈光氛圍營造、材質選擇,都以實用為出發點,沒有刻意堆砌華麗的設計。
雖然還沒有正式入住,假日我也會特別到新家來看看電視,每次來到這裡都覺得很舒適,現在感覺有個可以好好放鬆的空間了。這次的裝修非常感謝「禹槿空間製作」的設計師 Elaine,她在設計過程中展現了極高的專業與細心,充分理解我的需求,也在有限的空間幫我設計出意想不到的美感。
最終完工的成果更是超出期待,讓人滿意,打造了一個真正符合我生活習慣和喜好的理想基地。真心推薦給需要客變與設計服務的朋友,你們值得選一個值得信賴的團隊,擁有最理想的家!











