拍张客圖,AI極速换装,1分鐘出圖
想瞭解服務流程
丈量費用多少
想瞭解收費方式、收費節點
裝修預算怎麼抓
設計方案包含家具規劃嗎
該在什麼時候找設計師
設計師會合理控制預算嗎
找設計師前要做什麼準備
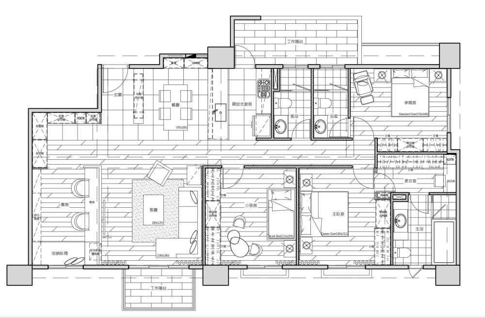
有案例平面圖嗎
設計費怎麼收
想瞭解服務流程
丈量費用多少
想瞭解收費方式、收費節點
裝修預算怎麼抓
設計方案包含家具規劃嗎
該在什麼時候找設計師
設計師會合理控制預算嗎
找設計師前要做什麼準備
有案例平面圖嗎
設計費怎麼收
【案例背景】
屋主需求
1.打造開放式餐廚,方便親子互動與家庭交流。
2.配置三房+書房,空間保有小孩未來成長彈性。
3.減少視覺阻隔與走道比例,提升空間流通與光線穿透。

完整裝修工具包(清單+話術+模板)已為你準備好!
【設計方案】

Before原始問題:
1.原封閉廚房及多餘隔間造成空間壓迫與動線破碎。
2.長型屋比例導致視覺狹長,缺乏中心聚焦。
3.走道過長佔比過高,壓縮公共空間使用彈性。

After設計調整:
1.拆除原始廚房隔間,改為開放式一字型廚房+中島與餐桌。
2.保留三房配置,增設半開放式書房與多元機能使用彈性。
3.透過天花造型、地坪材質與層架配置,引導動線與場域感,並以淺灰與清水模語彙淡化屋型比例感。
【空間設計】
玄關
入口處以鐵件層架與懸空櫃體取代傳統鞋櫃,打造視覺穿透與輕盈收納機能。層架結合開放與抽屜空間,方便擺放隨身物品。落塵區與餐廚區採用磁磚地坪與客廳木地板形成材質轉換,建立機能分界與入門儀式感。
#鐵件層架#穿透感
#落塵區#磁磚#界定


客廳
客廳鋪設深色木紋地板,搭配淺色木皮天花與白色立面收納牆,形塑明暗有致的空間層次。淺灰色L型沙發置於牆側,搭配淺色茶几與跳色抱枕,營造沉穩放鬆的家庭主場域。電視牆巧妙界定半開放式書房,整體風格現代簡約,並以深淺對比強化視覺聚焦,讓長型格局具有節奏與層次。
#深色木地板#淺色木皮天花
#大理石紋電視矮牆


餐廚
原封閉廚房打除後設計為一字型廚具搭配中島吧檯,加上長桌形塑完整的開放式餐廚場域,整合備餐、用餐與互動功能。天花以下降包覆手法隱藏吊隱空調設備與管線,並透過線條減輕量體感,維持視覺輕盈。地坪則延續玄關磁磚鋪設,兼顧清潔維護與場域劃分。透過開放格局的設計語彙,使客餐廳成為家人日常交流與情感維繫的核心地帶。

#中島吧台#造型吊燈
書房
書房位於客廳前方,以電視矮牆劃界,保留開放感同時避免視線直接穿透。配置臥榻與開放櫃體,可作親子共讀、收納或臨時辦公之用,同時與客廳之間保有距離感,形成安靜而實用的複合場域。
#半開放式書房#臥榻
#懸空收納櫃#共享長桌


臥房&更衣室
主臥延續空間主軸的木質調與灰白色系,床頭背牆以淺木皮大面包覆,搭配深色地板跳出層次。更衣室連接主臥與主衛浴,配置大量抽屜與吊掛空間,滿足收納同時構築流暢而隱私的主臥動線。
#淺色木皮床頭背牆#深色木地板
#更衣室#大量收納#串連主臥及浴室


【裝潢清單】
空間 | 類別 | 品牌及型號 |
全室 | 地板 | 超耐磨木地板 |
全室 | 櫃體 | 系統櫃+木作 |
【設計師問答】
Q關於這個空間最滿意之處為何?
A:我最滿意的是整體空間的線條感呈現。從玄關進來望向客廳、再從客廳看向餐廚,各角度都能展現設計上對線條的掌握與延伸,包含天花、立面與地坪的分割,這是令整體空間視覺統一又有層次的關鍵。
Q:有哪些裝修挑戰?A:玄關櫃的設計討論最久,如何在收納實用性與空間通透感中取得平衡,是一大挑戰。結構上也需考量鐵件層板的穩定性與地震耐久性。另外是天花板與吊隱空調的整合,既要隱藏設備又要兼顧美感與高度。
Q:長型屋裝修建議?
A:長型屋規劃時要特別注意空間的集中性與串聯性,建議相同性質的空間(如客餐廳)要統整設計、避免零碎切割,才能提升空間感與光線流動。此外可預先規劃材質分區,例如使用地坪材質切換來界定機能,也能兼顧實用性與視覺層次。








