隨手换装,輕鬆感受装修效果
想瞭解服務流程
丈量費用多少
想瞭解收費方式、收費節點
裝修預算怎麼抓
設計方案包含家具規劃嗎
該在什麼時候找設計師
設計師會合理控制預算嗎
找設計師前要做什麼準備
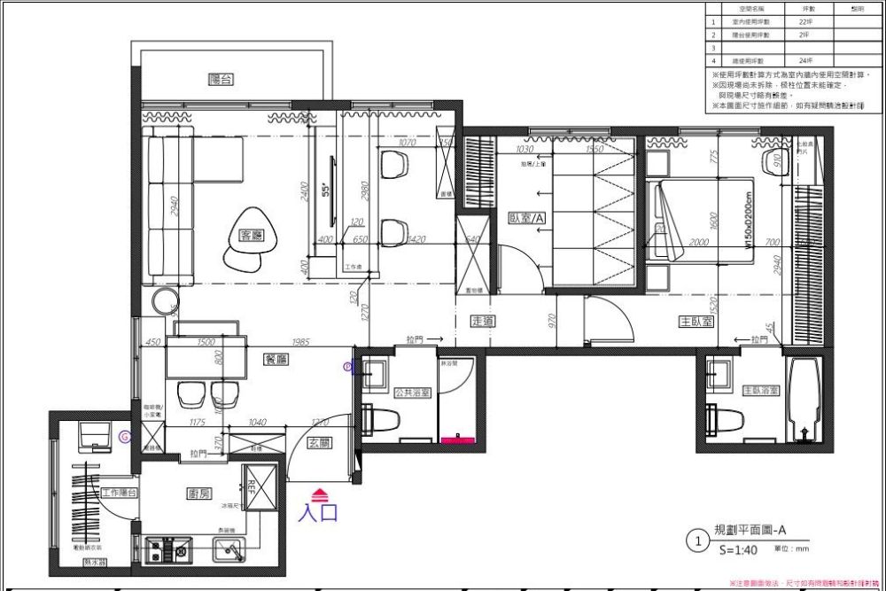
有案例平面圖嗎
設計費怎麼收
想瞭解服務流程
丈量費用多少
想瞭解收費方式、收費節點
裝修預算怎麼抓
設計方案包含家具規劃嗎
該在什麼時候找設計師
設計師會合理控制預算嗎
找設計師前要做什麼準備
有案例平面圖嗎
設計費怎麼收
Part 1|關於這個家
「忙碌了大半輩子,孩子轉眼到了能獨立的年紀,也該為自己的生活打算!」從事銷售業務工作的屋主,大半人生都要天天與時間賽跑,而轉眼臨屆退休的他,選擇放慢腳步,找上築空間設計團隊,想打造一個清新、簡約專屬於自己的家。


完整裝修工具包(清單+話術+模板)已為你準備好!
Part 2|空間規劃
這棟住宅已有30年歷史,原有的格局不僅陳舊且光線不佳,設計團隊從基礎工程開始翻新,更新水電管線,強化結構安全。考量到屋主平日工作繁忙,團隊採用「簡約即療癒」的設計理念,捨棄繁冗裝飾,以留白手法延伸空間感,並嵌入MUJI「純粹、實用與舒服」的生活詮釋,全室與窗相呼應的採光優勢,讓光和風輕鬆穿梭,為整體空間注入柔和而穩定的情緒氛圍。
Before

After

Part 3|空間設計亮點
玄關│俐落X高收納機能規劃
玄關以極簡手法設計,一側安排穿衣鏡與鞋櫃,另一側以中段平台連結餐廚區打造日常收納,雙邊機能明確、視覺平衡。地坪使用不同材質界定分野,內外空間自然過渡,形成入戶後的過濾區,也將外界塵囂隔絕。


客廳│不做滿的隔間牆,打造輕盈視覺
捨棄厚重隔間,設計團隊透過一面兩用的機能量體牆,結合電視牆櫃與書房背牆與書桌,既是空間界定又賦予多重機能,不做滿的高度大大減少視線阻隔。搭配淺木質與溫潤白色構成主基調,搭配輕柔紗簾讓自然光過濾進入,整體呈現清爽、柔和的視覺效果。


餐廚│簡化櫃體線條,打造寬敞舒適空間感
開放式格局將餐廳區與客廳連貫,收納以立面形式整合,櫃體切齊空間輪廓線隱而不顯,保有空間整潔感。為了因應使用彈性,廚房設計了滑動拉門,必要時可區隔氣味或聲音,維持生活質感。



臥房│單純色調與簡約線條
私領域主打安靜與放鬆。設計團隊選用呼應光線的自然雲灰色為基底,搭配線條簡約的衣櫃門片,表現柔和且具療癒感的休息氛圍。床頭背牆以帶有漸層紋理的木質板,去除過多裝飾,降低視覺干擾,放大睡眠品質。


多功能小孩房│清新佈局嵌入隱藏收納
多功能小孩房延續全室的輕北歐語彙,以淺木質搭佐灰綠色牆面,營造出溫潤而寧靜的氛圍。設計上運用架高地坪,整合臥榻與抽屜機能,將大量收納巧妙隱藏其中。

浴室│磚材紋理搭配
選用灰白調為主的數款磁磚,營造層次與視覺節奏。牆面帶有自然大理石紋質感,搭配淺木紋櫃體與銀白五金,視覺協調又具都會質感,實現簡潔清新的洗浴體驗。



書房│半高牆XMUJI木櫃,創造高機能光感小空間
運用一道俐落的半高書桌牆,為這個共享空間劃出一隅專屬思緒沉澱的角落。不做滿的設計成功區隔出書房機能,也保留穿透視野與空間延伸感。書桌與櫃體採用MUJI設計語彙,以自然木紋搭配純白立面,展現樸實溫潤的質感。



Part 4|築空間設計的療癒宅設計理念
累積多年豐富實務經驗,築空間設計-ALEX總監訪談中表示,「療癒」其實沒有標準答案,它是一種貼近人心的設計思維。真正的療癒宅不是花俏、昂貴或裝修堆疊的成果,而是透過了解屋主的生活脈絡與情緒需求,給出真實適合的設計解答。對這個案件而言,MUJI風的中性主調與使用簡潔語彙塑造的空間感,呼應應了屋主對於平靜自主生活的願望。









