穆刻設計 (Mk空間設計)
收藏
分享
已做裝修業登記
設計費享折扣
提供樣板間參觀
承接局部預算
一年內保固
接客變案
建材陪同選購
專人監工
深度傾聽需求
驗收交屋
挑選傢俱
3.8
一般
全部評價
  • 接案100萬起整屋費用
  • 6,000 元/坪起設計費用
  • 6萬/坪起新成屋裝潢
  • 10萬/坪起老屋翻新裝潢
公司地址:台中市東區樂業一路85號1樓
3家分公司

查看全部

業主評價

全部評價 · 4

100業主真評價規則

3.8
  • “設計風格符合需求”
  • “丈量專業”
  • “服務、效率等各方面OK”
  • “主動回覆”
  • “聯絡效率高”
  • “報價符合需求”
  • “服務很好”
  • “設計師很仔細”
  • “回覆積極”
有圖片
100簽約
100諮詢
100會員
4.3
2026.01.29
設計風格符合我的需求,整體服務體驗都還不錯,設計師很仔細,回覆積極、日常溝通態度好。
100簽約
100諮詢
100會員
真屋實拍
3.5
2025.12.03
離家較近,而且報價還可以哦,預算符合需求,服務也很好,比較有耐心,目前接觸下來是不錯的,還要看下後續的合作。
評價圖片評價圖片

設計團隊

設計理念

懷著設計夢想七字頭的新秀設計團隊,非傳統本科系出身卻靠著獨特的思維專業服務領域 顛覆以往學術上的設計方向走出Mk特色,整合實務與設計的語彙理念創造〔人.空間.家〕
預約設計師 為你提供費用或裝潢問題解答
請設計師聯絡我

施工動態

穆刻設計

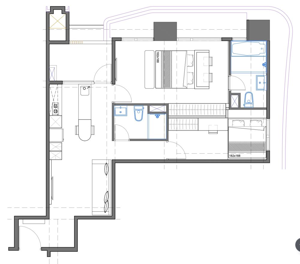
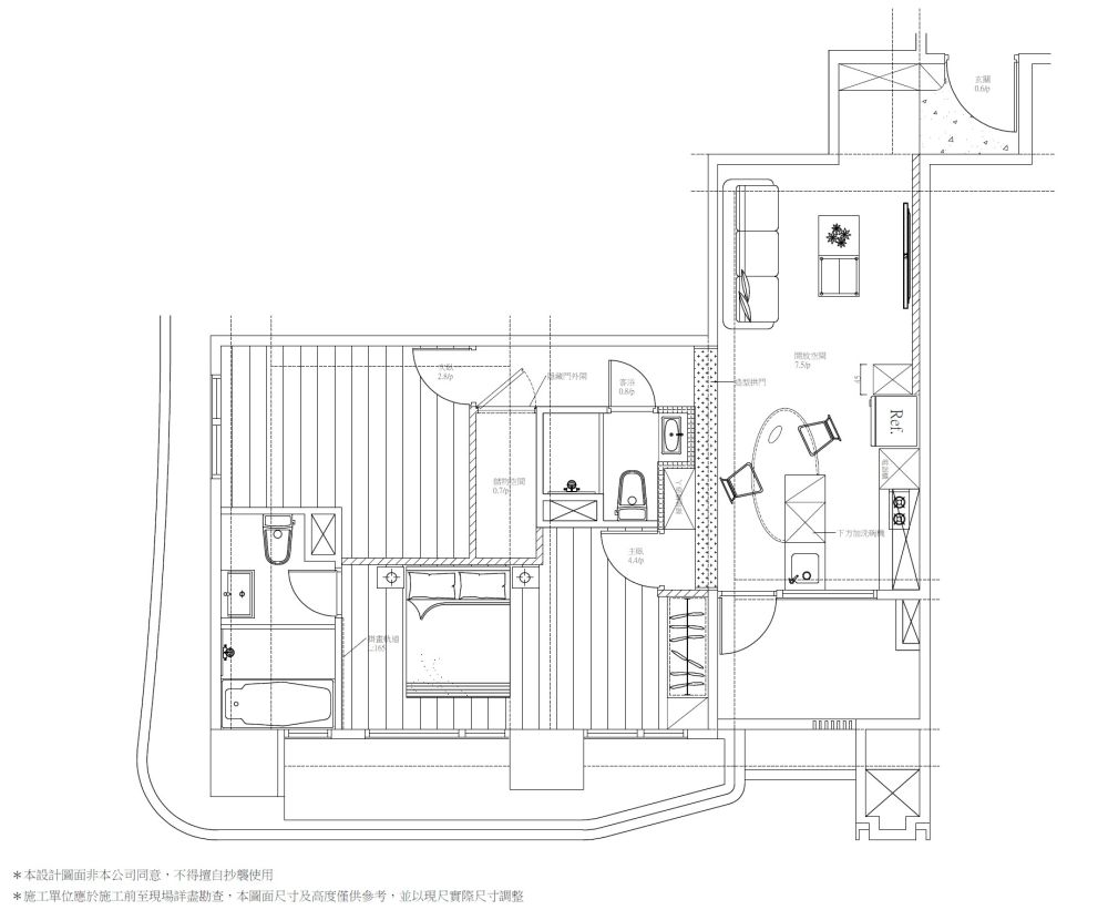
新北市 2房1廰2衛 15坪

查看案場詳情

前期準備 2025-03-26 更新

(穆)工防護 (刻)不容緩 預約丈量:@vcb9703a 設計裝修找Mk,服務品質都Ok #穆刻設計 #助居者

  • 前期準備
  • 前期準備
  • 前期準備

穆克設計

台中市 1房2廰2衛 30坪

查看案場詳情

完工驗收 2024-10-10 更新

告訴您一個好消息: 我們【Mk台中東區店】已經開始試營運了! 也剛好趕上台灣生日,雙十節 祝福台灣生日快樂~很榮幸可以在這個日子跟台灣一起慶祝!!! 穆刻:Mk台中東區店 地址:台中市東區樂業一路85號,歡迎大家來逛逛~也剛好趕上台灣生日,Mk推出中部預約丈量福利,祝福台灣生日快樂,大家一起慶祝吧! ▲前3位預約丈量,免收丈量服務費 官網:https://www.mukespacedesign.com/ 期待在台中店見到你們喔!

  • 完工驗收