7坪 • 一房一廳的極致運用——小空間也能擁有美好生活!
總預算*萬
案例解析
📝案例介紹
(回訪) 7 坪微型住宅的溫度 🌿 一房一廳的極致運用
在不滿 7 坪的空間裡,要如何裝載一對頂客族夫妻的生活藍圖?這或許是我們設計過坪數最小的住宅案,但我們始終相信:坪數有限,生活品質卻不應妥協。✨
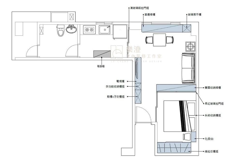
這場設計的核心在於「光影通透」與「坪效釋放」。整體的視覺風格以清新簡約為主軸,我們選用純白與淡灰作為基調,並搭配柔和的豆沙綠布藝,在視覺上有效放大空間感。為了在極小空間內拉出清晰的格局,我們捨棄了壓迫感重的實牆,改以精緻的長虹玻璃拉門作為場域分界。長虹玻璃那種「透光不透人」的垂直紋理,能將日光溫柔地過濾並延展至全室,不僅消弭了小空間的擁擠感,更為家披上了一層柔霧般的細緻質感。☁️
考量到小宅最關鍵的機能問題,我們在玻璃拉門上方特別預留了簍空設計,讓冷暖氣與光線能順暢地在客廳與臥室間流動。而靠窗處的規畫更是點睛之筆,透過多功能的臥榻設計,將沙發、用餐、收納三大功能整合,讓每一寸地坪都發揮最大價值,創造出一個既能靜心閱讀,也能共享美餐的溫馨角落。🍃
空間雖小,收納卻是重中之重。我們利用臥室內部的櫃體與入口處的系統收納,打造出井然有序的儲物系統。屋主本身是一位非常自律的收納達人,對美感也有獨到的堅持,在雙方的互相信任與溝通下,我們成功讓「實用」與「美感」在日常中完美併行。🪑
一年半過去了,最讓我們感動的是屋主入住後的回饋。每逢節慶的溫暖問候,以及不時分享的空間美照,都讓我們看見這個家如何被細心呵護與珍惜。這不僅是一個室內設計案的完成,更是一段美好緣分的延續,證明了只要有心,即使是 7 坪的空間,也能住出無限大的幸福感。🛋️
樂澄空間規劃設計
LE-CHENG SPACE DESIGN













