一鍵同款設計
格局實景圖
廚房(5)
玄關(1)
客廳(3)
餐廳(2)
臥室(1)
衛浴(2)
衣帽間(1)
其他(5)
心墨設計
追蹤FB
微型 X
150萬
預算
混搭風
風格
毛胚屋
屋況
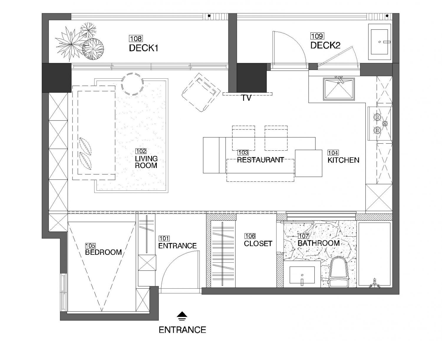
10坪
坪數
1房2廳1衛
格局
一鍵同款設計
空間效果
測一測我適合哪種風格?
相關作品推薦
同公司
同風格·混搭風
同預算 · 150萬