算同款報價算同款報價
分享
下載
一間好墅

未披露

預算

日式風

風格

自地自建

屋況

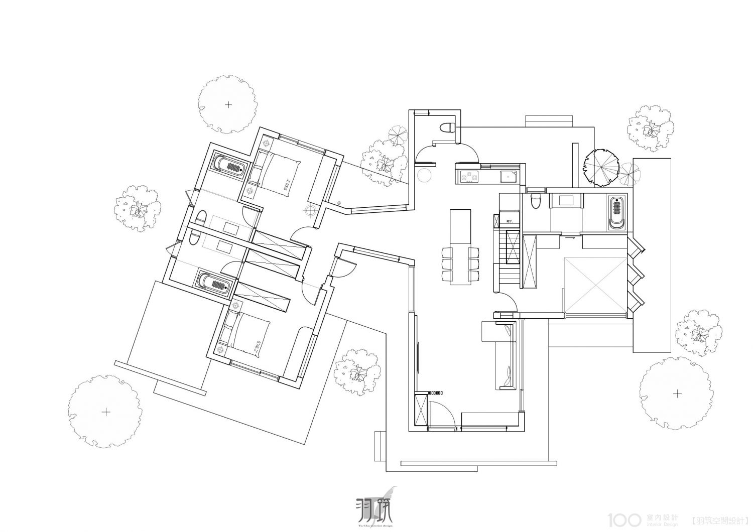
3房2廳2衛

格局

羽筑設計 已做裝修登記排名

22項設計大獎
141套作品
11篇開箱
自營工班
提供樣板間參觀
承接局部預算
一年內保固
接客變案
專人監工
完工保固
設計師1對1溝通
簽訂合約保障
驗收交屋
整屋費用:接案30萬起
設計費用:4000 元/坪起
新成屋:1萬/坪起
毛胚屋:1萬/坪起
老屋翻新:1萬/坪起
預售屋:1萬/坪起
中古屋:1萬/坪起
商業空間:1萬/坪起
局部裝修:1萬/坪起
自地自建:1萬/坪起
接案區域:六都可接案
請設計師聯絡我
線上諮詢
空間效果
測一測我適合哪種風格?
loading
loading
loading
loading
相關作品推薦
同公司
同風格·日式風