算同款報價算同款報價
分享
下載
老窩

250萬

預算

北歐風

風格

老屋翻新

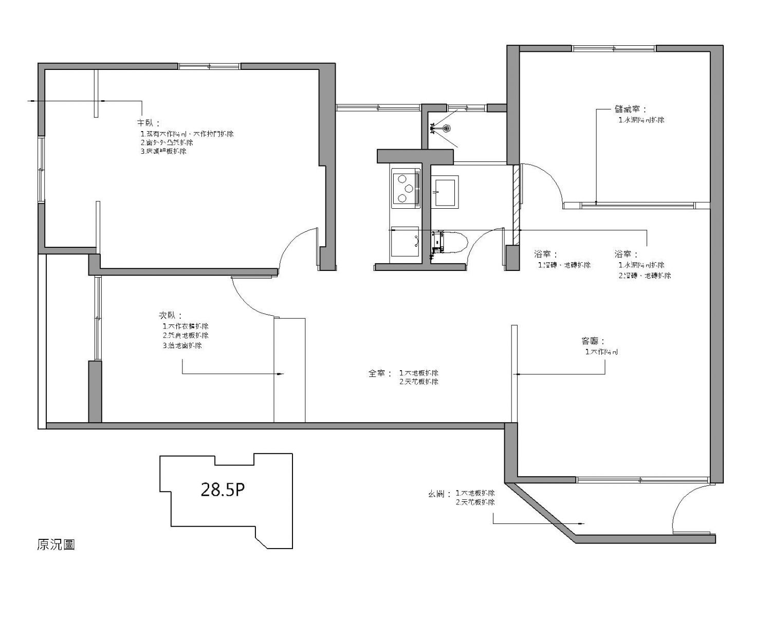
屋況

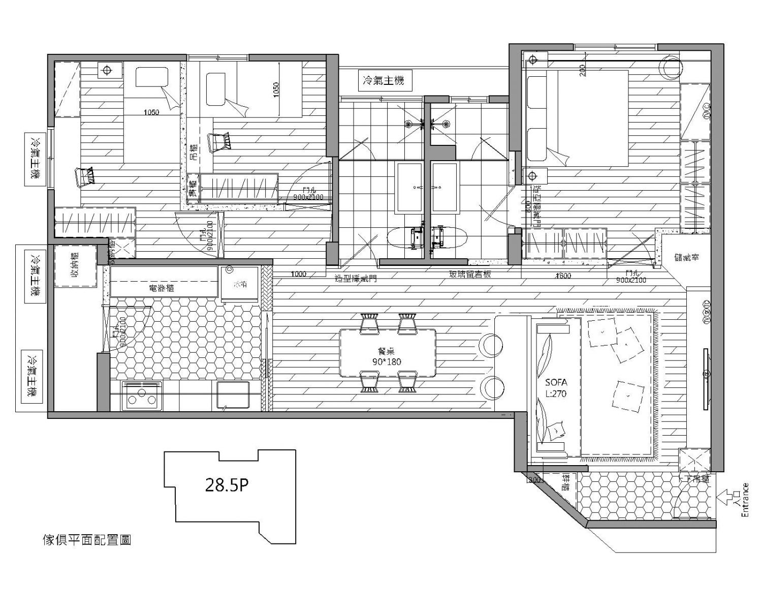
29坪

坪數

3房2廳2衛

格局

設計理念:
讓40年的老屋有新生命,可以繼續陪伴屋主的小孩長大 重新隔間滿足三房兩廳需求,更改動線各別獨立加大廚房及餐廳空間

企盒空間規劃

18套作品
1篇開箱
丈量費折扣
設計費享折扣
一年內保固
接客變案
建材陪同選購
生活習慣調查
現場方案講解
初步報價
整屋費用:接案200萬起
設計費用:3500 元/坪起
老屋翻新:12萬/坪起
新成屋:8萬/坪起
毛胚屋:10萬/坪起
接案區域:台北市、基隆市、新北市、桃園市
請設計師聯絡我
線上諮詢
空間效果
測一測我適合哪種風格?
loading
loading
loading
loading
相關作品推薦
同公司
同風格·北歐風
同預算 · 250萬