設計師陳一鳳 女士從業11年國立成功大學
灰階交織溫潤木格柵,沈穩靜謐的現代居所
現代風
風格
毛胚屋
屋況
26坪
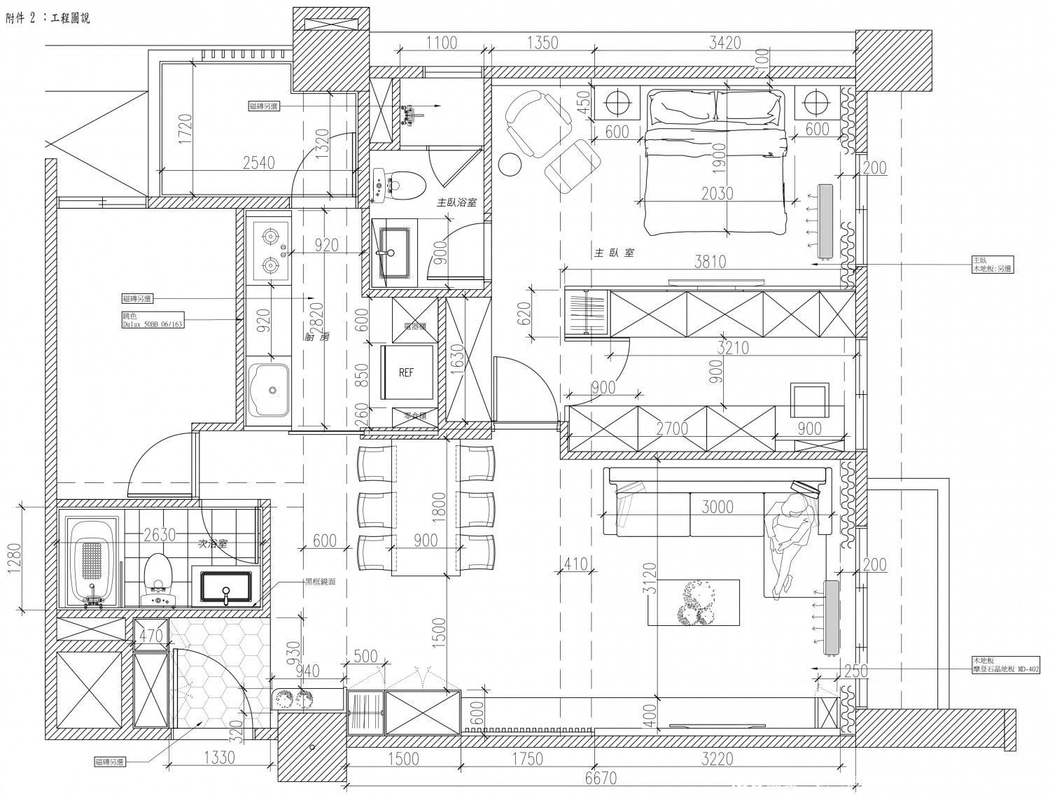
坪數
2房2廳2衛2陽台
格局
費用分佈
| 明細 | 費用金額 |
|---|---|
| 設計費 | 16萬 |
| 施工費 | 200萬(連工帶料) |
| 其他 | 8萬(監工費8萬) |
設計方案


屋主訴求
設計思路




服務範圍
| 服務 | 說明 |
|---|---|
| 丈量服務 | 5000元(簽約後可以於設計費折抵) |
| 基礎工程 | 全屋保護:梯廳及社區走廊2分夾板+防潮布+塑膠瓦愣板 水電工程:衛浴設備、廚具、開關、弱電、插座、燈具線路 木作工程:衣櫃、電視櫃、電視牆、鞋櫃、收納櫃、廚房隔間牆、更衣室、房間門、天花板、展示櫃 衛浴工程:馬桶、洗手台、鏡櫃、衛浴設備、乾溼分離玻璃、磁磚、防水 廚具工程:廚具、電器櫃、三機 油漆工程:藝術漆、油漆 軟件工程:窗簾 玻璃工程:展示櫃灰色玻璃、鋁框玻璃拉門、明鏡、灰色玻璃 |
| 監工服務 | 8萬(總工程費4%為監工費) 項目主管專人監工、每周在line群組匯報工程進展 |
| 裝修保固 | 保固1年 本工程施作項目 |
*服務範圍屬定製化服務,以設計師和業主洽談方案為準
施工過程
